Vente
Boutique
à
Cholet
228 600 €
Cholet (49300)
iad France - Stéphanie Brebion (07 62 44 98 74) vous propose : MURS COMMERCIAUX – EMPLACEMENT VISIBLE
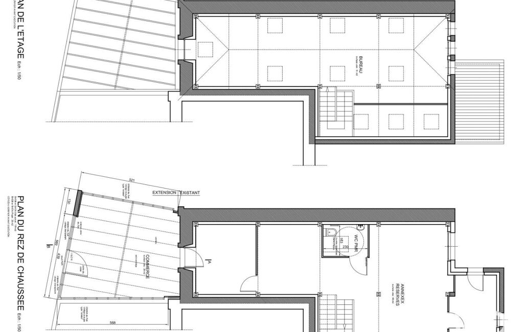
À vendre, murs commerciaux idéalement situés en zone urbaine, bénéficiant d’une belle visibilité et d’un accès aisé.
Ce local développe une surface d’environ 140 m² environ et se compose d’un espace boutique avec vitrine sur rue, d’une arrière-boutique équipée d’un évier et d’un WC, ainsi que d’une réserve / espace de stockage.
Des annexes complètent l’ensemble et offrent de nombreuses possibilités d’aménagement : bureaux, open space, espace de coworking, espace technique ou même espace complémentaire selon le projet envisagé. Un second WC est également présent.
Le bien dispose de 2 places de stationnement privatives ainsi que d’un parking gratuit à proximité immédiate, un véritable atout pour la clientèle et les collaborateurs.
Ce local se prête parfaitement à l’installation d’une activité commerciale, professionnelle ou de services, avec une exploitation possible immédiatement. La vitrine offre un linéaire intéressant et une excellente visibilité depuis la rue.
Local en bon état général, présentant un réel potentiel d’aménagement ou d’optimisation selon les besoins de l’acquéreur.
Idéal investisseur ou professionnel souhaitant implanter son activité et devenir propriétaire de ses murs.
Information d'affichage énergétique sur le bien associé à cette annonce : DPE NS indice et GES NS indice .La présente annonce immobilière a été rédigée sous la responsabilité éditoriale de Mlle Stéphanie Brebion (ID 84595), Agent Commercial mandataire en immobilier immatriculé au Registre Spécial des Agents Commerciaux (RSAC) du Tribunal de Commerce de La roche sur Yon sous le numéro 933808271
Retrouvez tous nos biens sur notre site internet. www.iadfrance.fr
Mandat : 1952120
Diagnostic de Performance Énergétique (DPE)
Plus d'informations
-
Conditions
- Honoraires à charge de : vendeur
-
Superficies
- Surface habitable : 140 m²
Localisation
Contactez nous
Pour plus d'informations sur cette annonce, n'hésitez pas à nous contacter