Vente
Maison
à
Montreuil
989 000 €
Montreuil (93100)
iad France - Gemael Mambouana vous propose: Dans une rue pavillonnaire à quelques minutes du Parc Montreau, du future Tram, des complexes sportifs, des écoles et commerces.
Une charmante maison atypique avec beaucoup de potentiel idéale pour une grande famille ou tout simplement investisseur.
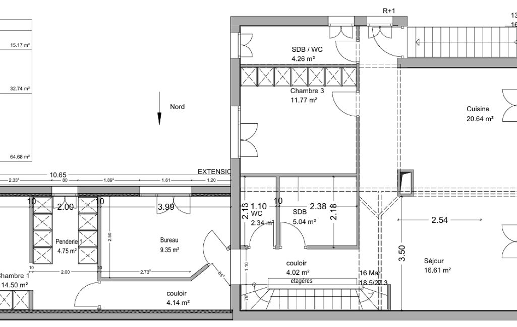
Grâce à ces 2 niveaux qui offrent 5 chambres, 3 W.C, une salle de bain et 2 salles d'eau.
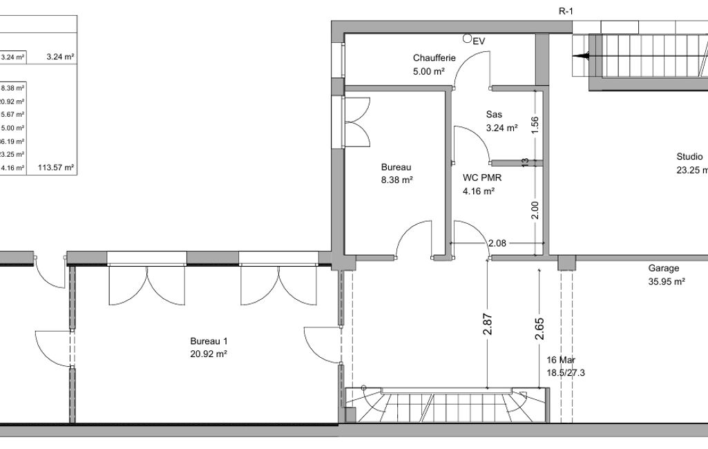
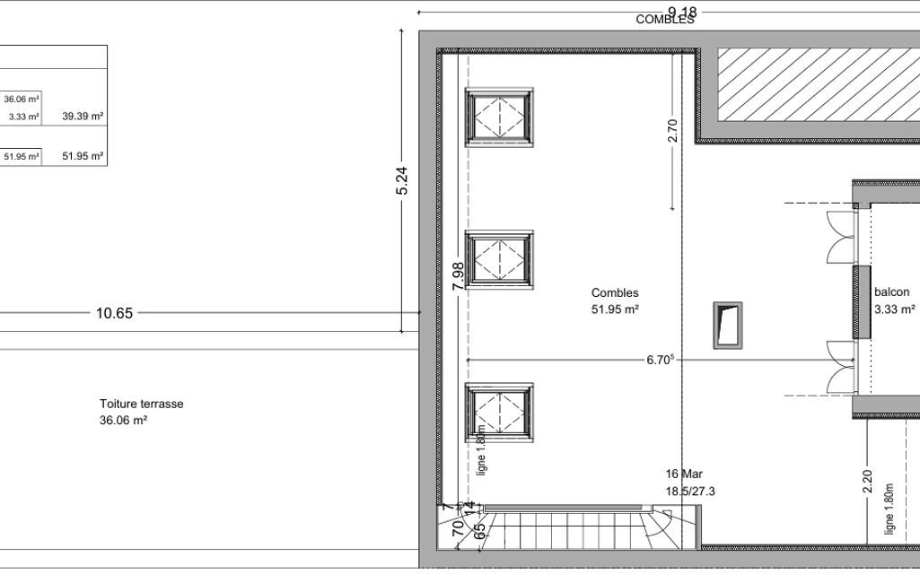
Deux grands bureaux de 20m ² pouvant servir de chambre en plus, ainsi qu'une grande salle de cinéma de plus de 40m ²
Un grand séjour salle à mangé lumineux donnant sur une belle terrasse bien exposée afin de profiter des beaux jours.
Ce bien dispose également d'un studio de 20 m² environ avec une entrée indépendante idéalement pour de la location ou une profession libérale ou autre, et également d'un 3-ème bureau.
!! Une maison idéal pour y vivre en famille ou tout simplement pour y investir !!
Honoraires d'agence à la charge du vendeur.
Information d'affichage énergétique sur ce bien : classe ENERGIE D indice 216 et classe CLIMAT D indice 34. Les informations sur les risques auxquels ce bien est exposé, y compris l'obligation légale de débroussaillement, sont disponibles sur le site Géorisques : http://www.georisques.gouv.fr.
La présente annonce immobilière a été rédigée sous la responsabilité éditoriale de M Gemael Mambouana mandataire indépendant en immobilier (sans détention de fonds), agent commercial de la SAS I@D France immatriculé au RSAC de MEAUX sous le numéro 911552891, titulaire de la carte de démarchage immobilier pour le compte de la société I@D France SAS.
Mandat : 1838758
Diagnostic de Performance Énergétique (DPE)
Plus d'informations
-
Equipement
- Câble TV
- Chauffage : gaz radiateur
- Interphone
-
Descriptif
- Nbre. d'étages : 2
- Nbre. de chambres : 5
- Nb. de pièces : 10
-
Superficies
- Superficie terrain : 410 m²
- Surface habitable : 300 m²
-
Etat
- Année de construction : 1950
-
Conditions
- Honoraires à charge de : vendeur
Localisation
Contactez nous
Pour plus d'informations sur cette annonce, n'hésitez pas à nous contacter