Vente
Maison de village
à
Fareins
230 000 €
Fareins (01480)
iad France - Jean-Michel Hugonnard vous propose: Vous souhaitez le calme de la campagne en restant proche de Villefranche sur Saône, et de l'Ouest lyonnais?
Vous recherchez un projet de rénovation pour créer la maison de vos rêves?
Voici une opportunité en plein coeur de Fareins !
Village de charme, à la vie communale et associative dynamiques, il fait bon vivre à Fareins .
Des écoles (maternelle, élémentaire), garderie et crêche pour les plus petits, vous trouverez également tous les commerces (bouche, esthétique, presse, restaurants, etc), et même un médecin et une pharmacie.
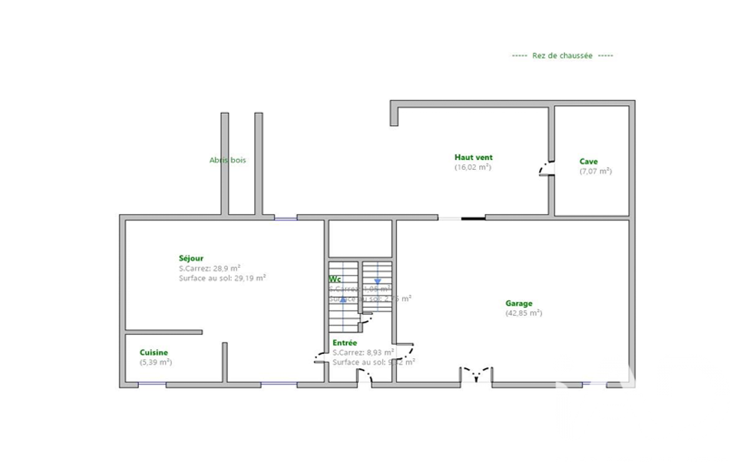
Soyez séduits par cette maison de village de caractère, de 150m² à rénover, sur un terrain de 1260m², et laissez libre court à votre imagination.
La parcelle, très bien orientée et plate, est piscinable.
De très beaux volumes, un fort potentiel, une toiture saine, il y a même un puits en fonctionnement dans la cave d'époque.
A découvrir immédiatement , je suis à votre disposition pour organiser une visite et commencer à vous projeter dans votre future maison familiale.
Honoraires d'agence à la charge du vendeur.
Information d'affichage énergétique sur ce bien : classe ENERGIE F indice 273 et classe CLIMAT F indice 85. Les informations sur les risques auxquels ce bien est exposé, y compris l'obligation légale de débroussaillement, sont disponibles sur le site Géorisques : http://www.georisques.gouv.fr.
La présente annonce immobilière a été rédigée sous la responsabilité éditoriale de M Jean-Michel Hugonnard mandataire indépendant en immobilier (sans détention de fonds), agent commercial de la SAS I@D France immatriculé au RSAC de Lyon sous le numéro 510106594, titulaire de la carte de démarchage immobilier pour le compte de la société I@D France SAS.
Mandat : 1916462
Diagnostic de Performance Énergétique (DPE)
Plus d'informations
-
Descriptif
- Nbre. d'étages : 1
- Nbre. de chambres : 4
- Nb. de pièces : 7
-
Superficies
- Superficie terrain : 1267 m²
- Surface habitable : 150 m²
-
Equipement
- Chauffage : fuel
-
Etat
- Année de construction : 1800
-
Conditions
- Honoraires à charge de : vendeur
Localisation
Contactez nous
Pour plus d'informations sur cette annonce, n'hésitez pas à nous contacter