Vente
Appartement
à
Herblay-sur-Seine
249 000 €
Herblay-sur-Seine (95220)
iad France - Fabien Pruvot vous propose: Coup de cOEur assuré pour ce magnifique appartement 3 pièces en rez-de-jardin !
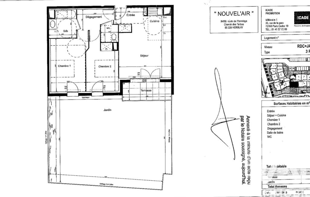
Situé dans une résidence récente, ce superbe appartement de 60 m² saura vous séduire par ses prestations et son cadre de vie privilégié.
Bénéficiant d’une exposition sud, il profite d’une luminosité optimale tout au long de la journée. L’espace de vie s’ouvre sur un exceptionnel extérieur de 75 m², véritable prolongement de l’appartement, parfait pour profiter des beaux jours, recevoir ou se détendre en toute tranquillité.
L’appartement dispose de deux places de parking privatives, un confort rare et très recherché. Un bien alliant confort, modernité et qualité de vie, une véritable pépite à ne pas manquer.
La presente annonce immobiliere vise 3 lots situés dans une copropriété de 240 lots au total et ne faisant l'objet d'aucune procédure en cours citée à l'article L. 721-1 du code de la construction et de l'habitation. Montant moyen mensuel de charges déclaré par le vendeur : 200€ par mois (soit 2400 € annuel). Honoraires d'agence à la charge du vendeur.
Bien non soumis au DPE. Les informations sur les risques auxquels ce bien est exposé, y compris l'obligation légale de débroussaillement, sont disponibles sur le site Géorisques : http://www.georisques.gouv.fr.
La présente annonce immobilière a été rédigée sous la responsabilité éditoriale de M Fabien Pruvot mandataire indépendant en immobilier (sans détention de fonds), agent commercial de la SAS I@D France immatriculé au RSAC de Pontoise sous le numéro 895227825, titulaire de la carte de démarchage immobilier pour le compte de la société I@D France SAS.
Mandat : 1966200
Diagnostic de Performance Énergétique (DPE)
Plus d'informations
-
Descriptif
- Terrasse
- Nbre. d'étages : 3
- Nbre. de chambres : 2
- Nb. de pièces : 3
-
Equipement
- Digicode
- Chauffage : collectif gaz radiateur
- Interphone
-
Loi ALUR
- Copropriété
- Nombre de lots de la copropriété : 240
- Moyenne de la quote part(an) : 2 400 €
-
Etat
- Année de construction : 2013
-
Conditions
- Honoraires à charge de : vendeur
-
Superficies
- Surface habitable : 60 m²
Localisation
Contactez nous
Pour plus d'informations sur cette annonce, n'hésitez pas à nous contacter