Vente
Maison
à
Neuvy-Sautour
97 500 €
Neuvy-Sautour (89570)
iad France - Christine Olagnon vous propose: A RENOVER : Charmantes Maisons de Caractère à Neuvy-Sautour - Idéal pour les Amoureux de la Nature et de l'Authenticité
Découvrez ces deux maisons traditionnelles de 140m² situées dans un écrin de verdure à Neuvy-Sautour, tranquillité assurée à ses futurs propriétaires. Érigée sur un vaste terrain de 2075m², cette propriété datant de 1800, imprégnée d'histoire et de charme, est un véritable coup de cOEur pour les amateurs de maisons d'époque à rénover et à personnaliser.
Ancien corps de ferme se composant de deux maisons et ses dépendances :
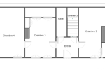
- La 1ère maison se composant d'une entrée directe dans un séjour avec poêle à bois récent permettant une bonne diffusion du chauffage dans toutes les pièces, un salon est doté d'une cheminée à foyer ouvert et une porte fenêtre donnant sur un jardinet, une cuisine avec placard mural, une salle d'eau, un wc indépendant et une petite pièce pouvant être utilisée en buanderie ou autre entrée, à l'étage une pièce servant de petite chambre pouvant être agrandi sur le grenier attenant et aménageable.
- La 2ème maison style longère à un beau potentiel, elle se compose d'une vaste entrée par un couloir desservant un séjour de 26 M² environ avec placards muraux pouvant être supprimés afin de gagner en superficie (7 M² environ), deux chambres spacieuses et lumineuses.
Dans le couloir nous trouverons deux portes : Une pour l'accès à une cave voûtée et l'autre pour le grenier où l'on pourrait réaliser des pièces de vie supplémentaires.
L'extérieur se compose d'un superbe jardin arboré où il fait bon se détendre, d'un garage pouvant accueillir votre véhicule en toute sécurité et deux dépendances assez grandes pour les aménager en pièces de loisirs ou pour du stockage.
Côté équipements, cette maison dispose d'un chauffage individuel avec cheminée et un poêle à bois pour des soirées cocooning au coin du feu.
Située dans un environnement calme et préservé, ces deux maison raviront les amateurs de tranquillité et de nature. Les expositions sud et ouest vous permettront de profiter d'une luminosité optimale tout au long de la journée.
Ne manquez pas l'opportunité d'acquérir ces deux maisons pleine de potentiel et de charme à Neuvy-Sautour.
Contactez-moi dès maintenant pour organiser une visite et laissez-vous séduire par son caractère unique.
Honoraires d'agence à la charge du vendeur.
Information d'affichage énergétique sur ce bien : classe ENERGIE G indice 535 et classe CLIMAT C indice 17. Les informations sur les risques auxquels ce bien est exposé, y compris l'obligation légale de débroussaillement, sont disponibles sur le site Géorisques : http://www.georisques.gouv.fr.
La présente annonce immobilière a été rédigée sous la responsabilité éditoriale de Mme Christine Olagnon mandataire indépendant en immobilier (sans détention de fonds), agent commercial de la SAS I@D France immatriculé au RSAC de Auxerre sous le numéro 447730300, titulaire de la carte de démarchage immobilier pour le compte de la société I@D France SAS.
Mandat : 1964412
Diagnostic de Performance Énergétique (DPE)
Plus d'informations
-
Equipement
- Câble TV
- Cheminée
-
Descriptif
- Nbre. de chambres : 4
- Nb. de pièces : 5
-
Superficies
- Superficie terrain : 2075 m²
- Surface habitable : 140 m²
-
Etat
- Année de construction : 1800
-
Conditions
- Honoraires à charge de : vendeur
Localisation
Contactez nous
Pour plus d'informations sur cette annonce, n'hésitez pas à nous contacter