Vente
Maison
à
Clamart
980 000 €
Clamart (92140)
iad France - Evelyne Laurent vous propose: Quartier Jardin Parisien - Maison familiale NON mitoyenne avec de beaux volumes et une belle d'hauteur sous plafond 2,80 m avec pompe à chaleur et panneaux solaire.
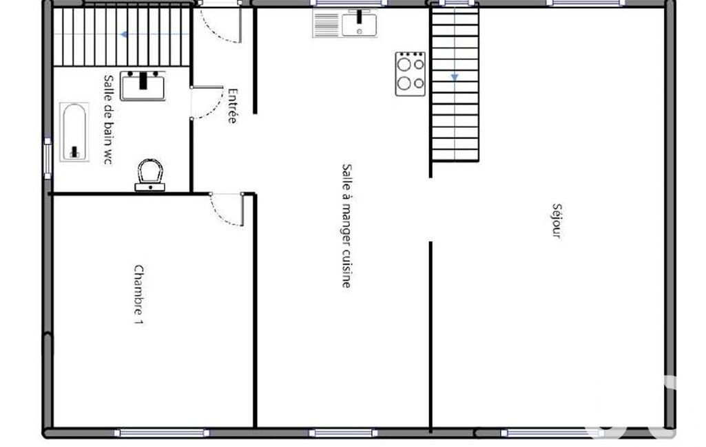
Construite sur 3 niveaux, l'habitation principale se fait au niveau du 1er étage accessible par un escalier extérieur avec une terrasse, le rez-de-chaussée a un accès privatif avec chambre, espace de rangement, salle d'eau et cuisine d'été.
A cet étage une cuisine généreuse suivi d'un double séjour d'environ nous donne un bel espace d'environ 46 m² traversant ce qui apporte une lumière naturelle toute la journée de par son orientation sud-ouest, parquet d'origine au sol.
Une chambre qui donne sur jardin ainsi qu'une salle de bain complète cet étage.
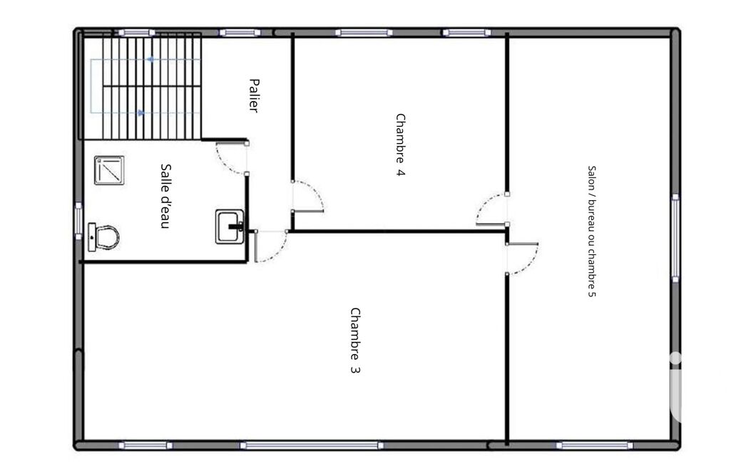
A 1er, un palier dessert 3 chambres dont 2 vaste de 20 m² ainsi qu'une salle d'eau. La 3ème chambre actuellement aménagé en salon/bureau est mansardée avec des rangement sous pente.
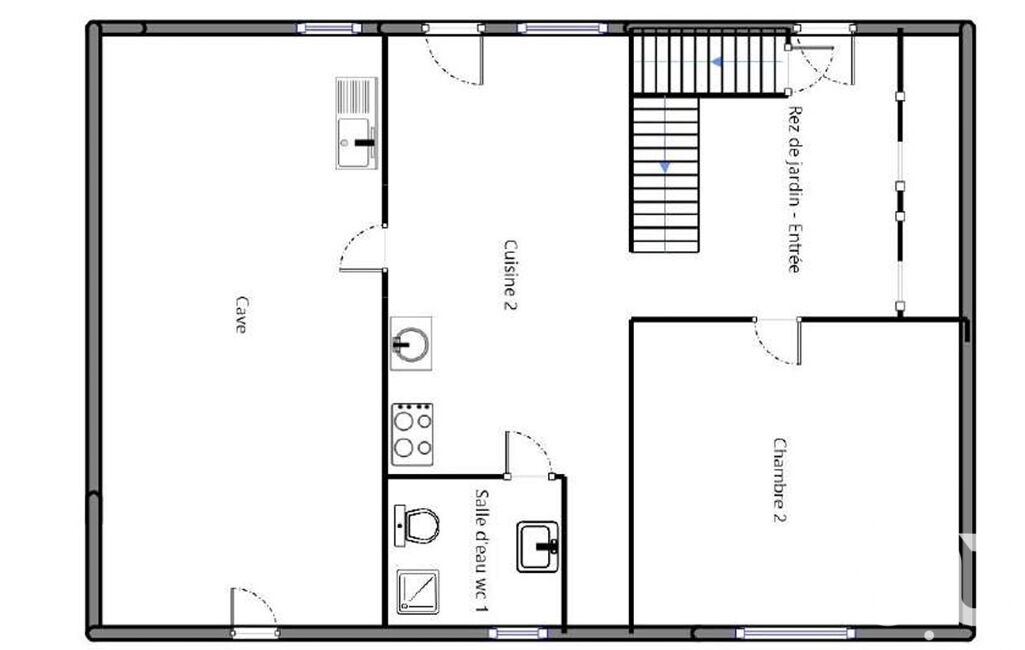
Au rez-de-jardin en plus de son espace privatif, se trouve l'espace buanderie/chaufferie/cave.
Le jardin est ensoleillé toute la journée par sa belle exposition est/ouest, fleuri, arboré et potager.
2 places de stationnement sur le terrain, cabanon et terrasse.
A proximité des commerces, transport et centre hospitalier.
Tram T10/T6 - Bus 290, 390, 190, 189, 295 entre 2 et 10 mn à pied.
A proximité de la Forêt Clamart/Meudon accès au centre ville en 10 mn par le bois.
Plus de photos et de renseignements ? n'hésitez pas à me téléphoner.
Honoraires d'agence à la charge du vendeur.
Information d'affichage énergétique sur ce bien : classe ENERGIE B indice 102 et classe CLIMAT A indice 3. Les informations sur les risques auxquels ce bien est exposé, y compris l'obligation légale de débroussaillement, sont disponibles sur le site Géorisques : http://www.georisques.gouv.fr.
La présente annonce immobilière a été rédigée sous la responsabilité éditoriale de Mme Evelyne Laurent mandataire indépendant en immobilier (sans détention de fonds), agent commercial de la SAS I@D France immatriculé au RSAC de NANTERRE sous le numéro 513262246, titulaire de la carte de démarchage immobilier pour le compte de la société I@D France SAS.
Mandat : 1851417
Diagnostic de Performance Énergétique (DPE)
Plus d'informations
-
Descriptif
- Nbre. d'étages : 3
- Nbre. de chambres : 4
- Nb. de pièces : 9
-
Superficies
- Superficie terrain : 468 m²
- Surface habitable : 184 m²
-
Etat
- Année de construction : 1950
-
Conditions
- Honoraires à charge de : vendeur
Localisation
Contactez nous
Pour plus d'informations sur cette annonce, n'hésitez pas à nous contacter