Vente
Maison de ville
à
Saulges
79 200 €
Saulges (53340)
iad France - Nathalie Gerbouin vous propose: *** ENTRE LAVAL ET LE MANS *** A SAULGES*** 117M2*** 4 CHAMBRES*** PARCELLE 680M2***TRAVAUX A PREVOIR***
Commune de caractère, Saulges est reconnue pour son site naturel et préhistorique, la vallée de l’Erve et ses nombreux chemins de promenade. Un environnement paisible et sécurisé, parfait pour les enfants, tout en restant proche des commodités et des axes principaux.
Située entre Laval et le Mans, cette maison de 117 m², implantée sur un terrain de 680 m², offre de beaux volumes et un fort potentiel, idéale pour une famille souhaitant s’installer dans un environnement calme.
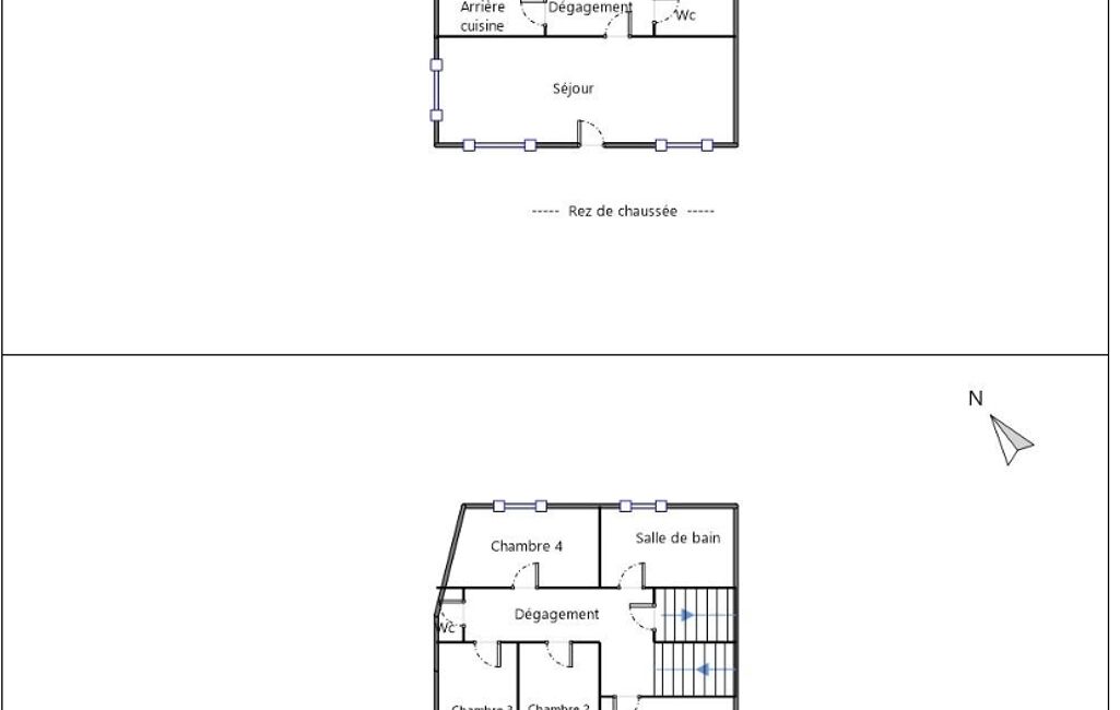
À l’intérieur, vous découvrirez une belle pièce de vie lumineuse de 30 m², agrémentée de jolies poutres apparentes, une cuisine, une buanderie, une chaufferie ainsi qu’un WC indépendant.
L’étage se compose de quatre chambres spacieuses, d’une salle de bains fonctionnelle et d’un second WC.
Une grande cave et un grenier viennent compléter ce bien
.
Profitez des beaux jours sur la terrasse idéalement exposée, parfaite pour savourer le soleil en toute tranquillité.
Travaux à prévoir, offrant une belle opportunité de personnalisation.
À découvrir sans tarder, maison idéale pour une vie de famille au calme.
À seulement 10 mns de Vaiges et 15 mns de Meslay Du Maine, la commune de Saulges compte 305 habitants. Elle possède une école en RPI avec les communes voisines, une Maison pour personnes âgées, un camping, un gite de Groupe, de nombreuses exploitations agricoles, une entreprise de maçonnerie, 3 restaurants dont 1 hôtel . Saulges accueille aussi 6 associations : Amicalement Saulges, APPMA de l'Erve, APE de l'Erve, le club du Bon Accueil, les amis de Saint Cénéré, Tourisme et Patrimoine. Le principal moteur de son économie est encore le tourisme labellisé 'Petite cité de Caractère' et 'Villes et Pays d'arts & d'histoire' . Lieu incontournable : ses grottes. ***
Honoraires d'agence à la charge du vendeur.
Information d'affichage énergétique sur ce bien : classe ENERGIE F indice 309 et classe CLIMAT F indice 87. Les informations sur les risques auxquels ce bien est exposé, y compris l'obligation légale de débroussaillement, sont disponibles sur le site Géorisques : http://www.georisques.gouv.fr.
La présente annonce immobilière a été rédigée sous la responsabilité éditoriale de Mme Nathalie Gerbouin mandataire indépendant en immobilier (sans détention de fonds), agent commercial de la SAS I@D France immatriculé au RSAC de LAVAL sous le numéro 801712464, titulaire de la carte de démarchage immobilier pour le compte de la société I@D France SAS.
Mandat : 1940205
Diagnostic de Performance Énergétique (DPE)
Plus d'informations
-
Descriptif
- Nbre. d'étages : 2
- Nbre. de chambres : 4
- Nb. de pièces : 6
-
Superficies
- Superficie terrain : 680 m²
- Surface habitable : 117 m²
-
Equipement
- Chauffage : fuel radiateur
-
Etat
- Année de construction : 1800
-
Conditions
- Honoraires à charge de : vendeur
Localisation
Contactez nous
Pour plus d'informations sur cette annonce, n'hésitez pas à nous contacter