Vente
Appartement
à
Courbevoie
528 500 €
Courbevoie (92400)
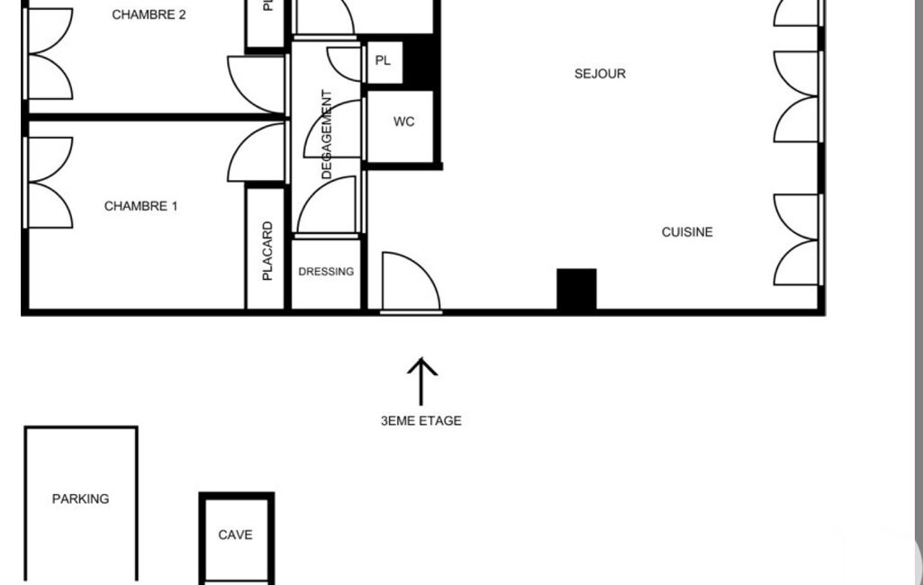
iad France - Stéphane Collignon vous propose: Appartement 3 pièces de 64 m2- Courbevoie, quartier recherché de Bécon.
Idéalement situé face au parc de Bécon, cet appartement lumineux se trouve au 3ème étage sans vis à vis avec ascenseur dans une résidence sécurisée de 4 étages datant de 1980.
L'agencement est fonctionnel et agréable.
Vous apprécierez le balcon filant sur le salon/séjour lumineux avec sa cuisine équipée ouverte et moderne, deux chambres, une salle de bain et un W-C indépendant.
L'appartement est en très bon état général permettant une installation immédiate sans travaux.
Pour votre confort, une place de parking en sous-sol et une cave complètent ce bien.
Cet appartement offre un cadre de vie idéal avec à proximité immédiate des commerces, des écoles, des transports en commun et des espaces verts.
La presente annonce immobiliere vise 3 lots situés dans une copropriété de 175 lots au total et ne faisant l'objet d'aucune procédure en cours citée à l'article L. 721-1 du code de la construction et de l'habitation. Montant moyen mensuel de charges déclaré par le vendeur : 200€ par mois (soit 2400 € annuel). Honoraires d'agence à la charge du vendeur.
Information d'affichage énergétique sur ce bien : classe ENERGIE C indice 135 et classe CLIMAT A indice 5. Les informations sur les risques auxquels ce bien est exposé, y compris l'obligation légale de débroussaillement, sont disponibles sur le site Géorisques : http://www.georisques.gouv.fr.
La présente annonce immobilière a été rédigée sous la responsabilité éditoriale de M Stéphane Collignon mandataire indépendant en immobilier (sans détention de fonds), agent commercial de la SAS I@D France immatriculé au RSAC de NANTERRE sous le numéro 911111011, titulaire de la carte de démarchage immobilier pour le compte de la société I@D France SAS.
Mandat : 1938900
Diagnostic de Performance Énergétique (DPE)
Plus d'informations
-
Descriptif
- Cave
- Étage du bien : 3eme
- Gardien
- Ascenseur
- Nbre. d'étages : 4
- Nbre. de chambres : 2
- Nb. de pièces : 3
-
Equipement
- Digicode
- Chauffage : individuel electrique
- Interphone
-
Loi ALUR
- Copropriété
- Nombre de lots de la copropriété : 175
- Moyenne de la quote part(an) : 2 400 €
-
Superficies
- Surface du balcon : 6 m²
- Surface habitable : 64 m²
-
Etat
- Année de construction : 1980
-
Conditions
- Honoraires à charge de : vendeur
Localisation
Contactez nous
Pour plus d'informations sur cette annonce, n'hésitez pas à nous contacter