Vente
Appartement
à
Levallois-Perret
1 600 000 €
Levallois-Perret (92300)
iad France - Pierre Magerand (06 37 21 92 42) vous propose : Appartement T5 avec balcon à Levallois-Perret.
Située rue Marius Aufan à Levallois-Perret, au cOEur d’un quartier prisé et élégant, la résidence contemporaine Signature Levallois conjugue raffinement architectural et qualité de vie exceptionnelle. Entre dynamisme urbain et sérénité, cette adresse offre un cadre de vie prestigieux, à proximité immédiate des commerces, des écoles et des transports. Disponible 2028.
Un appartement raffiné :
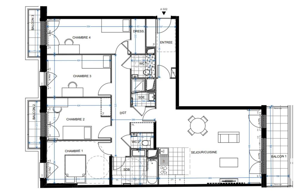
Situé au 5 ème étage, cet appartement T5 de 117 m² environ habitables se prolonge par un balcon de 8 m² environ.
- Séjour/cuisine de 37 m² environ.
- Quatre chambres confortables.
- Salle de bains et salle d’eau modernes.
- Annexes incluses : deux parkings intérieurs.
De belles prestations :
- Réseau de chaleur urbain, pour une consommation énergétique maîtrisée.
- Volets roulants motorisés et grandes baies vitrées favorisant la luminosité.
- Résidence sécurisée avec ascenseur, digicode, visiophone et badge Vigik.
L’art de vivre à Levallois-Perret :
- À 3 min à pied du métro Anatole France (ligne 3).
- À 8 min de la gare de Clichy-Levallois (ligne L).
- À proximité du centre commercial So Ouest et du Parc de la Planchette.
- Commerces, restaurants, écoles et équipements sportifs à quelques pas.
N’hésitez pas à me contacter pour plus d’informations ou pour un accompagnement sur mesure.
Honoraires d’agence à la charge du vendeur. Bien non soumis au DPE. Les informations sur les risques auxquels ce bien est exposé sont disponibles sur le site Géorisques : www.georisques.gouv.fr. La présente annonce immobilière a été rédigée sous la responsabilité éditoriale de M. Pierre Magerand EI (ID 86098), mandataire indépendant en immobilier (sans détention de fonds), agent commercial de la SAS I@D France immatriculé au RSAC de Cusset sous le numéro 938729175, titulaire de la carte de démarchage immobilier pour le compte de la société I@D France SAS.
Retrouvez tous nos biens sur notre site internet. www.iadfrance.fr
Mandat : 1867331-2
Diagnostic de Performance Énergétique (DPE)
Plus d'informations
-
Descriptif
- Étage du bien : 5eme
- Ascenseur
- Nbre. d'étages : 5
- Nbre. de chambres : 4
- Nb. Parking : 1
- Nb. de pièces : 5
-
Equipement
- Câble TV
- Digicode
- Interphone
-
Conditions
- Honoraires à charge de : vendeur
-
Superficies
- Surface habitable : 117 m²
Localisation
Contactez nous
Pour plus d'informations sur cette annonce, n'hésitez pas à nous contacter