Vente
Appartement
à
Paris
430 000 €
Paris (75017)
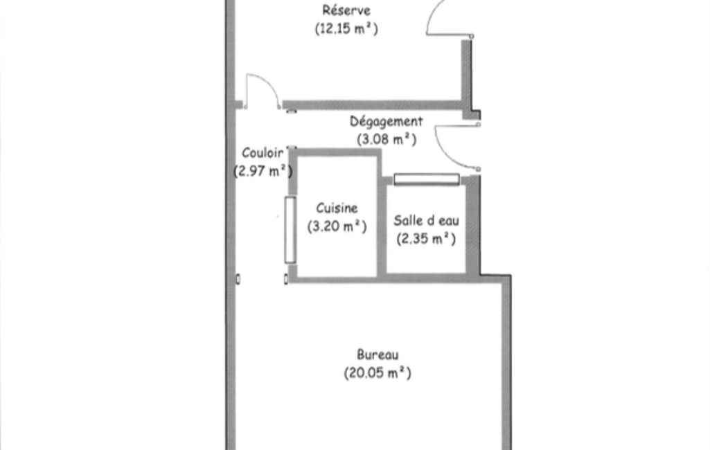
iad France - Stéphanie Foulquier vous propose: *** Métro BROCHANT - BATIGNOLLES / 82 rue Lemercier - Rue Clairaut : Anciennement local de bureaux en RDC pouvant être facilement transformé en appartement. Il se compose d'une pièce lumineuse de 20m.2 donnant sur la rue Clairaut, d'une chambre sur cour calme, d'une cuisine a équiper et d'une salle d'eau avec WC - Triple accès (Entrée principale via le hall de l'immeuble puis + porte fenêtre sur cour + porte fenêtre sur rue) - DPE E - À proximité immédiate des commerces, transports et du quartier des Batignolles - Charges courantes : 420 / Trim. - Cave -
La presente annonce immobiliere vise 2 lots situés dans une copropriété de 18 lots au total et ne faisant l'objet d'aucune procédure en cours citée à l'article L. 721-1 du code de la construction et de l'habitation. Montant moyen mensuel de charges déclaré par le vendeur : 420€ par mois (soit 5040 € annuel). Honoraires d'agence à la charge du vendeur.
Information d'affichage énergétique sur ce bien : classe ENERGIE E indice 328 et classe CLIMAT B indice 9. Les informations sur les risques auxquels ce bien est exposé, y compris l'obligation légale de débroussaillement, sont disponibles sur le site Géorisques : http://www.georisques.gouv.fr.
La présente annonce immobilière a été rédigée sous la responsabilité éditoriale de Mme Stéphanie Foulquier mandataire indépendant en immobilier (sans détention de fonds), agent commercial de la SAS I@D France immatriculé au RSAC de PARIS sous le numéro 524 400 785, titulaire de la carte de démarchage immobilier pour le compte de la société I@D France SAS.
Mandat : 1978675
Diagnostic de Performance Énergétique (DPE)
Plus d'informations
-
Descriptif
- Nbre. d'étages : 5
- Nbre. de chambres : 1
- Nb. de pièces : 2
-
Loi ALUR
- Copropriété
- Nombre de lots de la copropriété : 18
- Moyenne de la quote part(an) : 5 040 €
-
Equipement
- Digicode
-
Etat
- Année de construction : 1900
-
Conditions
- Honoraires à charge de : vendeur
-
Superficies
- Surface habitable : 48 m²
Localisation
Contactez nous
Pour plus d'informations sur cette annonce, n'hésitez pas à nous contacter