Vente
Appartement
à
Longjumeau
165 000 €
Longjumeau (91160)
iad France - Cyril Strady vous propose: LONGJUMEAU – 3/4 PIÈCES – 76 M² – BALCON – ÉTAGE ÉLEVÉ – VUE DÉGAGÉE
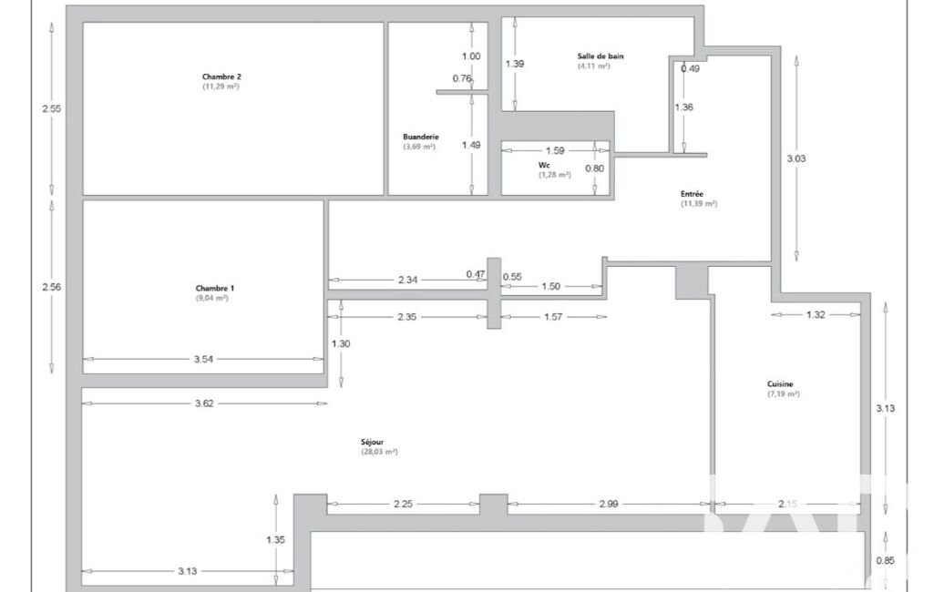
À proximité immédiate du centre-ville et des commodités, découvrez cet appartement de 75 m² situé en étage élevé avec ascenseur, offrant une vue dégagée et un cadre calme.
Il se compose d’une entrée avec rangements, d’un séjour double lumineux d’environ 30 m² avec cuisine ouverte, aménagée et équipée, ouvrant sur un balcon de 7 m².
L’espace nuit comprend un dégagement avec placards, deux belles chambres (possibilité de créer facilement une troisième chambre), une salle de bains, un grand dressing / buanderie et des WC séparés.
Les écoles maternelles et primaires sont accessibles à pied (moins de 500 m), ainsi que les commerces et transports.
Un appartement fonctionnel, lumineux et bien situé, idéal pour une famille ou un investissement.
La presente annonce immobiliere vise 1 lot situé dans une copropriété de 322 lots au total et ne faisant l'objet d'aucune procédure en cours citée à l'article L. 721-1 du code de la construction et de l'habitation. Montant moyen mensuel de charges déclaré par le vendeur : 258€ par mois (soit 3096 € annuel). Honoraires d'agence à la charge du vendeur.
Information d'affichage énergétique sur ce bien : classe ENERGIE D indice 204 et classe CLIMAT D indice 44. Les informations sur les risques auxquels ce bien est exposé, y compris l'obligation légale de débroussaillement, sont disponibles sur le site Géorisques : http://www.georisques.gouv.fr.
La présente annonce immobilière a été rédigée sous la responsabilité éditoriale de M Cyril Strady mandataire indépendant en immobilier (sans détention de fonds), agent commercial de la SAS I@D France immatriculé au RSAC de NANTERRE sous le numéro 904271822, titulaire de la carte de démarchage immobilier pour le compte de la société I@D France SAS.
Mandat : 1945220
Diagnostic de Performance Énergétique (DPE)
Plus d'informations
-
Descriptif
- Étage du bien : 6eme
- Gardien
- Ascenseur
- Nbre. d'étages : 12
- Nbre. de chambres : 2
- Nb. de pièces : 3
-
Equipement
- Digicode
- Chauffage : collectif gaz radiateur
- Interphone
-
Loi ALUR
- Copropriété
- Nombre de lots de la copropriété : 322
- Moyenne de la quote part(an) : 3 096 €
-
Superficies
- Surface du balcon : 7 m²
- Surface habitable : 76 m²
-
Etat
- Année de construction : 1974
-
Conditions
- Honoraires à charge de : vendeur
Localisation
Contactez nous
Pour plus d'informations sur cette annonce, n'hésitez pas à nous contacter