Vente
Maison
à
Seysses
255 000 €
Seysses (31600)
iad France - Ingrid Robert vous propose: * Maison T4 récente et contemporaine – 92 m² – Garage – Jardin – Proche commodités *
Idéalement située à proximité du centre-ville et des écoles, cette maison contemporaine construite en 2017, parfaitement entretenue, offre des prestations modernes et soignées.
Fonctionnelle, lumineuse et agréable à vivre, elle conviendra parfaitement à une personne seule, un couple ou une famille, grâce à son agencement optimisé et son confort moderne.
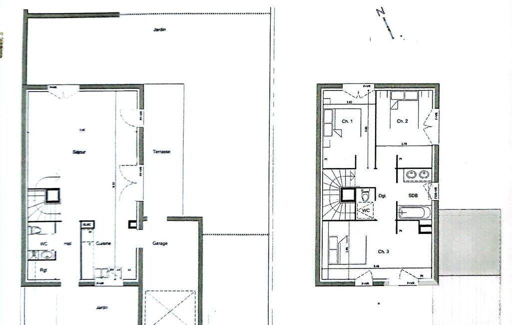
Au rez-de-chaussée :
Dès l’entrée, vous découvrez un espace d’accueil optimisé avec coin buanderie/rangements.
La pièce de vie d’environ 39 m² constitue le véritable cOEur de la maison. Lumineuse et bien agencée, elle offre un espace salon / salle à manger à l’atmosphère chaleureuse et cocooning, idéal pour profiter de moments agréables au quotidien.
La cuisine ouverte, aménagée et équipée, s’intègre naturellement à l’ensemble et propose un espace fonctionnel et convivial, parfaitement adapté à la vie de tous les jours.
De larges ouvertures prolongent naturellement l’espace vers le jardin, créant une belle continuité intérieur/extérieur.
Un WC indépendant complète ce niveau.
À l’étage :
L’espace nuit se compose de trois chambres : deux chambres avec placards intégrés (10,05 m² et 10,67 m²) et une grande chambre parentale de plus de 15 m² avec dressing dédié.
Une salle de bains moderne équipée d’une double vasque, d’une baignoire et d’un sèche-serviettes complète l’étage, ainsi qu’un second WC indépendant.
Les extérieurs :
Le jardin, pratique et facile à entretenir, offre un cadre agréable pour se détendre en famille ou entre amis et installer une piscine si vous le souhaitez.
Un garage attenant, accessible directement depuis la maison, ainsi qu’une place de stationnement privative viennent compléter les prestations.
Éléments techniques : Menuiseries PVC double vitrage/Volets roulants électriques/Chauffage par chaudière à condensation/Climatisation réversible (PAC air/air)/Fibre optique.
Les atouts de ce bien :
- Maison récente (2017)
- Très bon état général
- Aucun travaux à prévoir
- Proximité immédiate des commodités
Cette maison constitue une excellente opportunité, idéale pour un premier achat ou pour une famille souhaitant profiter d’un cadre pratique et agréable, au sein d’un lotissement à taille humaine géré par l’ASL, avec des charges maîtrisées.
À découvrir sans tarder !
NB : La dernière photo correspond à une projection 3D non contractuelle.
La presente annonce immobiliere vise 2 lots situés dans une copropriété de 73 lots au total et ne faisant l'objet d'aucune procédure en cours citée à l'article L. 721-1 du code de la construction et de l'habitation. Montant moyen mensuel de charges déclaré par le vendeur : 34.67€ par mois (soit 416 € annuel). Honoraires d'agence à la charge du vendeur.
Information d'affichage énergétique sur ce bien : classe ENERGIE C indice 75 et classe CLIMAT C indice 11. Les informations sur les risques auxquels ce bien est exposé, y compris l'obligation légale de débroussaillement, sont disponibles sur le site Géorisques : http://www.georisques.gouv.fr.
La présente annonce immobilière a été rédigée sous la responsabilité éditoriale de Mme Ingrid Robert mandataire indépendant en immobilier (sans détention de fonds), agent commercial de la SAS I@D France immatriculé au RSAC de Toulouse sous le numéro 897760948, titulaire de la carte de démarchage immobilier pour le compte de la société I@D France SAS.
Mandat : 1948066
Diagnostic de Performance Énergétique (DPE)
Plus d'informations
-
Descriptif
- Terrasse
- Nbre. d'étages : 1
- Nbre. de chambres : 3
- Nb. de pièces : 4
-
Loi ALUR
- Copropriété
- Nombre de lots de la copropriété : 73
- Moyenne de la quote part(an) : 416 €
-
Superficies
- Surface terrasse : 13 m²
- Superficie terrain : 202 m²
- Surface habitable : 92 m²
-
Equipement
- Chauffage : gaz radiateur
-
Etat
- Année de construction : 2017
-
Conditions
- Honoraires à charge de : vendeur
Localisation
Contactez nous
Pour plus d'informations sur cette annonce, n'hésitez pas à nous contacter