Vente
Appartement
à
Strasbourg
1 010 000 €
Strasbourg (67000)
iad France - Claire Arbogast vous propose: Nouveauté – Quartier des Contades // Bien de prestige rare // 9 pièces – 252 m² // Balcons // Mansardes // Dernier étage avec ascenseur (PMR)
Au sein d’un immeuble bourgeois de grand standing érigé en 1949, et abritant un seul appartement par niveau, se dévoile au 5ᵉ et dernier étage, desservi par ascenseur, un véritable écrin d’élégance.
Une adresse d’exception, où le charme de l’ancien s’accorde à la noblesse des volumes et à la douceur d’une lumière omniprésente.
Dès l’entrée, la distribution en étoile met en valeur des espaces parfaitement agencés, baignés de lumière naturelle tout au long de la journée.
Les pièces de vie en angle offrent une perspective exceptionnelle sur les toitures des plus belles églises de Strasbourg, avec la cathédrale en majesté et, au loin, la Forêt Noire — un panorama à couper le souffle.
La pièce de réception, d’une rare élégance, s’étend sur près de 100 m² de triple séjour et s’ouvre sur un balcon surplombant la ville, offrant un spectacle vivant et changeant au fil des saisons.
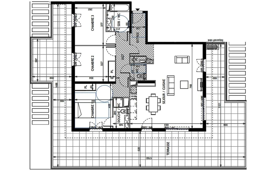
L’appartement développe 224 m² habitables de pur raffinement :
- une entrée spacieuse de 37 m² desservant l’ensemble des pièces,
- un double salon lumineux de 37 m² et 32 m², prolongé par un balcon,
- une salle à manger de 30 m²,
- une cuisine séparée avec balcon et loggia (accès direct aux 2 mansardes surface totale de 26 m² et grenier),
- cinq chambres confortables,
- une salle de bain, deux WC et de nombreux rangements intégrés.
- Une cave
Un bien unique, à la fois majestueux et chaleureux, destiné aux amateurs d’espaces rares, d’horizons dégagés et d’adresses prestigieuses au cOEur de Strasbourg.
La presente annonce immobiliere vise 5 lots situés dans une copropriété de 39 lots au total et ne faisant l'objet d'aucune procédure en cours citée à l'article L. 721-1 du code de la construction et de l'habitation. Montant moyen mensuel de charges déclaré par le vendeur : 416.67€ par mois (soit 5000 € annuel). Honoraires d'agence à la charge du vendeur.
Information d'affichage énergétique sur ce bien : classe ENERGIE E indice 276 et classe CLIMAT E indice 54. Les informations sur les risques auxquels ce bien est exposé, y compris l'obligation légale de débroussaillement, sont disponibles sur le site Géorisques : http://www.georisques.gouv.fr.
La présente annonce immobilière a été rédigée sous la responsabilité éditoriale de Mme Claire Arbogast mandataire indépendant en immobilier (sans détention de fonds), agent commercial de la SAS I@D France immatriculé au RSAC de Strasbourg sous le numéro 980189278, titulaire de la carte de démarchage immobilier pour le compte de la société I@D France SAS.
Mandat : 1885870
Diagnostic de Performance Énergétique (DPE)
Plus d'informations
-
Descriptif
- Cave
- Étage du bien : 5eme
- Ascenseur
- Nbre. d'étages : 5
- Nbre. de chambres : 4
- Nb. de pièces : 9
-
Equipement
- Digicode
- Chauffage : collectif gaz radiateur
- Interphone
-
Loi ALUR
- Copropriété
- Nombre de lots de la copropriété : 39
- Moyenne de la quote part(an) : 5 000 €
-
Etat
- Année de construction : 1949
-
Conditions
- Honoraires à charge de : vendeur
-
Superficies
- Surface habitable : 252 m²
Localisation
Contactez nous
Pour plus d'informations sur cette annonce, n'hésitez pas à nous contacter