Vente
Maison
à
Les Arcs
399 000 €
Les Arcs (83460)
iad France - Vanessa Prochasson vous propose:
Les Arcs – Maison contemporaine 4 chambres avec jardin
Vous recherchez une maison moderne, fonctionnelle et bientôt prête à vous accueillir ?
Cette maison contemporaine d’environ 100 m², actuellement en fin de construction, sera livrable à partir du 1er mai.
Dès l’entrée, vous découvrirez une belle pièce de vie lumineuse avec cuisine ouverte, pensée pour un quotidien agréable et convivial.
Le rez-de-chaussée propose également une chambre avec salle d’eau, idéale pour une suite parentale, un espace invité ou un bureau.
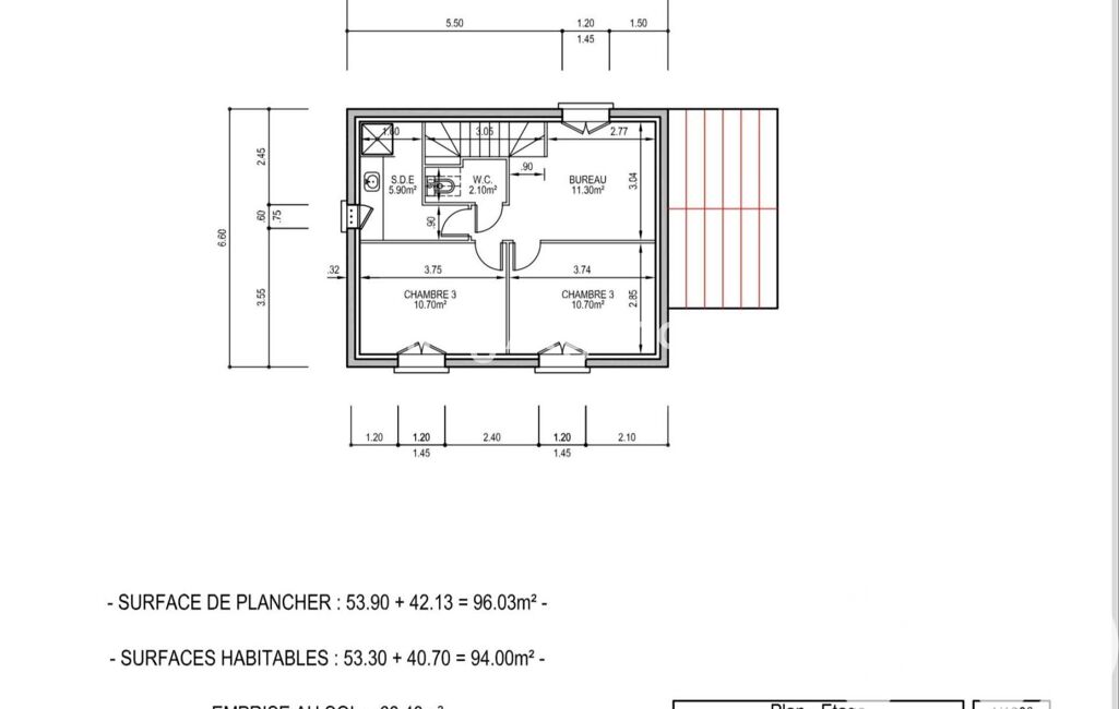
À l’étage, vous trouverez 3 chambres, une salle de bains ainsi qu’un WC indépendant, avec un agencement optimisé pour toute la famille.
À l’extérieur, la maison bénéficie d’un terrain de 340 m², facile à entretenir, avec stationnements privatifs.
Le vrai plus : une maison neuve, aux prestations actuelles, offrant confort et sérénité, avec une livraison proche pour concrétiser rapidement votre projet de vie.
À noter : l’aménagement extérieur, y compris un éventuel projet de piscine, restera à la charge des futurs propriétaires. De la même manière, la cuisine ne sera pas installée, afin de laisser à chacun la liberté de concevoir un espace à son goût et selon ses envies. Les salles d’eau, quant à elles, seront entièrement équipées.
Important : les visuels d’aménagement présentés sont des propositions d’idées de mise en décoration et d’agencement, non contractuelles.
Mandat : 1976392
Diagnostic de Performance Énergétique (DPE)
Plus d'informations
-
Equipement
- Câble TV
- Chauffage : electrique
- Climatisation
-
Descriptif
- Nbre. d'étages : 1
- Nbre. de chambres : 4
- Nb. de pièces : 5
-
Superficies
- Superficie terrain : 340 m²
- Surface habitable : 96 m²
-
Etat
- Année de construction : 2025
-
Conditions
- Honoraires à charge de : vendeur
Localisation
Contactez nous
Pour plus d'informations sur cette annonce, n'hésitez pas à nous contacter