Vente
Maison
à
Tronchy
230 000 €
Tronchy (71440)
iad France - Céline Jouvenceau vous propose: À VENDRE – ENSEMBLES IMMOBILIER - Charmante Longère de 155 m² à Tronchy - 4 chambres – PARTIE PROFESSIONNELLE (ÉLEVAGE ou PENSION canine) avec Dépendances – 42 chenils – 1 Hangar
À seulement 20 minutes de Chalon-sur-Saône et Louhans, et à 30 minutes de l'autoroute de Tournus (A6) et de l'autoroute du Miroir (A39) découvrez cette longère pleine de cachet, située dans un environnement calme et verdoyant, parfaite pour une famille ou un projet professionnel tel qu’une pension canine ou un élevage.
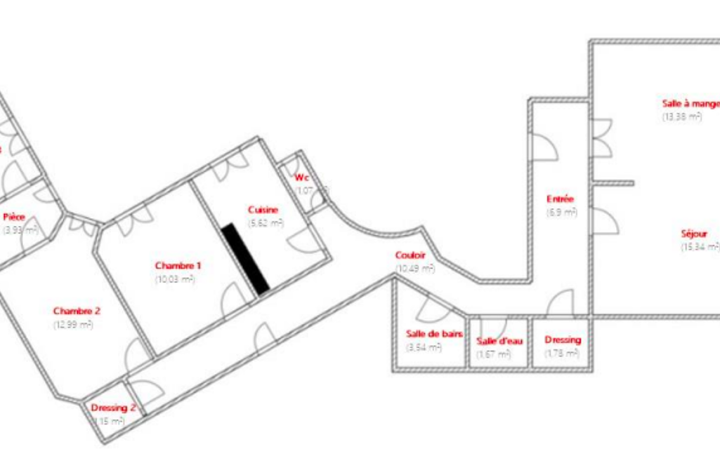
Une Maison de 155 m² sur deux niveaux.
De plain-pied, elle offre :
- Une salle à manger conviviale,
- Un salon cocooning avec poêle à bois,
- Une cuisine équipée,
- Une véranda récente,
- 2 chambres,
- Une salle d’eau,
- Un WC séparé,
- Un dressing ou pièce multifonction,
- Une buanderie, un garage/chaufferie.
À l'étage, deux espaces bien distincts :
- Une mezzanine bureau et une grande salle de jeux dans une aile,
- Une deuxième mezzanine et 2 chambres supplémentaires dans l'autre partie.
A l’extérieur, un Appentis pouvant abriter 2 véhicules.
Équipements & confort
- Toiture en bon état (moins de 30 ans), Menuiseries en double vitrage, Chauffage au fioul + poêle à bois, Véranda neuve, Aspiration centralisée, Assainissement individuel aux normes (réalisé en 2018),
Dépendances & installations professionnelles :
- Une dépendance de 80 m² pouvant servir de local professionnel ou être aménagée selon vos besoins,
- 48 boxes à chiens parfaitement adaptés pour une pension canine ou un élevage,
- Un hangar de 70 m² pour stockage,
Le tout sur un terrain de 4430 m², dans un cadre champêtre propice à la détente ou à un projet professionnel animalier.
Une propriété rare sur le marché, alliant habitation familiale et potentiel professionnel immédiat.
Honoraires d'agence à la charge du vendeur.
Information d'affichage énergétique sur ce bien : classe ENERGIE D indice 155 et classe CLIMAT D indice 36. Les informations sur les risques auxquels ce bien est exposé, y compris l'obligation légale de débroussaillement, sont disponibles sur le site Géorisques : http://www.georisques.gouv.fr.
La présente annonce immobilière a été rédigée sous la responsabilité éditoriale de Mme Céline Jouvenceau mandataire indépendant en immobilier (sans détention de fonds), agent commercial de la SAS I@D France immatriculé au RSAC de Chalon sur Saone sous le numéro 891580920, titulaire de la carte de démarchage immobilier pour le compte de la société I@D France SAS.
Mandat : 1885789
Diagnostic de Performance Énergétique (DPE)
Plus d'informations
-
Descriptif
- Terrasse
- Nbre. d'étages : 1
- Nbre. de chambres : 4
- Nb. de pièces : 8
-
Superficies
- Superficie terrain : 4430 m²
- Surface habitable : 155 m²
-
Equipement
- Chauffage : fuel radiateur
-
Conditions
- Honoraires à charge de : vendeur
Localisation
Contactez nous
Pour plus d'informations sur cette annonce, n'hésitez pas à nous contacter