Vente
Appartement
à
Uzès
235 000 €
Uzès (30700)
iad France - Penelope Stoker (06 50 24 86 27) vous propose : Appartement T2 avec terrasse et garage à Uzès
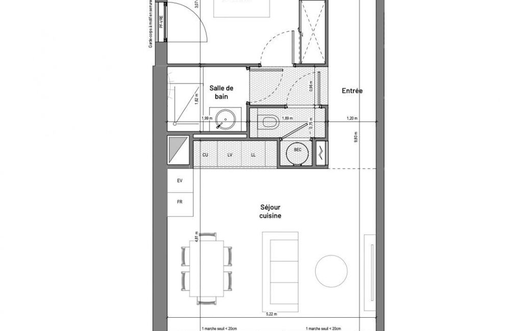
Situé dans un cadre résidentiel recherché, ce bel appartement T2 offre un confort moderne à proximité des commodités et du centre historique.
D'une surface habitable de 48,7m2 environ, il se compose de :
Une pièce de vie lumineuse avec séjour / cuisine ouverte de 22,çm2
Une chambre confortable de 11,2m2 environ
Une entrée avec rangement de 9,4m2 environ apportant une vraie séparation des espaces
Une salle de bains
Un WC indépendant
L'appartement dispose également d'une terrasse privative exposée sud de 7,9m2 environ, idéale pour profiter des beaux jours dans un environnement calme.
Ce logement bénéficie d'un emplacement stratégique, entre tranquillité et accès rapide aux commerces, services et coeur de ville.
Vendu avec un garage.
Pour plus de renseignements merci de me contacter.
Honoraires d’agence à la charge du vendeur. Bien non soumis au DPE. Les informations sur les risques auxquels ce bien est exposé sont disponibles sur le site Géorisques : www.georisques.gouv.fr. La présente annonce immobilière a été rédigée sous la responsabilité éditoriale de Mme Penelope Stoker EI (ID 83102), mandataire indépendant en immobilier (sans détention de fonds), agent commercial de la SAS I@D France immatriculé au RSAC de Paris sous le numéro 930194964, titulaire de la carte de démarchage immobilier pour le compte de la société I@D France SAS.
Retrouvez tous nos biens sur notre site internet. www.iadfrance.fr
Mandat : 1906038-2
Diagnostic de Performance Énergétique (DPE)
Plus d'informations
-
Descriptif
- Terrasse
- Ascenseur
- Nb. Parking : 1
- Nb. de pièces : 2
-
Equipement
- Digicode
- Interphone
-
Conditions
- Honoraires à charge de : vendeur
-
Superficies
- Surface habitable : 49 m²
Localisation
Contactez nous
Pour plus d'informations sur cette annonce, n'hésitez pas à nous contacter