Vente
Local commercial
à
Paris
950 000 €
Paris (75011)
MURS DE 2 BOUTIQUES SIS AU 119 RUE DE MONTREUIL 75011 PARIS VUE DEPUIS LA PLACE DE LA NATION VIA AVENUE DES BOUVINES
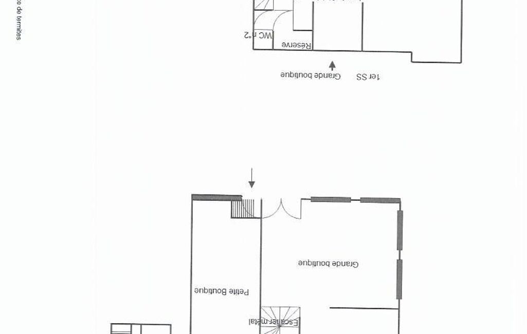
LOT DE 2 BOUTIQUES
1 ) grand local commercial occupé par Mood lounge depuis 9 ans régulier et dont le bail est renouvelé actuellement 2950 euros passe au 1er juillet 2026 à 3100 euros ht et hc
prix de vente 650.000 frais inclus
2 ) petit local commercial libre 1700 euros ht et hc pour 350000 euros frais inclus
le tout pour 950000 euros frais inclus
TRES BON INVESTISSEMENT 6% net
Diffuze : votre prestataire de diffusion d'annonces immobilières
Mandat : 64-550eb1af
Diagnostic de Performance Énergétique (DPE)
Plus d'informations
-
Descriptif
- Cave
- Nb. de pièces : 4
-
Conditions
- Honoraires : 5 €
- Honoraires à charge de : vendeur
-
Equipement
- Chauffage : gaz,collectif
-
Superficies
- Surface habitable : 100 m²
Localisation
Contactez nous
Pour plus d'informations sur cette annonce, n'hésitez pas à nous contacter
Diffuze
Annonce 1789 /
75012