Vente
Maison de ville
à
Limoges
239 000 €
Limoges (87000)
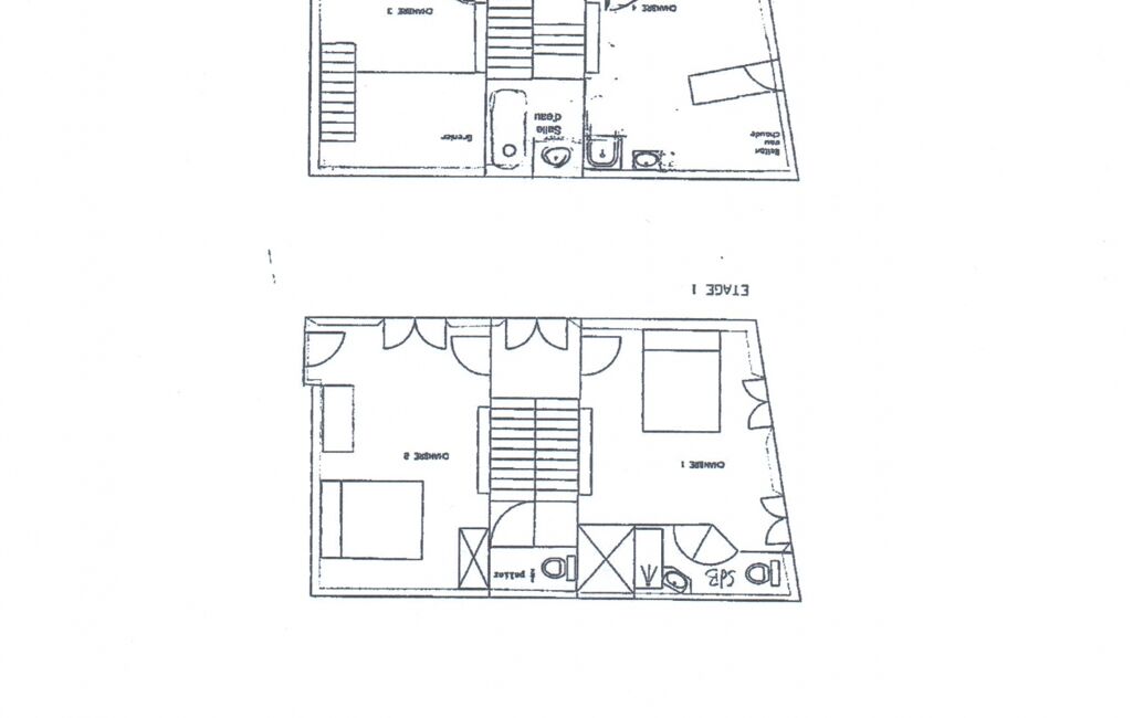
iad France - Pascal PEROT vous propose: Exclusivité quartier historique de la cathédrale , demeure aux atouts de la campagne en ville , environ 101 m2 habitable , cour d'environ 40 m2 plus son appentis, au rez de chaussée votre famille se retrouvera dans une cuisine dinatoire aménagée et équipé, une pièce de vie prolongera votre partage , l'étage desservi par un escalier et ses paliers ou se entremêlent brique , pierre est pan de bois massif, vous aurez plaisir à vous reposer en une 1er chambre parentale et son wc, une 2eme chambre et un wc , le dernier étage reçoit une salle d'eau , une chambre et un grenier partiellement aménagé. Patrimoine libre de son locataire au second trimestre 2026, L'histoire est en marche, bien à vous.
Honoraires d'agence à la charge du vendeur.
Information d'affichage énergétique sur ce bien : classe ENERGIE C indice 135 et classe CLIMAT B indice 4. Les informations sur les risques auxquels ce bien est exposé, y compris l'obligation légale de débroussaillement, sont disponibles sur le site Géorisques : http://www.georisques.gouv.fr.
La présente annonce immobilière a été rédigée sous la responsabilité éditoriale de M Pascal PEROT mandataire indépendant en immobilier (sans détention de fonds), agent commercial de la SAS I@D France immatriculé au RSAC de LIMOGES sous le numéro 500152392, titulaire de la carte de démarchage immobilier pour le compte de la société I@D France SAS.
Mandat : 1900214
Diagnostic de Performance Énergétique (DPE)
Plus d'informations
-
Descriptif
- Terrasse
- Nbre. d'étages : 2
- Nbre. de chambres : 3
- Nb. de pièces : 4
-
Superficies
- Superficie terrain : 132 m²
- Surface habitable : 101 m²
-
Equipement
- Chauffage : electrique
-
Etat
- Année de construction : 1800
-
Conditions
- Honoraires à charge de : vendeur
Localisation
Contactez nous
Pour plus d'informations sur cette annonce, n'hésitez pas à nous contacter