Vente
Maison
à
Allaire
163 000 €
Allaire (56350)
iad France - Laurent Perdrel vous propose: Maison traditionnelle d'une surface habitable de 74m², construite en 2008, sur une parcelle de 990m².
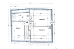
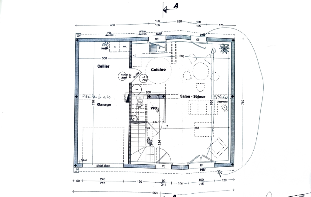
Composée au rdc, d'une cuisine aménagée ouverte sur un salon/séjour, wc et un garage.
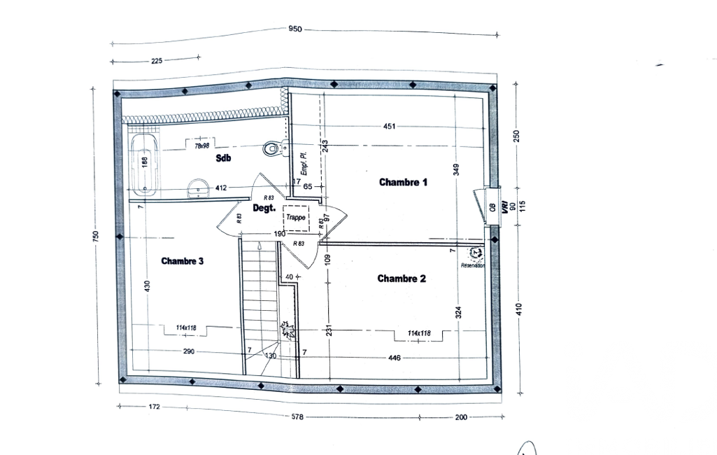
A l'étage, un palier distribuant 3 chambres et une salle de bains avec wc.
Chauffage électrique, VMC.
Proche centre-ville d'Allaire, écoles, collège, tous commerces et services.
Honoraires d'agence à la charge de l'acquéreur. Prix honoraires inclus : 163000 euros. Prix hors honoraires : 155000 euros. Honoraires TTC à la charge de l'acquéreur (5,16% du prix du bien hors honoraires) : 8000 euros.
Information d'affichage énergétique sur ce bien : classe ENERGIE D indice 220 et classe CLIMAT B indice 7. Les informations sur les risques auxquels ce bien est exposé, y compris l'obligation légale de débroussaillement, sont disponibles sur le site Géorisques : http://www.georisques.gouv.fr.
La présente annonce immobilière a été rédigée sous la responsabilité éditoriale de M Laurent Perdrel mandataire indépendant en immobilier (sans détention de fonds), agent commercial de la SAS I@D France immatriculé au RSAC de VANNES sous le numéro 901616151, titulaire de la carte de démarchage immobilier pour le compte de la société I@D France SAS.
Mandat : 1941646
Diagnostic de Performance Énergétique (DPE)
Plus d'informations
-
Conditions
- Honoraires : 8 000 €
- Prix hors honoraires acquéreur : 155 000 €
- Honoraires à charge de : acquéreur
-
Descriptif
- Nbre. d'étages : 2
- Nbre. de chambres : 3
- Nb. de pièces : 4
-
Superficies
- Superficie terrain : 990 m²
- Surface habitable : 74 m²
-
Equipement
- Chauffage : electrique radiateur
-
Etat
- Année de construction : 2008
Localisation
Contactez nous
Pour plus d'informations sur cette annonce, n'hésitez pas à nous contacter