Vente
Appartement
à
Paris
1 050 000 €
Paris (75018)
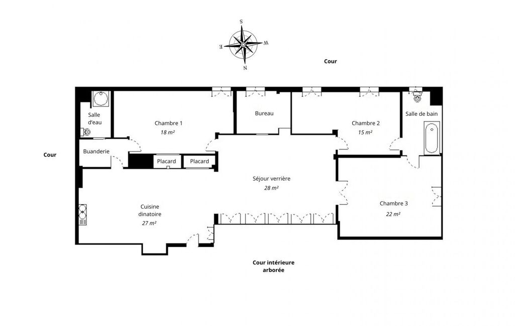
iad France - Julien Berger (06 38 81 41 41) vous propose : Au sein d'une ancienne usine du XIXe siècle réhabilitée, cet appartement familial esprit loft de 133 m² environ conjugue le charme de l'ancien et la générosité des volumes contemporains. La copropriété, nichée sous une grande verrière abritant une 'forêt tropicale', offre un cadre verdoyant et dépaysant, rare dans Paris.
Le vaste séjour baigné de lumière, sublimé par une verrière zénithale, s'articule autour d'une grande cuisine dinatoire ouverte, aménagée et équipée et de l'espace nuit : 3 grandes chambres et un bureau (ou chambre d'appoint),
Une salle de bain avec toilettes, une salle d'eau avec toilettes et une buanderie viennent compléter ce bien.
Ce qui frappe autant que les volumes, c'est le calme. Une tranquillité presque inattendue à deux pas de tout : le Marché de l'Olive, la ZAC Pajol et le métro Marx Dormoy à 3 minutes à pied. La Gare du Nord et la butte Montmartre à seulement 15 minutes.
Un appartement atypique, rare, familial et généreux — pour ceux qui refusent de choisir entre caractère, espace et centralité.
La présente annonce immobilière vise 2 lots principaux situés dans une copropriété formant 32 lots au total ne faisant l'objet d'aucune procédure en cours et d'un montant de charges d’environ 211 € par mois (soit 2532 € annuel) déclaré par le vendeur.Honoraires d’agence à la charge du vendeur.Information d'affichage énergétique sur ce bien : classe ENERGIE D indice 246 et classe CLIMAT B indice 9. Les informations sur les risques auxquels ce bien est exposé sont disponibles sur le site Géorisques : www.georisques.gouv.fr. La présente annonce immobilière a été rédigée sous la responsabilité éditoriale de M. Julien Berger EI (ID 24760), mandataire indépendant en immobilier (sans détention de fonds), agent commercial de la SAS I@D France immatriculé au RSAC de PARIS sous le numéro 754026474, titulaire de la carte de démarchage immobilier pour le compte de la société I@D France SAS. Le présent bien est commercialisé dans le cadre d'une délégation de mandat.
Retrouvez tous nos biens sur notre site internet. www.iadfrance.fr
Mandat : 1964201
Diagnostic de Performance Énergétique (DPE)
Plus d'informations
-
Loi ALUR
- Copropriété
- Nombre de lots de la copropriété : 58
- Moyenne de la quote part(an) : 2 532 €
-
Descriptif
- Nbre. d'étages : 4
- Nbre. de chambres : 3
- Nb. de pièces : 4
-
Equipement
- Chauffage : individuel electrique radiateur
-
Conditions
- Honoraires à charge de : vendeur
-
Superficies
- Surface habitable : 133 m²
Localisation
Contactez nous
Pour plus d'informations sur cette annonce, n'hésitez pas à nous contacter