Vente
Appartement
à
Aix-les-Bains
512 000 €
Aix-les-Bains (73100)
iad France - Sarah Rozière (06 99 86 19 42) vous propose : Appartement T3 avec balcon à Aix-les-Bains.
Venez découvrir ce T3 d’exception niché au 6 ème étage des Nouveaux Thermes, un lieu chargé d'histoire, d’élégance et de renouveau.
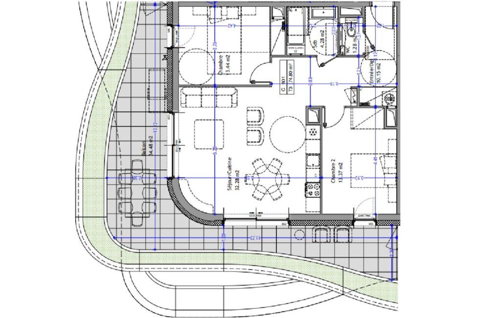
Ce 3 pièces de 75 m² environ offre un séjour-cuisine lumineux, prolongé par un balcon de 34 m² environ. Il se compose de deux chambres confortables, d’une salle de bains moderne, et se complète par un box privatif.
Une architecture d’avant-garde. Un art de vivre incomparable.
Sur la prestigieuse Place Maurice Mollard, cOEur historique d’Aix-les-Bains, découvrez une adresse qui ne ressemble à aucune autre : Les Nouveaux Thermes, renaissance contemporaine d’un site thermal majeur de la ville. Ici, l’histoire millénaire des eaux aixoises s’unit à la créativité du visionnaire Vincent Callebaut, architecte internationalement reconnu pour son architecture biomimétique, poétique et profondément écologique.
La signature d’un architecte de renommée mondiale :
Imaginées par Vincent Callebaut Architectures, les nouvelles résidences émergent avec légèreté du socle thermal historique : deux silhouettes sculpturales, ondulantes, habillées de végétation et baignées de lumière naturelle.
Architecte belge de stature internationale, Vincent Callebaut est reconnu pour son approche pionnière mêlant nature, technologie et durabilité. Ses projets s’inspirent du vivant : courbes organiques, façades végétalisées, matériaux durables, symbiose entre architecture et biodiversité.
Une OEuvre à la croisée du passé et du futur :
Les appartements s’ouvrent sur de vastes terrasses végétalisées, véritables respirations suspendues face au lac du Bourget, au Revard et à la Dent du Chat. Les intérieurs, magnifiés par de grandes baies vitrées, offrent une qualité de lumière exceptionnelle et cette sensation rare d’habiter à la fois la ville, la nature et le paysage.
Une résidence durable et innovante :
- Chauffage et rafraîchissement par géothermie, puisant directement son énergie dans la source historique d’Aix-les-Bains.
- Conception répondant aux normes environnementales les plus exigeantes.
- Façades végétalisées entretenues par des jardiniers professionnels.
- Parties communes sublimées par le réemploi des vitraux sérigraphiés patrimoniaux.
- Architecture pensée pour réduire l’empreinte carbone et augmenter le confort thermique.
Depuis la Place Maurice Mollard, vous profitez d’un accès immédiat à la vie aixoise : commerces, gastronomie, culture, gare, animations, parcs et activités thermales. Un emplacement exceptionnel où se conjuguent patrimoine, nature, élégance et modernité.
N’hésitez pas à me contacter pour plus d’informations ou pour un accompagnement sur mesure.
Honoraires d’agence à la charge du vendeur. Bien non soumis au DPE. Les informations sur les risques auxquels ce bien est exposé sont disponibles sur le site Géorisques : www.georisques.gouv.fr. La présente annonce immobilière a été rédigée sous la responsabilité éditoriale de Mlle Sarah Rozière EI (ID 83696), mandataire indépendant en immobilier (sans détention de fonds), agent commercial de la SAS I@D France immatriculé au RSAC de Clermont-Ferrand sous le numéro 978616993, titulaire de la carte de démarchage immobilier pour le compte de la société I@D France SAS.
Retrouvez tous nos biens sur notre site internet. www.iadfrance.fr
Mandat : 1885883-61
Diagnostic de Performance Énergétique (DPE)
Plus d'informations
-
Descriptif
- Étage du bien : 6eme
- Ascenseur
- Nbre. d'étages : 13
- Nbre. de chambres : 2
- Nb. de pièces : 3
-
Equipement
- Câble TV
- Digicode
- Placards
- Interphone
- Climatisation
-
Etat
- Année de construction : 2029
-
Conditions
- Honoraires à charge de : vendeur
-
Superficies
- Surface habitable : 75 m²
Localisation
Contactez nous
Pour plus d'informations sur cette annonce, n'hésitez pas à nous contacter