Vente
Maison
à
Meyreuil
480 000 €
Meyreuil (13590)
Résidence du Village -
Meyreuil (13)
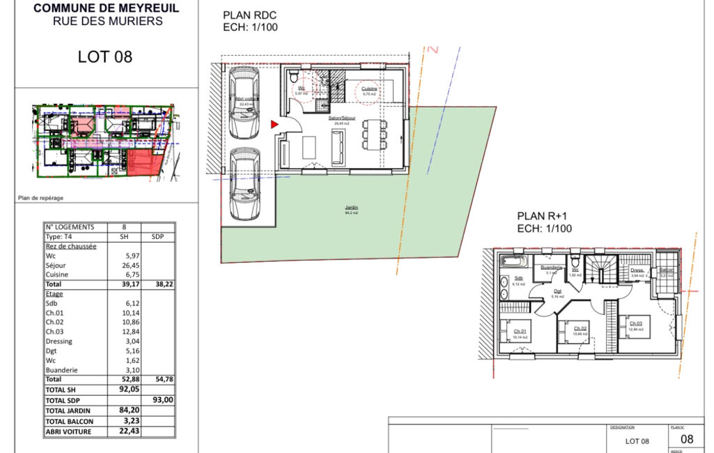
6 rue des Mûriers, Meyreuil
Une maison pensée pour la vie de famille
Environ 100 m² habitables
R+1
4 à 5 chambres selon configuration
Séjour lumineux avec grandes baies vitrées
Jardin privatif
Stationnement individuel
PRIX DE VENTE 480 000€
Un emplacement stratégique
Centre de Meyreuil à proximité immédiate
Accès rapides A8 / D7
Écoles, commerces et espaces verts à quelques minutes
Aix-en-Provence : 10 min
Gardanne : 7 min
Marseille : 25 min
Diffuze : votre prestataire de diffusion d'annonces immobilières
Mandat : 102-5047f1a2
Diagnostic de Performance Énergétique (DPE)
Plus d'informations
-
Descriptif
- Balcon
- Duplex
- Nb. de salles de bain : 2
- Parking
- Terrasse
- Nbre. d'étages : 1
- WC séparés
- Nbre. de chambres : 4
- Nb. de pièces : 5
-
Equipement
- Cuisine : Américaine
- Chauffage : electrique,individuel
- Climatisation
-
Superficies
- Superficie terrain : 200 m²
- Surface habitable : 100 m²
-
Environnement
- Calme
Localisation
Contactez nous
Pour plus d'informations sur cette annonce, n'hésitez pas à nous contacter
Diffuze
Annonce 1743 /
74563