Vente
Maison
à
Le Cheylas
320 000 €
Le Cheylas (38570)
iad France - Marie-Rose Gilles (06 98 85 33 80) vous propose : Maison neuve au Cheylas sur 2 niveaux avec un chambre au RDC : frais de notaire réduits ie qu'ils s'élèvent à environ 2,5% du prix de vente.
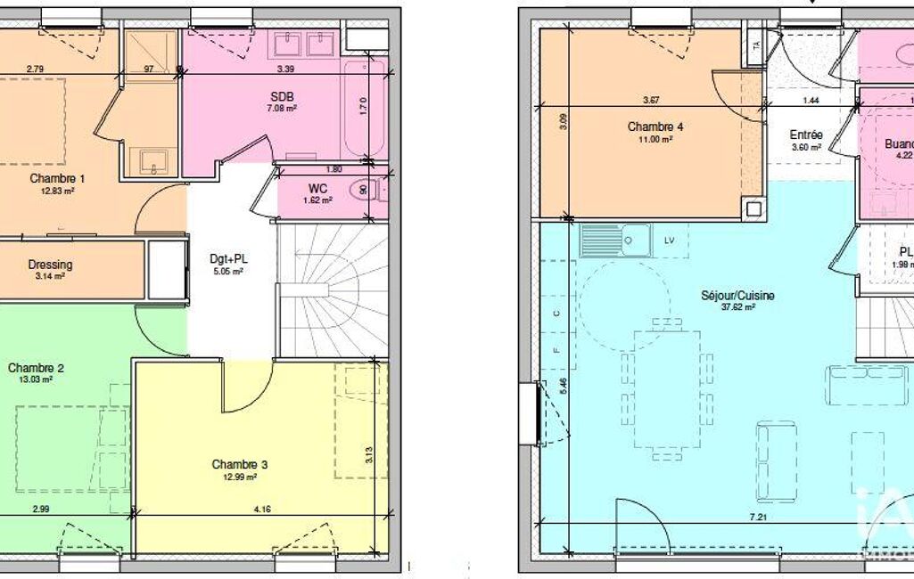
Je vous propose à la vente une maison neuve sur la commune du Cheylas.
Elle est disponible dans 2 configurations :
- 3 chambres (T4) au prix de 310 000€
- ou 4 chambres (T5) au prix de 320 000€
Jardin : 173,58m² environ
Terrasse : 22,03m² environ
Maison lumineuse et ensoleillée grâce à son exposition Sud-Ouest.
Prestations :
- Spacieux espace de vie de 37,62m² environ
- 4 grandes chambres
- 1 WC à chaque étage
- 1 grande salle-de-bains avec baignoire et meuble double vasque
- 1 buanderie
- Réglementation thermique 2020
- Chauffage et production d'eau chaude : individuel gaz
- Sols : carrelage 60x60cm dans les toutes les pièces sauf les chambres, en revêtement stratifié
- Murs : Peinture
Date de livraison prévisionnelle : 3e trimestre 2028
Proximité des services, commerces, écoles :
Le Cheylas, commune résidentielle à :
A moins de 5min : Goncelin (38570)
A moins de 10min : Tencin (38570), Le Touvet (38660)
A moins de 15min : Pontcharra (38530), Allevard (38580), Theys (38570), La Terrasse (38660)
A moins de 20min : Crolles (38920), Froges (38190), Brignoud Villard-Bonnot (38190), Chapareillan (38530), Porte de Savoie (73800)
A moins de 30min : Chambéry (73000), Grenoble (38000), Challes-les-Eaux (73190)
Contactez moi pour toute information complémentaire
Honoraires d’agence à la charge du vendeur. Bien non soumis au DPE. Les informations sur les risques auxquels ce bien est exposé sont disponibles sur le site Géorisques : www.georisques.gouv.fr. La présente annonce immobilière a été rédigée sous la responsabilité éditoriale de Mlle Marie-Rose Gilles EI (ID 83761), mandataire indépendant en immobilier (sans détention de fonds), agent commercial de la SAS I@D France immatriculé au RSAC de GRENOBLE sous le numéro 478110612, titulaire de la carte de démarchage immobilier pour le compte de la société I@D France SAS.
Retrouvez tous nos biens sur notre site internet. www.iadfrance.fr
Mandat : 1944334-1
Diagnostic de Performance Énergétique (DPE)
Plus d'informations
-
Descriptif
- Terrasse
- Nbre. d'étages : 1
- Nb. de pièces : 5
-
Equipement
- Placards
- Chauffage : gaz radiateur
-
Superficies
- Superficie terrain : 173 m²
- Surface habitable : 113 m²
-
Conditions
- Honoraires à charge de : vendeur
Localisation
Contactez nous
Pour plus d'informations sur cette annonce, n'hésitez pas à nous contacter