Vente
		
			Bureau
			 à 
			Lille
		
				
			3 675 000 €		
			
	
	
	Lille (59000)
iad France - Cheila Moudoumbi Loguissoum (06 21 82 85 80) vous propose : Belle opportunité à saisir   un immeuble de bureaux situé sur la commune de LILLE , il s'agit d' un bien de 10 pièces  (plateaux) sur quatre étages  superficie de 1002,72 m2 environ ,pouvant  vous offrir un cadre fonctionnel et agréables .  
Localisation idéale:
Le bien est situé  dans le vieux LILLE à proximité du centre ville  10minutes  à pieds de la GARE LILLE FLANDRES , un arrêt de bus et à moins de 50 mètres de l' immeuble , permettant de rejoindre la gare ou les villes  limitrophes .Proche de nombreuses  commodités, notamment à du Palais de Justice.  
Normes PMR et ERP possibles, idéal pour maison senior, centre de formation , espace coworking,  salle de sport , un cabinet médical ou des bureaux.
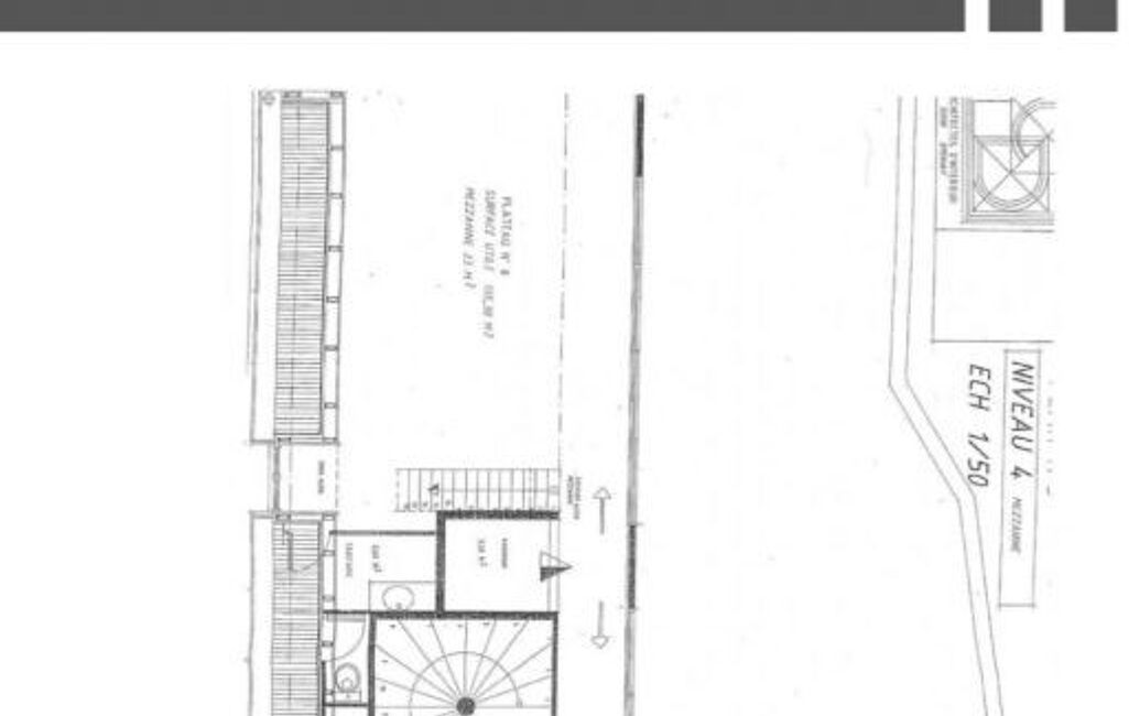
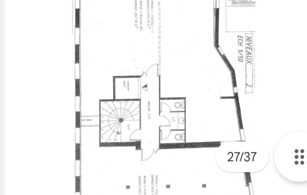
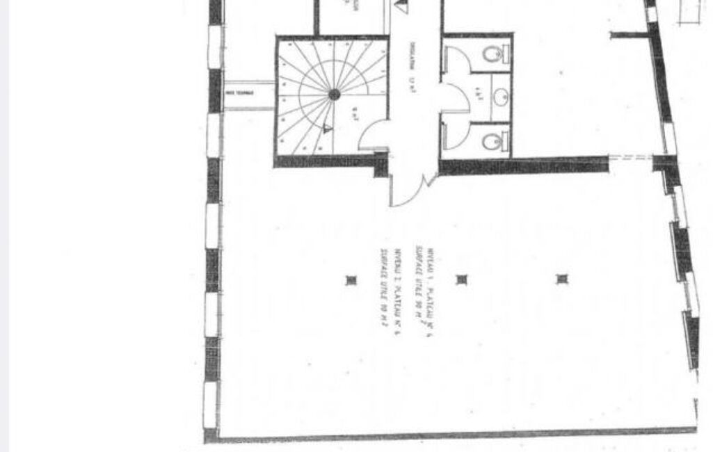
• l'immeuble  offre  quatre étages  composer sur chaque  niveau  de deux plateaux  aux  extrémités  ,au centre les communs avec un  couloir , un escalier  , un ascenseur et les sanitaires . Un  plateau dispose  d'une mezzanine de  50m2 environ mansardée  avec une hauteur sous plafond de max de 1,90m2 environ. Vous y trouverez un sous-sol pouvant être à usage de restauration.  
Chaque plateaux est traversant ,avec trois ou quatre fenêtres en pavés de verre  et fenêtres oscillo-battantes à l'arrière des étages.
Circuits électriques indépendants pour chaque plateau ,avec compteurs.
Ventilation mécanique contrôlée (VMC) desservant tous les couloirs et sanitaires.
Murs plaqués  et isolés faux plafonds en dalles amovibles avec éclairage LED intégré.
. Cet immeuble constitue une opportunité unique pour les entreprises souhaitons s'implanter dans un cadre dynamique et stratégique.
Votre conseillère reste à votre écoute.
Sans plus tarder je vous invite à venir le visiter disponible 7/7.
 Information d'affichage énergétique sur le bien associé à cette annonce : DPE NS indice 0 et GES NS indice 0. La présente annonce immobilière a été rédigée sous la responsabilité éditoriale de Mlle Cheila Moudoumbi Loguissoum (ID 67387), Agent Commercial mandataire en immobilier immatriculé au Registre Spécial des Agents Commerciaux (RSAC) du Tribunal de Commerce de SENS sous le numéro 911980456
Retrouvez tous nos biens sur notre site internet. www.iadfrance.fr
Mandat : 1715593
Diagnostic de Performance Énergétique (DPE)
Plus d'informations
- 
			Conditions
			
- Honoraires à charge de : vendeur
 
 - 
			Superficies
			
- Surface habitable : 1002 m²
 
 
Localisation
Contactez nous
Pour plus d'informations sur cette annonce, n'hésitez pas à nous contacter