Vente
Maison
à
Bessines
278 000 €
Bessines (79000)
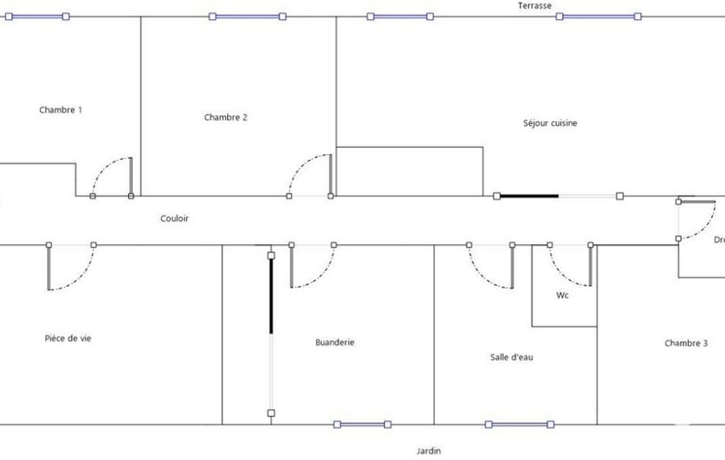
iad France - Marie Haoui vous propose: Découvrez ce plain-pied de 124m2, maison des années 70, ayant bénéficié d'une rénovation complète et soignée.
Les Atouts de ce bien :
• Espace de vie lumineux : Un vaste salon ouvert sur une cuisine moderne, idéale pour la convivialité.
• Espace nuit : 4 chambres spacieuses pour accueillir toute la famille.
• Fonctionnalité : Une buanderie indépendante équipée d'un point d'eau et vaste rangements. Portail motorisé et interphone
• Confort & Économies : Chauffage par pompe à chaleur (PAC) et menuiseries en PVC double vitrage, garantissant une facture énergétique très faible. Tout à l'égout
Extérieur & Potentiel :
• Terrain clos et paysagé : Un jardin parfait pour vos moments avec terrasse carrelée et pergola. La maison ne dispose pas de garage/careport, le terrain permet d'en construire un facilement selon vos besoins
Une maison clé en main où vous n'avez plus qu'à poser vos valises. Décoration réalisée avec goût, finitions impeccables et performance énergétique au rendez-vous.
Honoraires d'agence à la charge du vendeur.
Information d'affichage énergétique sur ce bien : classe ENERGIE C indice 134 et classe CLIMAT A indice 4. Les informations sur les risques auxquels ce bien est exposé, y compris l'obligation légale de débroussaillement, sont disponibles sur le site Géorisques : http://www.georisques.gouv.fr.
La présente annonce immobilière a été rédigée sous la responsabilité éditoriale de Mme Marie Haoui mandataire indépendant en immobilier (sans détention de fonds), agent commercial de la SAS I@D France immatriculé au RSAC de NIORT sous le numéro 814612701, titulaire de la carte de démarchage immobilier pour le compte de la société I@D France SAS.
Mandat : 1939585
Diagnostic de Performance Énergétique (DPE)
Plus d'informations
-
Descriptif
- Nbre. d'étages : 1
- Nb. de pièces : 5
-
Superficies
- Superficie terrain : 780 m²
- Surface habitable : 124 m²
-
Equipement
- Interphone
-
Etat
- Année de construction : 1970
-
Conditions
- Honoraires à charge de : vendeur
Localisation
Contactez nous
Pour plus d'informations sur cette annonce, n'hésitez pas à nous contacter