Vente
Appartement
à
Brie-Comte-Robert
240 000 €
Brie-Comte-Robert (77170)
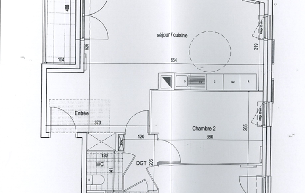
iad France - Tony Da Costa Vilas Boas vous propose: Brie-Comte-Robert, quartier Leclerc-Verdun : appartement 3 pièces d’environ 65 m² avec balcon, deux places de parking en sous-sol et une cave, situé au 1er étage avec ascenseur, proche de toutes commodités. Il offre un grand séjour lumineux de 32 m² avec cuisine ouverte équipée, coin bureau et accès balcon, une chambre d’environ 12 m² et une autre de 10 m², une salle de bain et un WC indépendant. Résidence de 2019 avec garantie décennale, normes RT 2012, au calme, fenêtres PVC double vitrage, exposition sud, accessible PMR, sans travaux à prévoir. Charges incluant chauffage, eau chaude et froide. À visiter sans tarder, coup de cOEur garanti !
La presente annonce immobiliere vise 4 lots situés dans une copropriété de 155 lots au total et ne faisant l'objet d'aucune procédure en cours citée à l'article L. 721-1 du code de la construction et de l'habitation. Montant moyen mensuel de charges déclaré par le vendeur : 233.33€ par mois (soit 2800 € annuel). Honoraires d'agence à la charge du vendeur.
Information d'affichage énergétique sur ce bien : classe ENERGIE C indice 71 et classe CLIMAT C indice 12. Les informations sur les risques auxquels ce bien est exposé, y compris l'obligation légale de débroussaillement, sont disponibles sur le site Géorisques : http://www.georisques.gouv.fr.
La présente annonce immobilière a été rédigée sous la responsabilité éditoriale de M Tony Da Costa Vilas Boas mandataire indépendant en immobilier (sans détention de fonds), agent commercial de la SAS I@D France immatriculé au RSAC de MELUN sous le numéro 911747566, titulaire de la carte de démarchage immobilier pour le compte de la société I@D France SAS.
Mandat : 1942601
Diagnostic de Performance Énergétique (DPE)
Plus d'informations
-
Descriptif
- Étage du bien : 1er
- Ascenseur
- Nbre. d'étages : 3
- Nbre. de chambres : 2
- Nb. de pièces : 3
-
Equipement
- Digicode
- Chauffage : collectif gaz radiateur
- Interphone
-
Loi ALUR
- Copropriété
- Nombre de lots de la copropriété : 155
- Moyenne de la quote part(an) : 2 800 €
-
Superficies
- Surface du balcon : 4 m²
- Surface habitable : 65 m²
-
Etat
- Année de construction : 2019
-
Conditions
- Honoraires à charge de : vendeur
Localisation
Contactez nous
Pour plus d'informations sur cette annonce, n'hésitez pas à nous contacter