Vente
Appartement
à
Uzès
235 000 €
Uzès (30700)
iad France - Penelope Stoker (06 50 24 86 27) vous propose : Appartement T2 avec terrasse et garage à Uzès
Situé dans un environnement calme et résidentiel, ce bel appartement offre un cadre de vie agréable à deux pas des commodités et du centre historique.
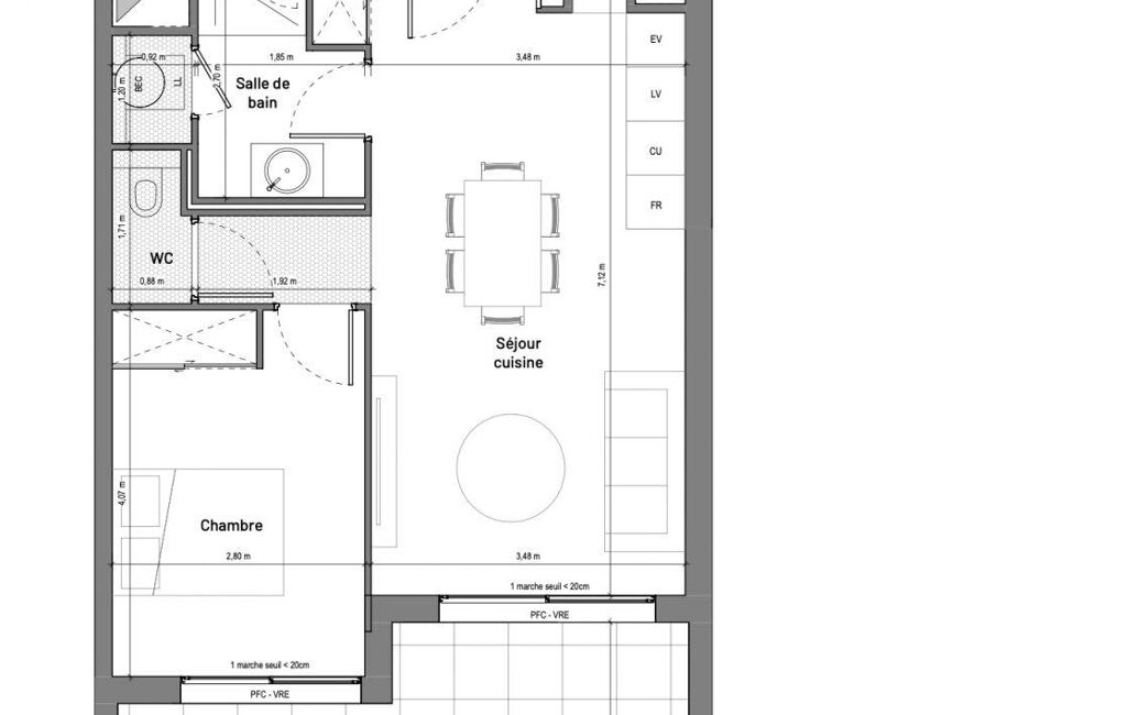
D'une surface habitable de 44,7m2 environ, il se compose de :
Une belle pièce de vie avec séjour / cuisine ouverte de 26,6m2 environ
Une chambre de 11,3m2 environ
Une salle de bains
Un WC indépendant
Vous profiterez également d'une agréable terrasse privative de 12,6m2 environ exposée sud, parfaite pour profiter des beaux jours.
Implanté à Uzès, cet appartement bénéficie d'un emplacement recherché, entre tranquillité et proximité immédiate des commerces, services et du coeur de ville.
Honoraires d’agence à la charge du vendeur. Bien non soumis au DPE. Les informations sur les risques auxquels ce bien est exposé sont disponibles sur le site Géorisques : www.georisques.gouv.fr. La présente annonce immobilière a été rédigée sous la responsabilité éditoriale de Mme Penelope Stoker EI (ID 83102), mandataire indépendant en immobilier (sans détention de fonds), agent commercial de la SAS I@D France immatriculé au RSAC de Paris sous le numéro 930194964, titulaire de la carte de démarchage immobilier pour le compte de la société I@D France SAS.
Retrouvez tous nos biens sur notre site internet. www.iadfrance.fr
Mandat : 1906038-1
Diagnostic de Performance Énergétique (DPE)
Plus d'informations
-
Descriptif
- Terrasse
- Ascenseur
- Nbre. d'étages : 2
- Nb. Parking : 1
- Nb. de pièces : 2
-
Equipement
- Digicode
- Interphone
-
Conditions
- Honoraires à charge de : vendeur
-
Superficies
- Surface habitable : 45 m²
Localisation
Contactez nous
Pour plus d'informations sur cette annonce, n'hésitez pas à nous contacter