Vente
Maison
à
Jouy
264 000 €
Jouy (28300)
iad France - Kévin Le Govic vous propose: Charme des Années 30 & Vue Dégagée sur la Vallée de l'Eure
Laissez-vous séduire par cette maison de caractère de 135 m², dont le style néo-normand avec ses faux colombages apporte un cachet unique et chaleureux. Idéalement située à Jouy, vous profiterez d'un cadre verdoyant tout en restant à seulement 5-10 minutes à pied de la gare (Ligne Paris-Montparnasse / Chartres), des écoles et des commerces.
Un Intérieur Spacieux et Lumineux
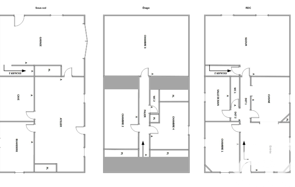
Le rez-de-chaussée s'ouvre sur une entrée accueillante dotée d'un insert, communiquant avec une cuisine aménagée et équipée. Vous découvrirez ensuite :
Une extension récente : Un vaste séjour baigné de lumière offrant une vue imprenable et dégagée sur la nature environnante.
Le charme de l'ancien : Une chambre avec parquet en chêne massif et cheminée en marbre.
Confort : Une salle de bains avec douche et un WC indépendant.
À l’étage, le palier dessert 3 chambres optimisées avec de nombreux rangements sous pente. Un WC est déjà présent, avec la possibilité d'installer facilement une douche (arrivées et évacuations déjà en place).
Sous-Sol Complet et Extérieurs Soignés
La maison est édifiée sur un sous-sol total non enterré, offrant un espace fonctionnel rare : garage, atelier, buanderie-chaufferie et cave.
Côté jardin, la parcelle d'environ 600 m² est parfaitement entretenue. Elle dispose d'une terrasse pour vos repas d'été, d'un cabanon de jardin et d'un terrain joliment aménagé.
Les Atouts Techniques
Chauffage : Gaz de ville (chaudière récente).
Isolation : Fenêtres en PVC double vitrage.
Équipements : Adoucisseur d'eau.
Localisation : Environnement calme, balades en bord d'Eure accessibles immédiatement.
NE LOUPEZ PAS CETTE OPPORTUNITÉ UNIQUE !!
Honoraires d'agence à la charge du vendeur.
Information d'affichage énergétique sur ce bien : classe ENERGIE D indice 242 et classe CLIMAT D indice 38. Les informations sur les risques auxquels ce bien est exposé, y compris l'obligation légale de débroussaillement, sont disponibles sur le site Géorisques : http://www.georisques.gouv.fr.
La présente annonce immobilière a été rédigée sous la responsabilité éditoriale de M Kévin Le Govic mandataire indépendant en immobilier (sans détention de fonds), agent commercial de la SAS I@D France immatriculé au RSAC de CHARTRES sous le numéro 979616398, titulaire de la carte de démarchage immobilier pour le compte de la société I@D France SAS.
Mandat : 1946563
Diagnostic de Performance Énergétique (DPE)
Plus d'informations
-
Descriptif
- Nbre. d'étages : 2
- Nbre. de chambres : 4
- Nb. de pièces : 6
-
Superficies
- Superficie terrain : 581 m²
- Surface habitable : 135 m²
-
Etat
- Année de construction : 1930
-
Conditions
- Honoraires à charge de : vendeur
Localisation
Contactez nous
Pour plus d'informations sur cette annonce, n'hésitez pas à nous contacter