Location
Duplex
à
Charenton-le-Pont
1 990 € CC /mois
Charenton-le-Pont (94220)
iad France - Matthieu Robert vous propose: MEUBLE * RUE DE VALMY * PROCHE BOIS * LUMINEUX * CAVE *
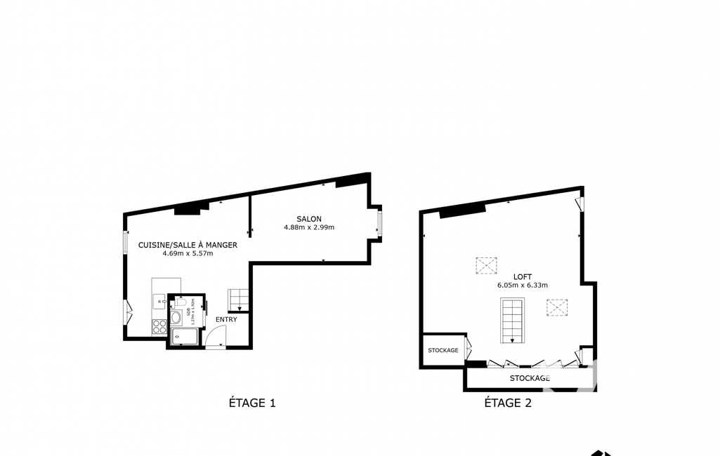
Sublime Duplex meublé de Charme avec jardin partagé à Charenton-le-Pont, de 47m2 Carrez et 83m2 au sol.
Bienvenue dans ce magnifique duplex rénové, niché au cOEur de Charenton-le-Pont, aux portes de Paris, alliant le charme de l'ancien à des prestations modernes. Ce bijou immobilier est réparti sur 2 niveaux au dernier étage sans ascenseur et offre un cadre de vie chaleureux et cosy.
Le premier niveau de ce duplex propose un espace de vie lumineux avec cuisine ouverte, il comprend également un salon cosy et une salle de douche avec WC et sèche serviette. La luminosité naturelle inonde cet espace et crée une atmosphère apaisante. La cuisine offre un réfrigérateur, un lave vaisselle, un four et des plaques à induction.
À l'étage supérieur, un vaste espace de vie ouvert accueille une grande chambre avec des possibilités d'espace de télé travail ou lecture et détente. Les expositions Est et Ouest offrent une luminosité optimale tout au long de la journée, créant une ambiance sereine. De très nombreux et spacieux rangements sont disponibles.
Présence de machine laver lavante et séchante à l'étage supérieur.
La présence d'un jardin partagé ajoute une touche de verdure à cet ensemble, offrant un espace extérieur privilégié pour profiter des beaux jours.
Cave, fibre optique, chauffage individuel gaz, porte sécurisée, double vitrage, bonne isolation, hauteur sous plafond 2,70m au premier niveau.
Idéalement situé dans une résidence sécurisée, proche des commodités et des transports en commun, ce duplex est un véritable coup de cOEur pour les amateurs de charme et de confort.
Ne manquez pas l'opportunité de découvrir ce joyau alliant histoire et modernité.
Contactez-moi dès maintenant pour organiser une visite !
Zone non soumise à encadrement des loyers
Loyer : 1990€ par mois charges comprises
Loyer de base : 1900€
90€ de charges locatives (provision)
Dépôt de garantie : 3800€
Honoraires charge locataire : 510€
Les honoraires d'état des lieux d'entrée seront partagés avec le bailleur.
Information d'affichage énergétique sur ce bien : classe ENERGIE D indice 241 et classe CLIMAT D indice 39. Les informations sur les risques auxquels ce bien est exposé, y compris l'obligation légale de débroussaillement, sont disponibles sur le site Géorisques : http://www.georisques.gouv.fr.
La présente annonce immobilière a été rédigée sous la responsabilité éditoriale de M Matthieu Robert mandataire indépendant en immobilier (sans détention de fonds), agent commercial de la SAS I@D France immatriculé au RSAC de PARIS sous le numéro 834818841, titulaire de la carte de démarchage immobilier pour le compte de la société I@D France SAS. Location meublée. Montant du loyer mensuel charges comprises : 1990.00 euros / mois. Provision mensuelle avec récupération annuelle : 90.00 euros / mois. Zone soumise à encadrement : non. Dépôt de garantie : 3800 euros. Honoraires TTC à la charge du locataire: 510 euros (soit 10€/m²).
Mandat : 1937552
Diagnostic de Performance Énergétique (DPE)
Plus d'informations
-
Descriptif
- Cave
- Étage du bien : 3eme
- Meublé
- Nbre. d'étages : 3
- Nbre. de chambres : 1
- Nb. de pièces : 3
-
Conditions
- Charges : 90 €
- Honoraires : 510 €
-
Equipement
- Câble TV
- Chauffage : individuel gaz radiateur
-
Etat
- Année de construction : 1880
-
Superficies
- Surface habitable : 47 m²
Localisation
Contactez nous
Pour plus d'informations sur cette annonce, n'hésitez pas à nous contacter