Vente
Immeuble
à
Perpignan
295 000 €
Perpignan (66000)
iad France - Vanessa Irain vous propose: **PERPIGNAN SAINT MARTIN**
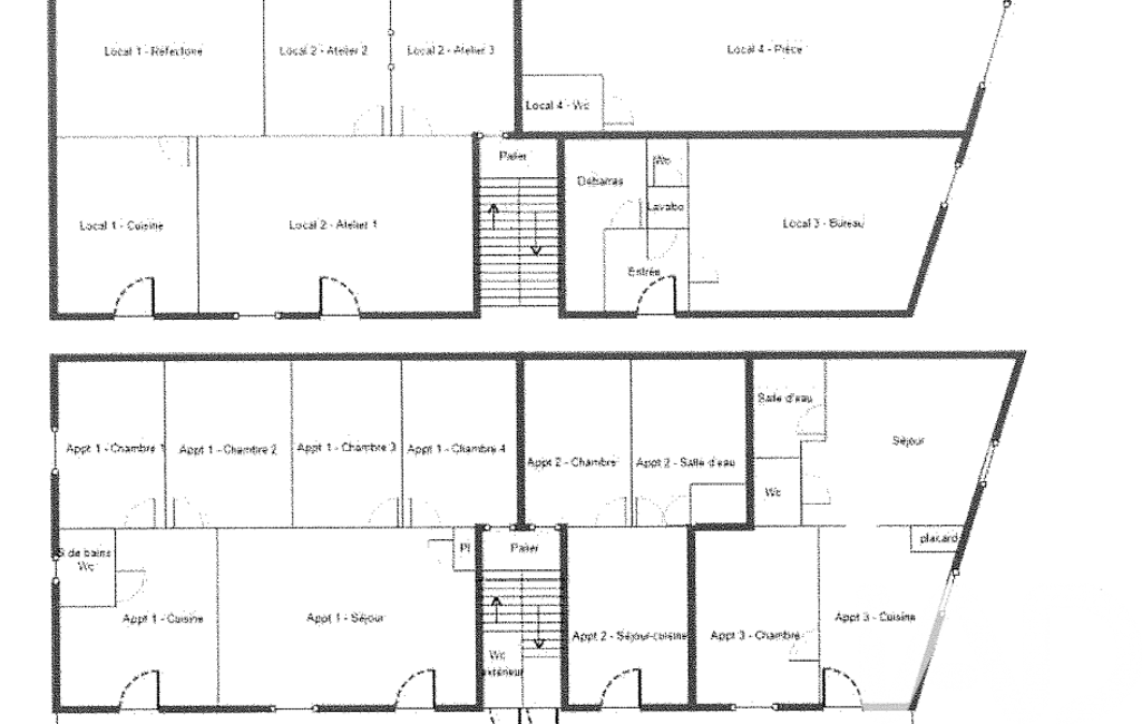
Immeuble de rapport comprenant :
----Rez-de-chaussée : 4 locaux commerciaux de tous libres de toutes occupations
* 45m2 avec espace cuisine et wc séparé accessible PMR - pas de travaux - rideau métallique
proposé à la location au prix de 500e HT.
* 46m2
* 37 m2
* 36m2 - dispose d'un wc séparé
Ils nécessite des travaux de rafraichissement mais ils peuvent aussi être transformés en appartements.
----A l'étage 3 appartements loués
* T5 de 82m2 loué 700+30e - depuis 2023
* T2 de 40m2 environ loué 400+30e - depuis 2023
* T2 de 40m2 environ loué 200e - depuis 04/1994
Taxe foncière : 3300€
Si l'ensemble est loué pour un revenu annuel de 32000e , vous pouvez espérer une rentabilité global de 10% brut.
Honoraires d'agence à la charge du vendeur.
Bien non soumis au DPE. Les informations sur les risques auxquels ce bien est exposé, y compris l'obligation légale de débroussaillement, sont disponibles sur le site Géorisques : http://www.georisques.gouv.fr.
La présente annonce immobilière a été rédigée sous la responsabilité éditoriale de Mme Vanessa Irain mandataire indépendant en immobilier (sans détention de fonds), agent commercial de la SAS I@D France immatriculé au RSAC de PERPIGNAN sous le numéro 843401738, titulaire de la carte de démarchage immobilier pour le compte de la société I@D France SAS.
Mandat : 1933975
Diagnostic de Performance Énergétique (DPE)
Plus d'informations
-
Descriptif
- Nbre. d'étages : 1
-
Etat
- Année de construction : 1900
-
Conditions
- Honoraires à charge de : vendeur
-
Superficies
- Surface habitable : 300 m²
Localisation
Contactez nous
Pour plus d'informations sur cette annonce, n'hésitez pas à nous contacter