Vente
Terrain
à
Villard-Reculas
1 058 580 €
Villard-Reculas (38114)
iad France - Alexandre Bila vous propose: Opportunité Rare à Villard Reculas / Alpe d'Huez
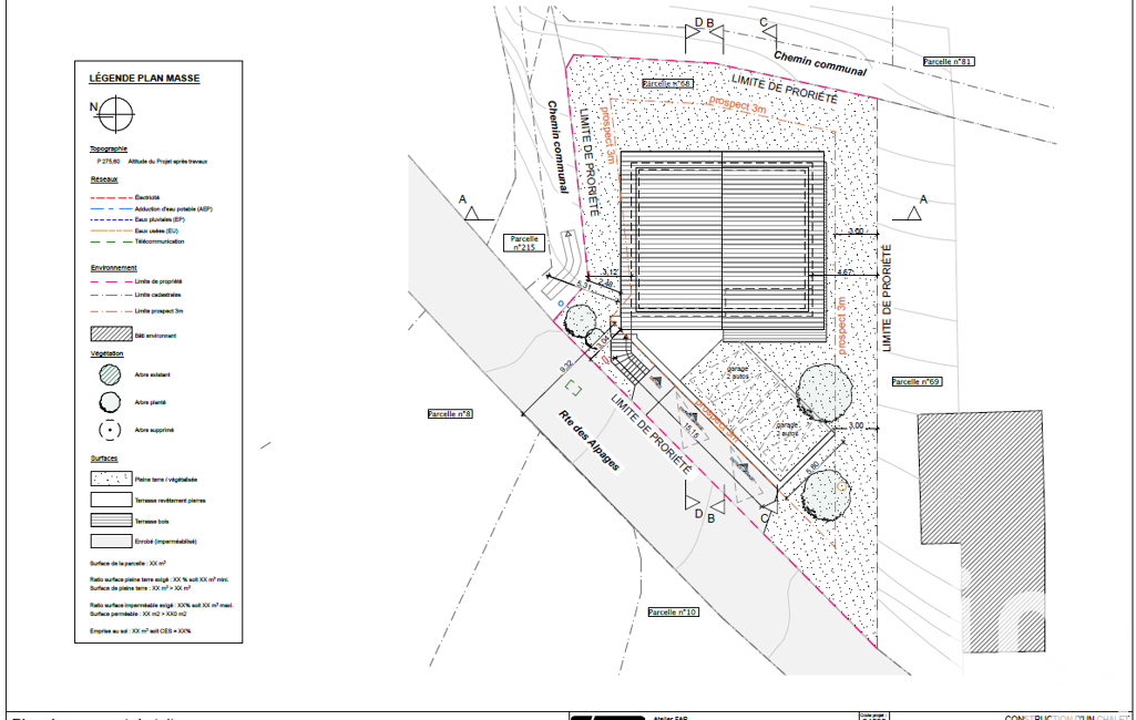
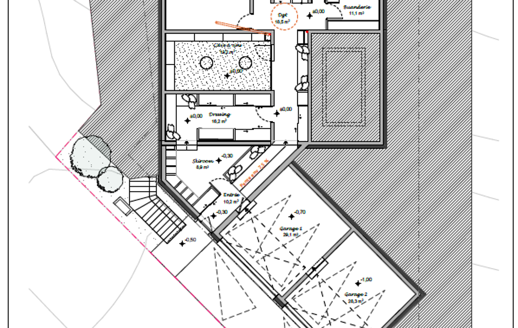
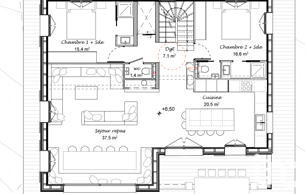
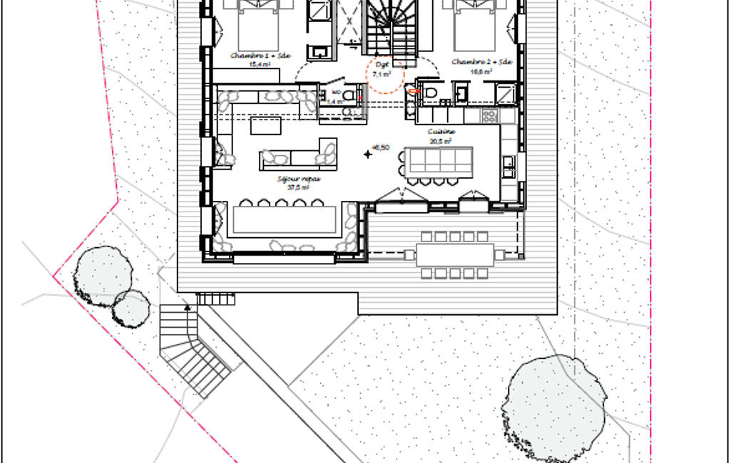
Vous rêvez de construire le chalet de vos rêves dans un cadre naturel préservé avec une vue imprenable à couper le souffle ? Près des pistes de ski ? Cette parcelle de terrain à bâtir de 671m² avec un permis de construire purgé est l'opportunité que vous attendiez.
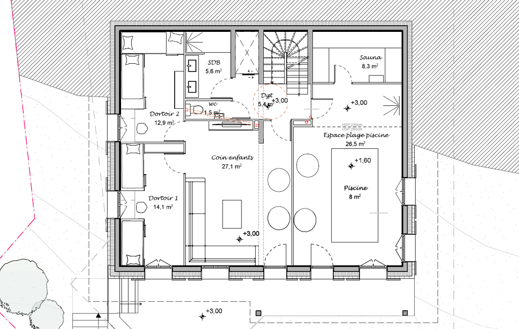
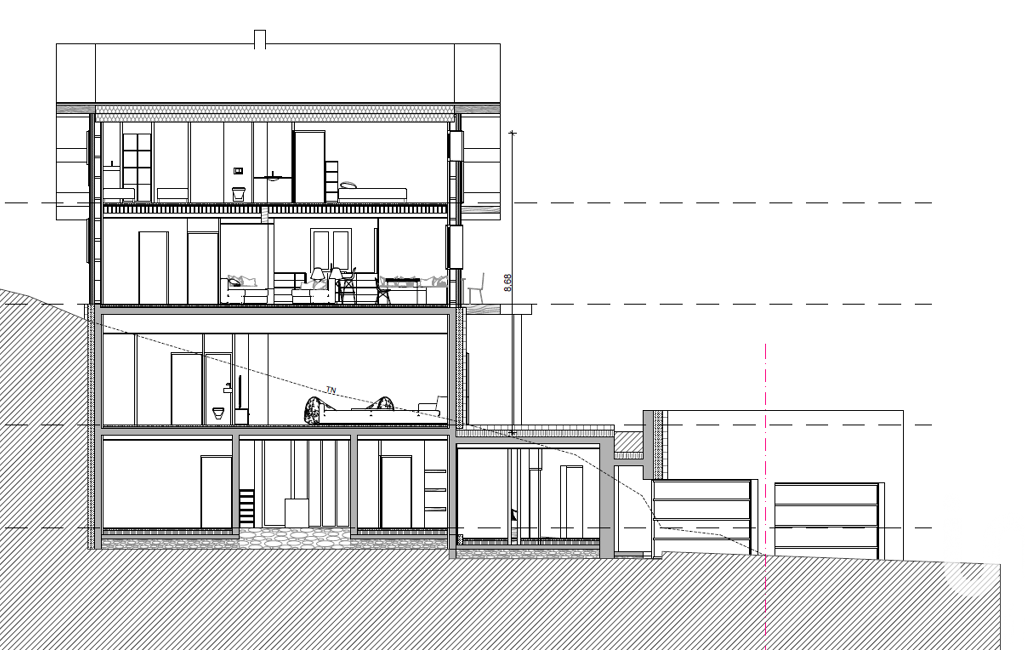
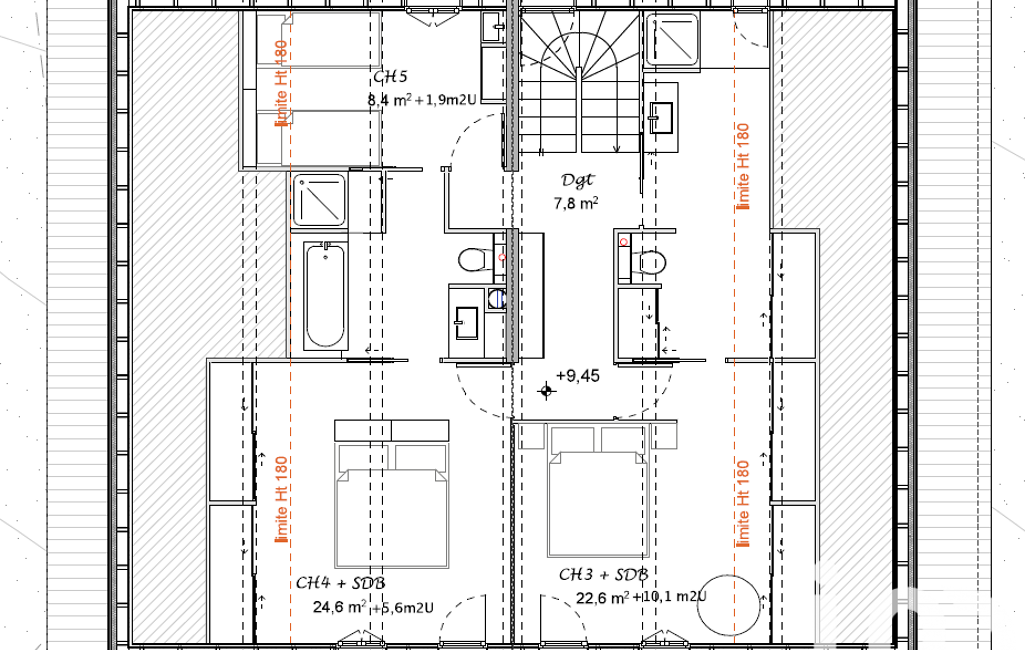
Vous avez la possibilité de construire un chalet de luxe de 432 m2 sur 4 niveaux avec des prestations hauts de gamme : Piscine, sauna, dressing, ski room, grandes chambres modernes avec salles de bain privatives, grande terrasse...
Implanté dans un environnement calme et privilégié, ce terrain offre une exposition plein sud, idéale pour profiter du soleil tout au long de la journée. Imaginez-vous sur votre future terrasse, contemplant les magnifiques paysages environnants, avec le télésiège du Villarais à seulement 200 mètres, offrant un accès rapide aux pistes de ski. La livraison d’une nouvelle télécabine prévue au printemps 2026 reliera directement la station au signal de l'Alpe d'Huez.
Bénéficiant d'un environnement préservé et authentique, ce terrain offre un cadre de vie exceptionnel pour les amoureux de la nature et des sports d'hiver. Vous pourrez réaliser une construction qui correspond parfaitement à vos attentes, sans compromis, dans un environnement où la qualité de vie est au rendez-vous.
Ce terrain est connecté au réseau d'électricité, d'eau potable, d'eaux usées et d'eaux pluviales qui assure une viabilité optimale pour la construction de votre futur projet. De plus, l'accès des camions est aisé, facilitant ainsi les travaux de construction.
Aussi, que vous soyez professionnel de l'immobilier, investisseur, intéressé pour construire une résidence secondaire vous pouvez bénéficier de la récupération de TVA lors de votre achat. Consultez-nous pour mieux connaître les conditions. Le prix hors taxe est de 940689 €.
Ne manquez pas cette occasion unique de devenir propriétaire d'un terrain à bâtir d'exception à Villard-Reculas. Contactez-nous dès maintenant pour plus d'informations et pour organiser une visite.
Honoraires d'agence à la charge de l'acquéreur. Prix honoraires inclus : 1058580 euros. Prix hors honoraires : 1008580 euros. Honoraires TTC à la charge de l'acquéreur (4,96% du prix du bien hors honoraires) : 50000 euros.
Bien non soumis au DPE. Les informations sur les risques auxquels ce bien est exposé, y compris l'obligation légale de débroussaillement, sont disponibles sur le site Géorisques : http://www.georisques.gouv.fr.
La présente annonce immobilière a été rédigée sous la responsabilité éditoriale de M Alexandre Bila mandataire indépendant en immobilier (sans détention de fonds), agent commercial de la SAS I@D France immatriculé au RSAC de GRENOBLE sous le numéro 439713686, titulaire de la carte de démarchage immobilier pour le compte de la société I@D France SAS.
Mandat : 1849529
Diagnostic de Performance Énergétique (DPE)
Plus d'informations
-
Conditions
- Honoraires à charge de : vendeur
-
Superficies
- Superficie terrain : 671 m²
Localisation
Contactez nous
Pour plus d'informations sur cette annonce, n'hésitez pas à nous contacter