Vente
Maison
à
Fontenay-Aux-Roses
680 000 €
Fontenay-Aux-Roses (92260)
iad France - Jennifer Jamelin vous propose: À seulement 15 minutes à pied du centre-ville et 10 minutes du RER B Robinson, cette maison familiale non mitoyenne des années 50 en base meulière offre un cadre de vie paisible, verdoyant et confortable.
Implantée sur une parcelle de 305 m², la maison développe 95 m² habitables (118 m² au sol) répartis sur trois niveaux. Entièrement rénovée avec soin, elle ne nécessite aucun travaux.
Le premier niveau accueille une agréable pièce de vie baignée de lumière, bénéficiant d’une triple exposition. Le séjour avec cuisine ouverte, entièrement équipée, propose un espace convivial de 23 m², avec un accès direct au jardin par un escalier. Une salle de douche avec WC ainsi qu’un dégagement avec rangements complètent ce niveau.
À l’étage, l’espace nuit se compose de trois chambres, d’une salle de bains avec WC et d’un accès aux combles, idéal pour du rangement.
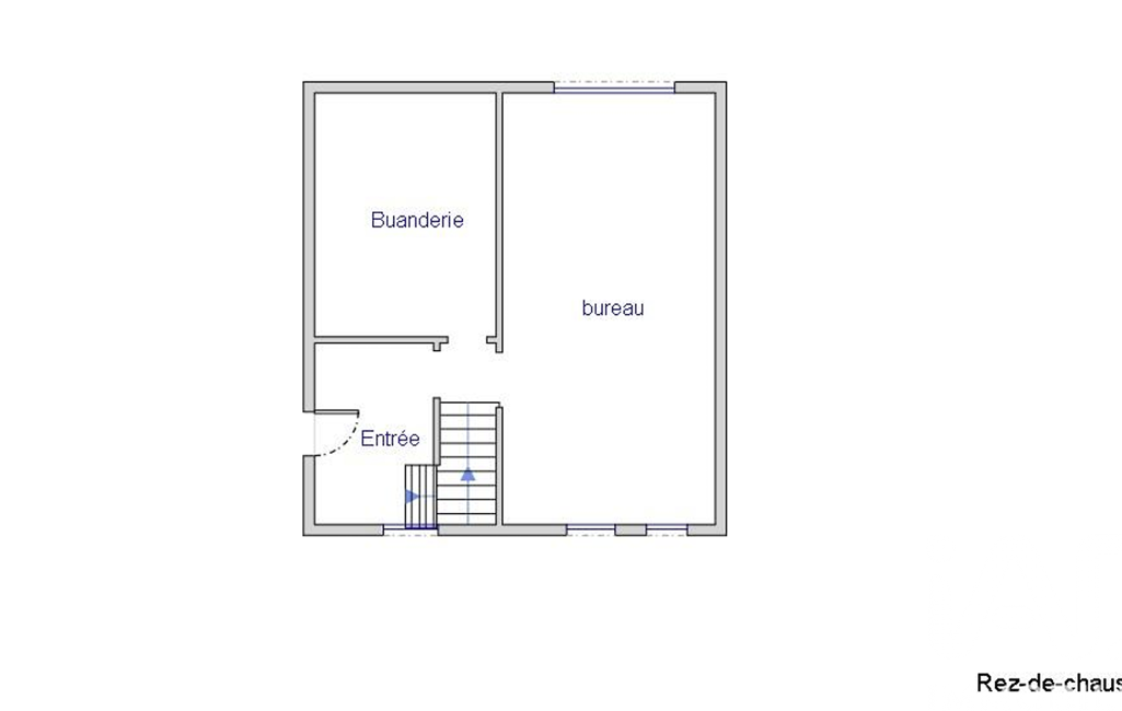
Le rez-de-jardin offre de beaux volumes fonctionnels avec une entrée équipée de rangements, une buanderie / chaufferie, un espace polyvalent pouvant accueillir un garage, un bureau ou une salle de jeux, ainsi qu’un atelier / cave.
La maison bénéficie de prestations recherchées : isolation des murs et de la toiture, double vitrage, pompe à chaleur et borne de recharge pour véhicule électrique, garantissant confort et maîtrise des consommations.
À l’extérieur, un joli jardin arboré, agrémenté d’une terrasse en bois et de nombreuses essences végétales, offre un véritable espace de détente pour profiter des beaux jours.
Une maison saine, lumineuse et parfaitement entretenue, idéale pour une famille souhaitant s’installer dans un secteur recherché.
Une visite s’impose.
Honoraires d'agence à la charge du vendeur.
Information d'affichage énergétique sur ce bien : classe ENERGIE C indice 163 et classe CLIMAT B indice 6. Les informations sur les risques auxquels ce bien est exposé, y compris l'obligation légale de débroussaillement, sont disponibles sur le site Géorisques : http://www.georisques.gouv.fr.
La présente annonce immobilière a été rédigée sous la responsabilité éditoriale de Mme Jennifer Jamelin mandataire indépendant en immobilier (sans détention de fonds), agent commercial de la SAS I@D France immatriculé au RSAC de NANTERRE sous le numéro 853655504, titulaire de la carte de démarchage immobilier pour le compte de la société I@D France SAS.
Mandat : 1942667
Diagnostic de Performance Énergétique (DPE)
Plus d'informations
-
Descriptif
- Nbre. d'étages : 3
- Nbre. de chambres : 3
- Nb. de pièces : 4
-
Superficies
- Superficie terrain : 305 m²
- Surface habitable : 95 m²
-
Equipement
- Chauffage : electrique radiateur
-
Etat
- Année de construction : 1955
-
Conditions
- Honoraires à charge de : vendeur
Localisation
Contactez nous
Pour plus d'informations sur cette annonce, n'hésitez pas à nous contacter