Vente
Appartement
à
Issy-les-Moulineaux
610 000 €
Issy-les-Moulineaux (92130)
iad France - Cedric Lambert vous propose: DUPLEX FAMILIAL / PETITE COPROPRIÉTÉ / TERRASSE / 5 MINUTES À PIED DU RER C ISSY (FUTURE LIGNE 15) / 15 MINUTES À PIED DU MÉTRO M12 MAIRIE D’ISSY
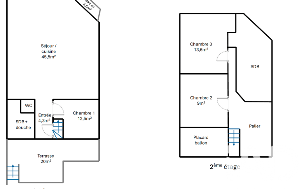
Dans un environnement calme et résidentiel, à proximité immédiate des écoles, commerces, parcs et transports, découvrez ce bel appartement en duplex de 86 m², situé au sein d’une petite copropriété intimiste de 6 lots.
Le premier niveau offre un vaste espace de vie de 45 m² avec parquet, comprenant un salon et une salle à manger lumineux, prolongés par un balcon.
La cuisine ouverte, entièrement aménagée et équipée, dispose d’un grand plan de travail.
L’ensemble s’ouvre sur une agréable terrasse, idéale pour les repas en extérieur et les moments de détente aux beaux jours.
Ce niveau comprend également une grande chambre, une salle de bain ainsi que des toilettes séparées, offrant un confort appréciable au quotidien.
À l’étage, vous trouverez deux chambres mansardées, ainsi qu’une seconde salle de bain avec toilettes et de nombreux rangements, très pratique pour une famille.
Une cave saine complète ce bien et permet un espace de stockage supplémentaire.
Idéalement situé, ce duplex séduit par ses beaux volumes, ses faibles charges et son emplacement privilégié.
UN JOLI DUPLEX, ESPRIT MAISON, IDÉAL POUR UNE FAMILLE À LA RECHERCHE D’ESPACE, DE CALME ET DE PROXIMITÉ DES TRANSPORTS : LAISSEZ-VOUS TENTER.
La presente annonce immobiliere vise 2 lots situés dans une copropriété de 12 lots au total et ne faisant l'objet d'aucune procédure en cours citée à l'article L. 721-1 du code de la construction et de l'habitation. Montant moyen mensuel de charges déclaré par le vendeur : 83.75€ par mois (soit 1005 € annuel). Honoraires d'agence à la charge du vendeur.
Information d'affichage énergétique sur ce bien : classe ENERGIE C indice 158 et classe CLIMAT A indice 5. Les informations sur les risques auxquels ce bien est exposé, y compris l'obligation légale de débroussaillement, sont disponibles sur le site Géorisques : http://www.georisques.gouv.fr.
La présente annonce immobilière a été rédigée sous la responsabilité éditoriale de M Cedric Lambert mandataire indépendant en immobilier (sans détention de fonds), agent commercial de la SAS I@D France immatriculé au RSAC de Nanterre sous le numéro 893509646, titulaire de la carte de démarchage immobilier pour le compte de la société I@D France SAS.
Mandat : 1944400
Diagnostic de Performance Énergétique (DPE)
Plus d'informations
-
Descriptif
- Cave
- Étage du bien : 1er
- Terrasse
- Nbre. d'étages : 3
- Nbre. de chambres : 3
- Nb. de pièces : 4
-
Loi ALUR
- Copropriété
- Nombre de lots de la copropriété : 12
- Moyenne de la quote part(an) : 1 005 €
-
Equipement
- Chauffage : individuel electrique radiateur
-
Etat
- Année de construction : 1934
-
Conditions
- Honoraires à charge de : vendeur
-
Superficies
- Surface habitable : 86 m²
Localisation
Contactez nous
Pour plus d'informations sur cette annonce, n'hésitez pas à nous contacter