Vente
Maison
à
Forges-les-Bains
349 000 €
Forges-les-Bains (91470)
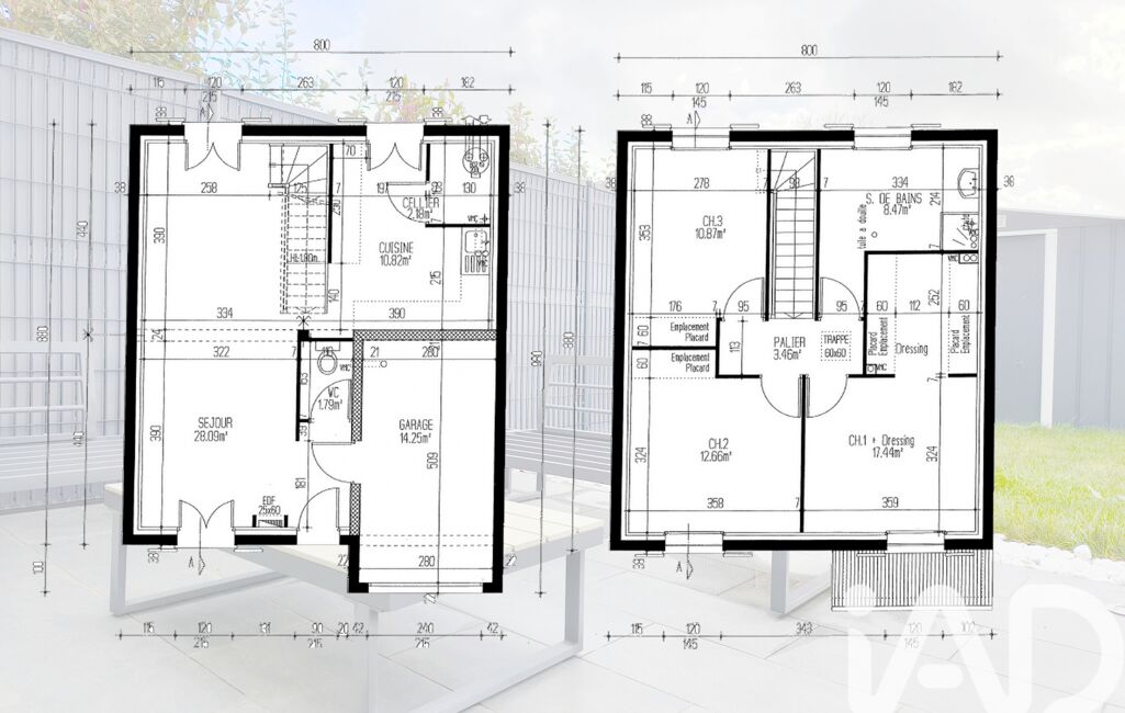
iad France - Alexandre De Sa Marques vous propose: Forges-Les-Bains, maison construite en 2018 avec 3 chambres (DPE A-A !) d'une superficie de 96 m² habitables.
Cette maison en très bon état général, est composée au rdc d'une cuisine avec coin buanderie, un salon traversant (nord-sud), un WC indépendant avec lave main et d'un garage attenant.
Au premier étage, 2 chambres avec rangements intégré, grande salle de bain avec WC.
Suite parentale avec dressing et salle d'eau pour les parents !
La maison dispose également d'un jardin côté Sud, une terrasse et un abri de jardin.
2 places de parking devant la maison en extérieur.
Le chauffage est électrique, climatisation au rdc.
Posez vos valises dans ce logement avec une excellente performance énergétique !
Construction MAISONS PIERRE.
Quartier calme.
On visite ?
Honoraires d'agence à la charge du vendeur.
Information d'affichage énergétique sur ce bien : classe ENERGIE A indice 54 et classe CLIMAT A indice 1. Les informations sur les risques auxquels ce bien est exposé, y compris l'obligation légale de débroussaillement, sont disponibles sur le site Géorisques : http://www.georisques.gouv.fr.
La présente annonce immobilière a été rédigée sous la responsabilité éditoriale de M Alexandre De Sa Marques mandataire indépendant en immobilier (sans détention de fonds), agent commercial de la SAS I@D France immatriculé au RSAC de Versailles sous le numéro 917869273, titulaire de la carte de démarchage immobilier pour le compte de la société I@D France SAS.
Mandat : 1946727
Diagnostic de Performance Énergétique (DPE)
Plus d'informations
-
Descriptif
- Terrasse
- Nbre. d'étages : 2
- Nbre. de chambres : 3
- Nb. de pièces : 4
-
Equipement
- Alarme
- Chauffage : electrique radiateur
-
Superficies
- Superficie terrain : 207 m²
- Surface habitable : 96 m²
-
Etat
- Année de construction : 2018
-
Conditions
- Honoraires à charge de : vendeur
Localisation
Contactez nous
Pour plus d'informations sur cette annonce, n'hésitez pas à nous contacter