Vente
Maison
à
Montussan
374 000 €
Montussan (33450)
iad France - Jennifer Favreau vous propose: Montussan – Maison familiale 177 m² avec espace indépendant, garage et jardin sans vis-à-vis
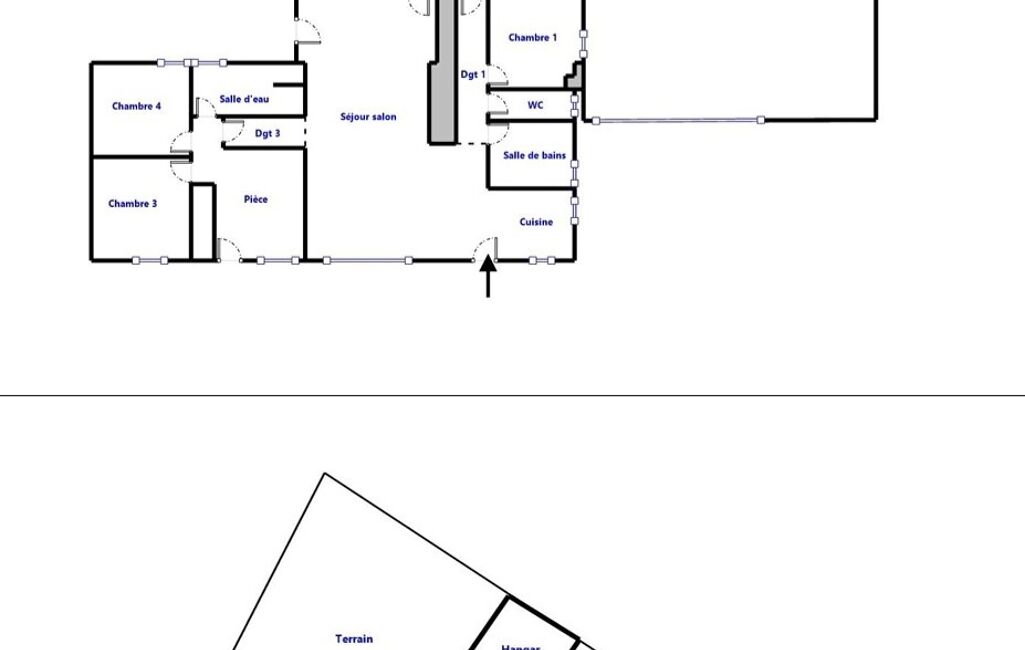
Située sur la commune de Montussan, venez découvrir cette maison offrant 177 m² habitables, implantée sur une parcelle de 968 m².
L’espace de vie principal se situe à l’étage. Vous y découvrirez une belle pièce de vie lumineuse, composée d’un séjour et d’un salon cosy agrémenté d’une cheminée, idéale pour partager des moments conviviaux en famille.
La maison propose également une grande cuisine aménagée et équipée, fonctionnelle et agréable au quotidien.
L’espace nuit se compose de trois belles chambres, d’une salle de bain et d’un WC indépendant.
Le niveau inférieur, entièrement aménagé, offre de nombreux espaces supplémentaires : une buanderie, une chambre, une salle de sport ainsi qu’un garage.
La chambre et la salle de sport disposent chacune d’un accès direct vers l’extérieur, permettant d’envisager facilement un espace indépendant. Un véritable atout pour accueillir un étudiant, recevoir de la famille ou exercer une activité professionnelle à domicile.
L’accès à l’étage peut se faire par un escalier intérieur ou directement par l’extérieur, apportant une réelle flexibilité d’utilisation.
À l’extérieur, vous profiterez d’un jardin agréable sans vis-à-vis, avec terrasse en bois et pergola, parfait pour les beaux jours et les moments de détente.
Une maison aux beaux volumes et au potentiel intéressant, à découvrir rapidement.
Pour plus d’informations ou organiser une visite, contactez-moi.
Honoraires d'agence à la charge du vendeur.
Information d'affichage énergétique sur ce bien : classe ENERGIE C indice 144 et classe CLIMAT C indice 25. Les informations sur les risques auxquels ce bien est exposé, y compris l'obligation légale de débroussaillement, sont disponibles sur le site Géorisques : http://www.georisques.gouv.fr.
La présente annonce immobilière a été rédigée sous la responsabilité éditoriale de Mme Jennifer Favreau mandataire indépendant en immobilier (sans détention de fonds), agent commercial de la SAS I@D France immatriculé au RSAC de BORDEAUX sous le numéro 898002100, titulaire de la carte de démarchage immobilier pour le compte de la société I@D France SAS.
Mandat : 1965220
Diagnostic de Performance Énergétique (DPE)
Plus d'informations
-
Descriptif
- Terrasse
- Nbre. d'étages : 1
- Nbre. de chambres : 5
- Nb. de pièces : 7
-
Equipement
- Cheminée
- Chauffage : gaz radiateur
-
Superficies
- Superficie terrain : 968 m²
- Surface habitable : 177 m²
-
Etat
- Année de construction : 1977
-
Conditions
- Honoraires à charge de : vendeur
Localisation
Contactez nous
Pour plus d'informations sur cette annonce, n'hésitez pas à nous contacter