Vente
Appartement
à
Dommartin
295 000 €
Dommartin (69380)
iad France - Karine Saignant vous propose: Loft atypique en souplex d'environ 90 m² avec deux places de stationnement en extérieur à Dommartin.
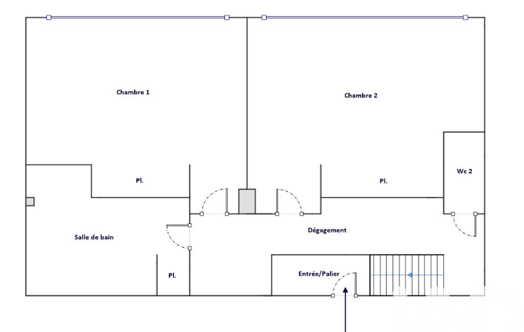
L’entrée s’ouvre sur une vaste pièce de vie de 42 m², baignée de lumière grâce à son exposition plein sud, ses larges ouvertures en aluminium double vitrage et sa hauteur sous plafond de plus de 4 mètres. L’espace comprend une cuisine américaine aménagée et équipée, prolongée par un cellier et un wc.
À l’étage inférieur, vous disposez de deux belles chambres de plus de 14 m², d’une salle de bains, ainsi que d’un second WC séparé.
L’ensemble nécessite quelques petits travaux de rafraîchissement pour révéler tout son potentiel.
Vous profiterez également d’une vue dégagée sur le parc de maligny, tout en étant à seulement 700 mètres des écoles, des commerces et des grands axes.
Informations complémentaires :
- Chauffage électrique
- 2 places de stationnement extérieures
- Petite copropriété de 3 lots, faibles charges : env. 15 €/mois
- Pas de procédure en cours
- Année de construction : 1900 (rénové depuis)
Un bien rare au charme industriel, à découvrir sans tarder !
La presente annonce immobiliere vise 3 lots situés dans une copropriété de 9 lots au total et ne faisant l'objet d'aucune procédure en cours citée à l'article L. 721-1 du code de la construction et de l'habitation. Montant moyen mensuel de charges déclaré par le vendeur : 15€ par mois (soit 180 € annuel). Honoraires d'agence à la charge du vendeur.
Information d'affichage énergétique sur ce bien : classe ENERGIE E indice 275 et classe CLIMAT B indice 9. Les informations sur les risques auxquels ce bien est exposé, y compris l'obligation légale de débroussaillement, sont disponibles sur le site Géorisques : http://www.georisques.gouv.fr.
La présente annonce immobilière a été rédigée sous la responsabilité éditoriale de Mme Karine Saignant mandataire indépendant en immobilier (sans détention de fonds), agent commercial de la SAS I@D France immatriculé au RSAC de VILLEFRANCHE TARARE sous le numéro 930200837, titulaire de la carte de démarchage immobilier pour le compte de la société I@D France SAS.
Mandat : 1805604
Diagnostic de Performance Énergétique (DPE)
Plus d'informations
-
Descriptif
- Nbre. d'étages : 2
- Nbre. de chambres : 2
- Nb. de pièces : 3
-
Loi ALUR
- Copropriété
- Nombre de lots de la copropriété : 9
- Moyenne de la quote part(an) : 180 €
-
Equipement
- Câble TV
- Chauffage : individuel electrique radiateur
-
Etat
- Année de construction : 1900
-
Conditions
- Honoraires à charge de : vendeur
-
Superficies
- Surface habitable : 90 m²
Localisation
Contactez nous
Pour plus d'informations sur cette annonce, n'hésitez pas à nous contacter