Annonce détaillée

Vente
Appartement à Gennevilliers
245 000 

Détails du bien

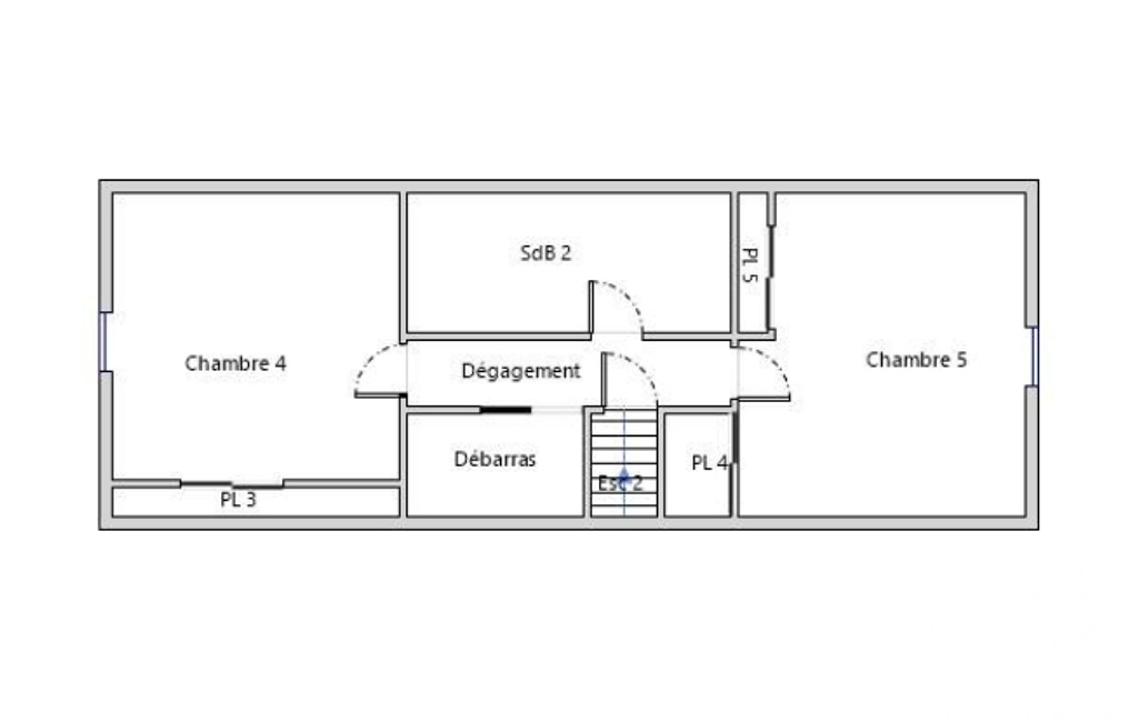
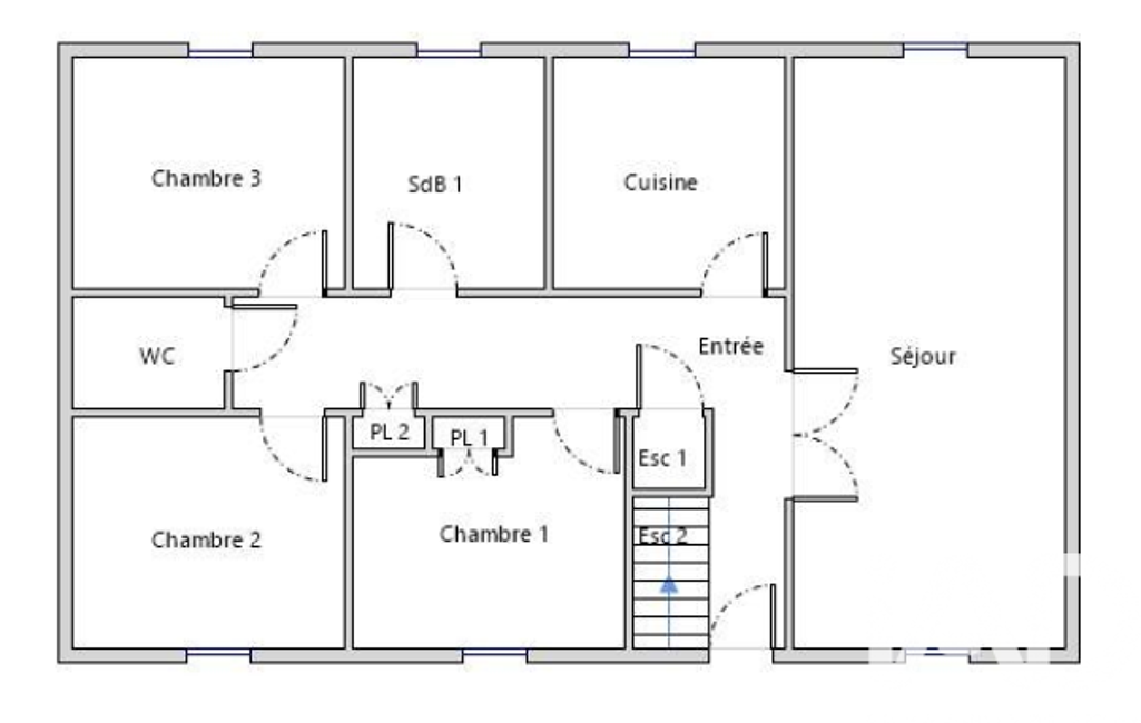
Pièce(s)
4 pièces
Salle(s) de bain
3
Surface
77 m²
Surface terrain
-
Orientation
-

Plus d'informations

  • Descriptif
    • Cave
    • Étage du bien : 2eme
    • Ascenseur
    • Nbre. d'étages : 6
    • Nbre. de chambres : 3
    • Nb. Parking : 1
    • Nb. de pièces : 4
  • Equipement
    • Digicode
    • Placards
    • Chauffage : collectif gaz radiateur
    • Interphone
  • Loi ALUR
    • Copropriété
    • Nombre de lots de la copropriété : 60
    • Moyenne de la quote part(an) : 3 840 €
  • Etat
    • Année de construction : 1976
  • Conditions
    • Honoraires à charge de : vendeur
  • Superficies
    • Surface habitable : 77 m²

Localisation

Contactez nous

Pour plus d'informations sur cette annonce, n'hésitez pas à nous contacter

Jean-Paul Guitton

Annonce 1478 / 85211