Annonce détaillée

Vente
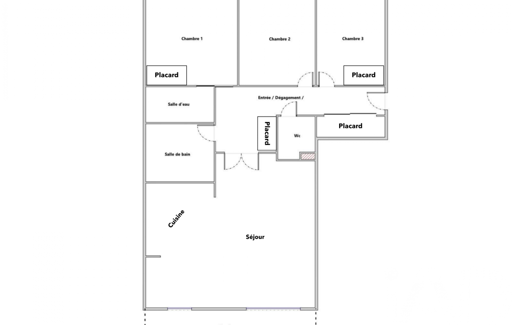
Appartement à Boulogne-Billancourt
1 015 000 

Détails du bien

Pièce(s)
4 pièces
Salle(s) de bain
3
Surface
97 m²
Surface terrain
-
Orientation
-

Plus d'informations

  • Descriptif
    • Étage du bien : 5eme
    • Gardien
    • Ascenseur
    • Nbre. d'étages : 9
    • Nbre. de chambres : 3
    • Nb. Parking : 1
    • Nb. de pièces : 4
  • Loi ALUR
    • Copropriété
    • Nombre de lots de la copropriété : 306
    • Moyenne de la quote part(an) : 4 800 €
  • Equipement
    • Digicode
    • Interphone
  • Superficies
    • Surface du balcon : 7 m²
    • Surface habitable : 97 m²
  • Etat
    • Année de construction : 2010
  • Conditions
    • Honoraires à charge de : vendeur

Localisation

Contactez nous

Pour plus d'informations sur cette annonce, n'hésitez pas à nous contacter

Joana Peixoto

Annonce 1610 / 75743