Vente
Appartement
à
Romainville
165 300 €
Romainville (93230)
iad France - Maurice Lanoë vous propose: A NOISY LE SEC derrière le Trianon de ROMAINVILE - A 2 MINUTES DU METRO PLACE CARNOT
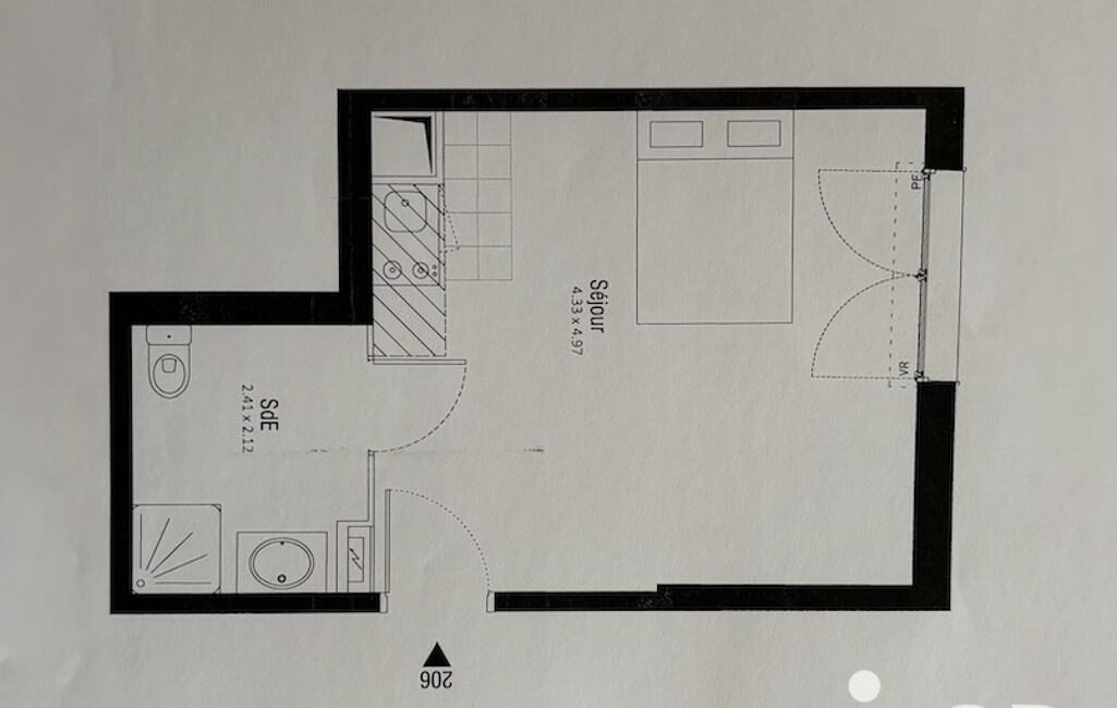
Dans un immeuble de 2017, en retrait de la rue grand studio de 26 m2 très calme avec balcon, vendu au choix libre le 10 AVRIL 2027 ou investissement locatif (loyer mensuel : 690 € h.c / mois ) et comprenant : pièces principale donnant sur un balcon, cuisine ouverte, salle d'eau avec wc. Local vélo.
La presente annonce immobiliere vise 1 lot situé dans une copropriété de 60 lots au total et ne faisant l'objet d'aucune procédure en cours citée à l'article L. 721-1 du code de la construction et de l'habitation. Montant moyen mensuel de charges déclaré par le vendeur : 76.3€ par mois (soit 915.6 € annuel). Honoraires d'agence à la charge du vendeur.
Information d'affichage énergétique sur ce bien : classe ENERGIE C indice 121 et classe CLIMAT C indice 22. Les informations sur les risques auxquels ce bien est exposé, y compris l'obligation légale de débroussaillement, sont disponibles sur le site Géorisques : http://www.georisques.gouv.fr.
La présente annonce immobilière a été rédigée sous la responsabilité éditoriale de M Maurice Lanoë mandataire indépendant en immobilier (sans détention de fonds), agent commercial de la SAS I@D France immatriculé au RSAC de Bobigny sous le numéro 925392284, titulaire de la carte de démarchage immobilier pour le compte de la société I@D France SAS.
Mandat : 1662842
Diagnostic de Performance Énergétique (DPE)
Plus d'informations
-
Equipement
- Câble TV
- Digicode
- Chauffage : collectif gaz radiateur
- Interphone
- Climatisation
-
Descriptif
- Ascenseur
- Nbre. d'étages : 6
- Nb. de pièces : 1
-
Loi ALUR
- Copropriété
- Nombre de lots de la copropriété : 60
- Moyenne de la quote part(an) : 915.60 €
-
Etat
- Année de construction : 2017
-
Conditions
- Honoraires à charge de : vendeur
-
Superficies
- Surface habitable : 26 m²
Localisation
Contactez nous
Pour plus d'informations sur cette annonce, n'hésitez pas à nous contacter