Vente
Appartement
à
Montpellier
169 000 €
Montpellier (34070)
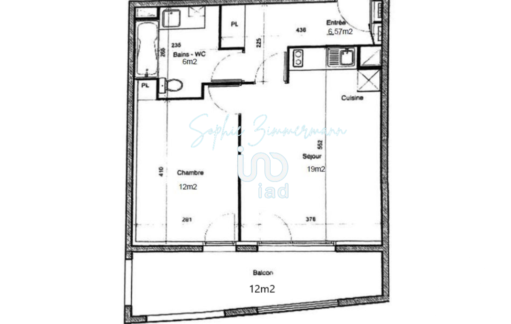
iad France - Sophie Zimmermann vous propose: APPARTEMENT T2 CLÉ EN MAIN - MONTPELLIER LES GRISETTES TRAMWAY LES SABINES
Vous cherchez un appartement prêt à vivre ou à louer immédiatement dans un quartier pratique et agréable ?
Venez découvrir ce 2 pièces de 44 m² situé dans le quartier des Grisettes à Montpellier !
Les + du bien :
- Cuisine entièrement équipée
- Climatisation réversible
- Grande terrasse aménagée de 12 m² pour vos moments détente
- Cellier avec électricité sur le palier de l'appartement
- Place de parking en sous-sol
- Tram Sabines à 2 pas
- Accès autoroute ultra rapide
Appartement en excellent état, situé au 1er étage.
Idéal pour un premier achat ou un investissement locatif
La presente annonce immobiliere vise 3 lots situés dans une copropriété de 137 lots au total et faisant l'objet d'une ou plusieurs procédures en cours citée à l'article L. 721-1 du code de la construction et de l'habitation. Montant moyen mensuel de charges déclaré par le vendeur : 82.33€ par mois (soit 988 € annuel). Honoraires d'agence à la charge du vendeur.
Information d'affichage énergétique sur ce bien : classe ENERGIE A indice 69 et classe CLIMAT A indice 5. Les informations sur les risques auxquels ce bien est exposé, y compris l'obligation légale de débroussaillement, sont disponibles sur le site Géorisques : http://www.georisques.gouv.fr.
La présente annonce immobilière a été rédigée sous la responsabilité éditoriale de Mme Sophie Zimmermann mandataire indépendant en immobilier (sans détention de fonds), agent commercial de la SAS I@D France immatriculé au RSAC de Montpellier sous le numéro 830572863, titulaire de la carte de démarchage immobilier pour le compte de la société I@D France SAS.
Mandat : 1887434
Diagnostic de Performance Énergétique (DPE)
Plus d'informations
-
Descriptif
- Étage du bien : 1er
- Terrasse
- Nbre. d'étages : 4
- Nbre. de chambres : 1
- Nb. Parking : 1
- Nb. de pièces : 2
-
Loi ALUR
- Copropriété
- Nombre de lots de la copropriété : 137
- Moyenne de la quote part(an) : 988 €
- Syndic sous procédure d'alerte
-
Superficies
- Superficie terrain : 12 m²
- Surface habitable : 44 m²
-
Etat
- Année de construction : 2013
-
Conditions
- Honoraires à charge de : vendeur
Localisation
Contactez nous
Pour plus d'informations sur cette annonce, n'hésitez pas à nous contacter