Location
Appartement
à
Frans
750 € CC /mois
Frans (01480)
iad France - Christelle Laignel vous propose: Frans - Appartement T2 meublé avec Balcon, vue campagne, et Garage – Disponible immédiatement
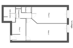
Situé au 1er étage d'une résidence sécurisée construite en 2015, cet appartement de 49 m² vous séduira par son cadre calme et verdoyant.
Dès l'entrée, vous découvrirez un espace de vie lumineux et bien agencé, composé d'un salon cosy, d'une cuisine entièrement équipée, d'une chambre accueillante avec dressing, et d'une salle d'eau avec douche.
Les volumes bien pensés optimisent chaque mètre carré pour un confort du quotidien optimal.
Loyer 700€ + 50€ de charges
Le point fort du bien :
* Un balcon de 8 m² offrant une très belle vue dégagée sur la campagne environnante, idéal pour profiter du calme et du plein air en toutes saisons,
* Un garage privatif complète ce bien, pour un confort et une tranquillité au quotidien.
* Logement doté de prestations de qualité : fibre optique, volets roulants, résidence sécurisée
* Appartement en parfait état, disponible immédiatement.
Une occasion à pas manquer !
Frans est une commune dynamique bénéficiant d'un accès rapide aux commerces, aux services et aux principaux axes routiers.
Contactez-moi dès maintenant pour organiser une visite.
Information d'affichage énergétique sur ce bien : classe ENERGIE C indice 178 et classe CLIMAT A indice 5. Les informations sur les risques auxquels ce bien est exposé, y compris l'obligation légale de débroussaillement, sont disponibles sur le site Géorisques : http://www.georisques.gouv.fr.
La présente annonce immobilière a été rédigée sous la responsabilité éditoriale de Mme Christelle Laignel mandataire indépendant en immobilier (sans détention de fonds), agent commercial de la SAS I@D France immatriculé au RSAC de VILLEFRANCHE TARARE sous le numéro 528709561, titulaire de la carte de démarchage immobilier pour le compte de la société I@D France SAS. Location meublée. Montant du loyer mensuel charges comprises : 750.00 euros / mois. Provision mensuelle avec récupération annuelle : 150.00 euros / mois. Zone soumise à encadrement : non. Honoraires TTC à la charge du locataire: 494 euros (soit 10€/m²).
Mandat : 2018774
Diagnostic de Performance Énergétique (DPE)
Plus d'informations
-
Descriptif
- Étage du bien : 1er
- Meublé
- Nbre. d'étages : 2
- Nbre. de chambres : 1
- Nb. de pièces : 2
-
Equipement
- Placards
- Chauffage : individuel electrique radiateur
- Interphone
-
Conditions
- Charges : 150 €
- Honoraires : 494 €
-
Superficies
- Surface du balcon : 7.84 m²
- Surface habitable : 49 m²
-
Etat
- Année de construction : 2015
Localisation
Contactez nous
Pour plus d'informations sur cette annonce, n'hésitez pas à nous contacter