Vente
Maison
à
Erdeven
1 180 000 €
Erdeven (56410)
iad France - Véronique Lapeyrère vous propose: Élégante maison contemporaine de prestige – Prestations haut de gamme & art de vivre
Située dans un petit hameau entre Plouharnel et Erdeven, à 5 minutes des magnifiques plages de Sainte Barbe et Kerhillio et à 10 minutes des célèbres alignements de Carnac.
Dès l’entrée, cette propriété contemporaine d’environ 238 m² habitables (260 m² au sol) séduit par ses volumes généreux, sa luminosité (exposition Sud) et la qualité de ses prestations haut de gamme.
Pensée pour offrir un confort de vie optimal, elle s’inscrit dans un environnement privilégié, à l’abri des regards.
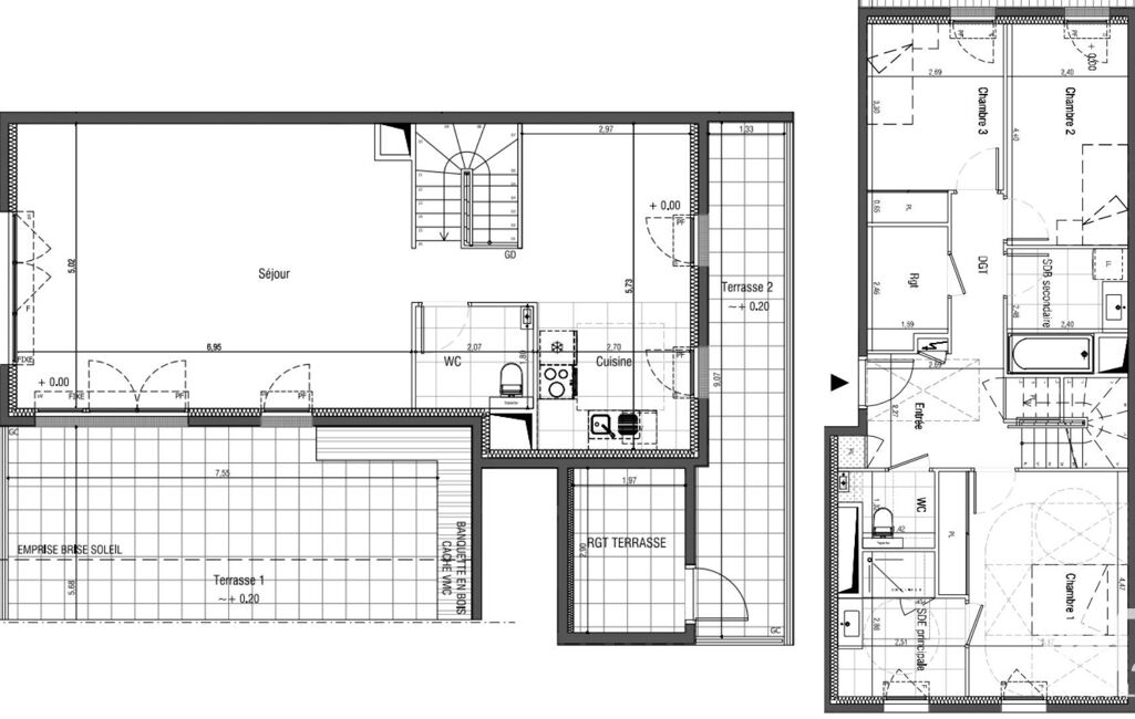
Le rez-de-chaussée s’ouvre sur une vaste entrée menant à un séjour double d’environ 50 m², sublimé par une cheminée et de larges ouvertures sur l’extérieur. La cuisine spacieuse, conçue comme un véritable espace de vie, est complétée par une arrière-cuisine et une buanderie, alliant esthétisme et fonctionnalité.
Une grande suite parentale de plain-pied, avec dressing, salle d’eau privative et WC, offre un espace intime et confortable.
À l’étage, l’espace nuit accueille quatre chambres avec placards, un espace bureau ouvert sur le palier, ainsi que deux salles d’eau et deux WC, permettant une organisation fluide et adaptée à la vie familiale comme à l’accueil d’invités.
La maison bénéficie également d’un grand garage, équipé d’une prise pour véhicule électrique, de plusieurs places de stationnement extérieures, d’un abri de jardin et d’un forage, apportant un confort supplémentaire pour l’entretien des espaces extérieurs.
À l’extérieur, le jardin exposé plein sud, parfaitement aménagé, sans vis-à-vis, invite à la détente et à la convivialité. Un espace jacuzzi avec douche, une pergola bioclimatique modulable d’environ 20 m², un coin cuisine extérieure et une grande terrasse carrelée composent un véritable espace bien-être, pensé pour profiter pleinement de chaque saison.
Côté équipements, la propriété dispose d’un système de domotique, d’une antenne Starlink, d’une alarme, et d’un dispositif de vidéosurveillance, offrant un haut niveau de confort, de sécurité, particulièrement apprécié pour une résidence principale comme secondaire.
Enfin, la propriété peut être vendue meublée, permettant une installation immédiate dans une maison clé en main, idéale pour une résidence secondaire ou pour profiter sans contrainte d’un bien prêt à vivre.
Une propriété rare, alliant architecture contemporaine, prestations premium, sécurité et art de vivre, destinée à une clientèle en quête d’un bien d’exception.
Terrain Piscinable et extension possible.
Informations complémentaires et visite sur rendez-vous.
Honoraires d'agence à la charge de l'acquéreur. Prix honoraires inclus : 1180000 euros. Prix hors honoraires : 1133000 euros. Honoraires TTC à la charge de l'acquéreur (4,15% du prix du bien hors honoraires) : 47000 euros.
Information d'affichage énergétique sur ce bien : classe ENERGIE C indice 94 et classe CLIMAT C indice 14. Les informations sur les risques auxquels ce bien est exposé, y compris l'obligation légale de débroussaillement, sont disponibles sur le site Géorisques : http://www.georisques.gouv.fr.
La présente annonce immobilière a été rédigée sous la responsabilité éditoriale de Mme Véronique Lapeyrère mandataire indépendant en immobilier (sans détention de fonds), agent commercial de la SAS I@D France immatriculé au RSAC de NANTERRE sous le numéro 522476795, titulaire de la carte de démarchage immobilier pour le compte de la société I@D France SAS.
Mandat : 1939925
Diagnostic de Performance Énergétique (DPE)
Plus d'informations
-
Equipement
- Alarme
- Cheminée
- Placards
- Chauffage : gaz radiateur
- Interphone
-
Descriptif
- Terrasse
- Nbre. d'étages : 1
- Nbre. de chambres : 5
- Nb. Parking : 1
- Nb. de pièces : 7
-
Conditions
- Honoraires : 47 000 €
- Prix hors honoraires acquéreur : 1 133 000 €
- Honoraires à charge de : acquéreur
-
Superficies
- Superficie terrain : 1500 m²
- Surface habitable : 238 m²
-
Etat
- Année de construction : 2006
Localisation
Contactez nous
Pour plus d'informations sur cette annonce, n'hésitez pas à nous contacter