Vente
Studio
à
Paris
375 000 €
Paris (75006)
Au coeur de St Germain des Prés, Metro MABILLON
Marché couvert St-Germain,
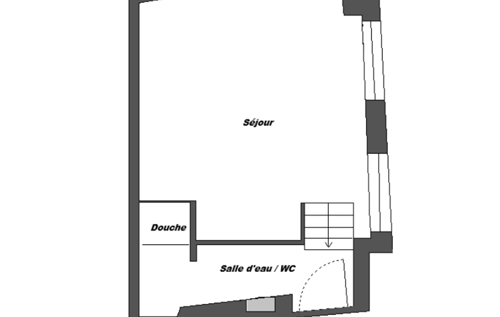
Situé dans un charmant immeuble ancien classé, ravalé et parfaitement entretenu, beau studio clair et lumineux entièrement rénové par architecte.
Il est composé d'un dégagement surélevé donnant sur la pièce principale baignée de soleil, pourvue de 2 larges fenêtres avec double vitrage.
Douche italienne, wc suspendus.
La vasque de salle d eau est astucieusement dissimulée derrière une porte cintrée.
Plan de cuisine ouverte et équipée de 2 plaques de cuisson, réfrigérateur, grand évier en inox et vrai four encastré.
Dressing d'entrée et nombreux rangements ingénieux sur mesure composent ce bien.
Belles prestations.
Une hauteur sous plafonds d'environ 3m permet d'envisager une potentielle optimisation du lieu avec la creation d'un lit en mezzanine pour un espace de couchage séparé.
Le charme des poutres apparentes brutes confère à ce bien une ambiance cosy au coeur de l'élégant quartier St Germain, écrin de choix central avec commerces et transports à proximité.
Idéal etudiant, investisseur ou pied à terre pour les amoureux de ce quartier prisé.
Possible Profession Libérale.
Diffuze : votre prestataire de diffusion d'annonces immobilières
Mandat : 4-78288a2c
Diagnostic de Performance Énergétique (DPE)
Plus d'informations
-
Descriptif
- Étage du bien : 1er
- Nbre. d'étages : 4
- WC séparés
- Nb. de pièces : 1
-
Equipement
- Cuisine : Equipée
- Chauffage : au sol,individuel
-
Conditions
- Honoraires : 4 €
- Honoraires à charge de : vendeur
-
Superficies
- Surface habitable : 18 m²
Localisation
Contactez nous
Pour plus d'informations sur cette annonce, n'hésitez pas à nous contacter