Vente
Maison
à
Tacoignières
330 000 €
Tacoignières (78910)
iad France - Quentin Duvillier vous propose: VUE IMPRENABLE / A Tacoignières, 5 minutes à pied de la gare, 5 minutes de la N12, venez vous installer dans cette maison RÉCENTE de 2021 comprenant 3 chambres, garage et jardin sur une parcelle de 255m².
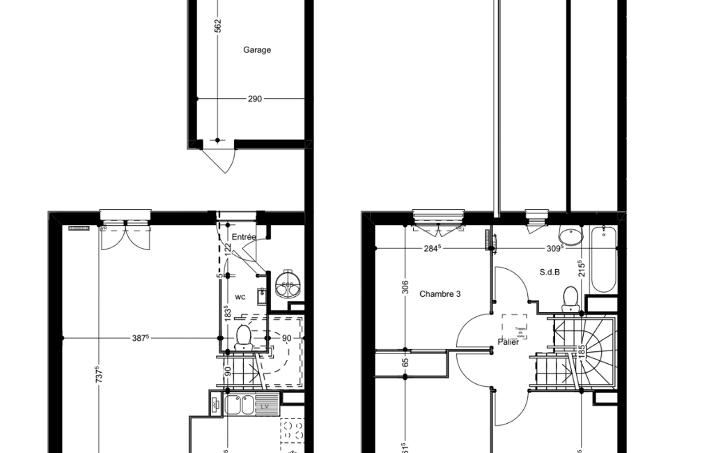
RDC :
Entrée qui donne sur le salon à DOUBLE exposition de 28m², cuisine fermée toute ÉQUIPÉE avec vue sur le jardin, espace buanderie, toilette séparé.
ÉTAGE :
Le palier distribue 3 chambres de plus de 10m² et une salle de bain avec toilette.
EXTÉRIEUR :
Parking 3 voitures à l'avant de la maison, garage de 14m² (peut être transformé en 4e chambre ou autre), terrasse et Pergola de 2024.
PORTAIL MOTORISÉ / FAIBLE CONSOMMATION / FIBRE / RUE CALME
N'hésitez pas à m'appeler pour plus de renseignements !!
Honoraires d'agence à la charge de l'acquéreur. Prix honoraires inclus : 330000 euros. Prix hors honoraires : 320000 euros. Honoraires TTC à la charge de l'acquéreur (3,13% du prix du bien hors honoraires) : 10000 euros.
Information d'affichage énergétique sur ce bien : classe ENERGIE B indice 70 et classe CLIMAT B indice 8. Les informations sur les risques auxquels ce bien est exposé, y compris l'obligation légale de débroussaillement, sont disponibles sur le site Géorisques : http://www.georisques.gouv.fr.
La présente annonce immobilière a été rédigée sous la responsabilité éditoriale de M Quentin Duvillier mandataire indépendant en immobilier (sans détention de fonds), agent commercial de la SAS I@D France immatriculé au RSAC de VERSAILLES sous le numéro 839632874, titulaire de la carte de démarchage immobilier pour le compte de la société I@D France SAS.
Mandat : 2011279
Diagnostic de Performance Énergétique (DPE)
Plus d'informations
-
Descriptif
- Terrasse
- Nbre. d'étages : 2
- Nbre. de chambres : 3
- Nb. Parking : 1
- Nb. de pièces : 4
-
Conditions
- Honoraires : 10 000 €
- Prix hors honoraires acquéreur : 320 000 €
- Honoraires à charge de : acquéreur
-
Superficies
- Superficie terrain : 255 m²
- Surface habitable : 80 m²
-
Equipement
- Chauffage : gaz radiateur
-
Etat
- Année de construction : 2021
Localisation
Contactez nous
Pour plus d'informations sur cette annonce, n'hésitez pas à nous contacter