Vente
Maison
à
Draguignan
480 000 €
Draguignan (83300)
iad France - Marêva Nakak vous propose: Draguignan – Quartier recherché de La Foux
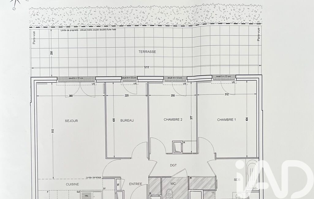
Au fond d’une impasse, dans un environnement calme et résidentiel, découvrez cette agréable maison de plain-pied construite en 2004 offrant confort, luminosité et beaux volumes.
Implantée sur un terrain de 920 m² exposé Sud, piscinable, cette propriété développe environ 152 m² habitables, complétés par un garage, plusieurs stationnements et un abri jardin.
Dès l’entrée, vous apprécierez un hall avec placard menant à une spacieuse pièce de vie de plus de 60 m², prolongée par la cuisine ouverte, aménagée et équipée, avec cellier attenant.
L’ensemble s’ouvre sur une terrasse conviviale, en partie couverte, idéale pour les repas d’été ou les fins de journée plus douces.
Côté nuit, la maison propose quatre chambres dont deux avec placards intégrés, une grande salle de bain avec WC, une salle d’eau, deux WC indépendants supplémentaires et une buanderie fonctionnelle.
Prestations et confort : portail électrique, tout-à-l’égout, store banne, double vitrage, volets roulants électriques, fibre optique, climatisation réversible dans le séjour, radiateurs électriques récents dans les chambres, toiture révisée.
Un bien où l’on se projette facilement, aux volumes rares en plain-pied, situé dans un secteur apprécié pour son cadre de vie simple et sa proximité des commodités. Parfait pour un nouveau projet de vie !
Maison actuellement louée, avec congé délivré pour un départ au plus tard le 31 octobre 2026.
Plus de renseignements et de photos sur simple demande.
Honoraires d'agence à la charge du vendeur.
Information d'affichage énergétique sur ce bien : classe ENERGIE B indice 98 et classe CLIMAT A indice 3. Les informations sur les risques auxquels ce bien est exposé, y compris l'obligation légale de débroussaillement, sont disponibles sur le site Géorisques : http://www.georisques.gouv.fr.
La présente annonce immobilière a été rédigée sous la responsabilité éditoriale de Mme Marêva Nakak mandataire indépendant en immobilier (sans détention de fonds), agent commercial de la SAS I@D France immatriculé au RSAC de DRAGUIGNAN sous le numéro 825018120, titulaire de la carte de démarchage immobilier pour le compte de la société I@D France SAS.
Mandat : 1963331
Diagnostic de Performance Énergétique (DPE)
Plus d'informations
-
Equipement
- Câble TV
- Chauffage : electrique radiateur
- Interphone
- Climatisation
-
Descriptif
- Terrasse
- Nbre. d'étages : 1
- Nbre. de chambres : 4
- Nb. de pièces : 5
-
Superficies
- Surface terrasse : 30 m²
- Superficie terrain : 920 m²
- Surface habitable : 152 m²
-
Etat
- Année de construction : 2004
-
Conditions
- Honoraires à charge de : vendeur
Localisation
Contactez nous
Pour plus d'informations sur cette annonce, n'hésitez pas à nous contacter