Vente
Appartement
à
Beaucaire
199 000 €
Beaucaire (30300)
iad France - Julie Arnaud vous propose: Située au cOEur de Beaucaire, dans un quartier authentique et paisible, cette maison de caractère du 18ᵉ siècle est un véritable havre de paix, chargé d’histoire et de charme.
Classée Bâtiment de France, elle a su conserver toute l’âme de l’ancien à travers ses éléments architecturaux d’époque, offrant un cadre de vie exceptionnel.
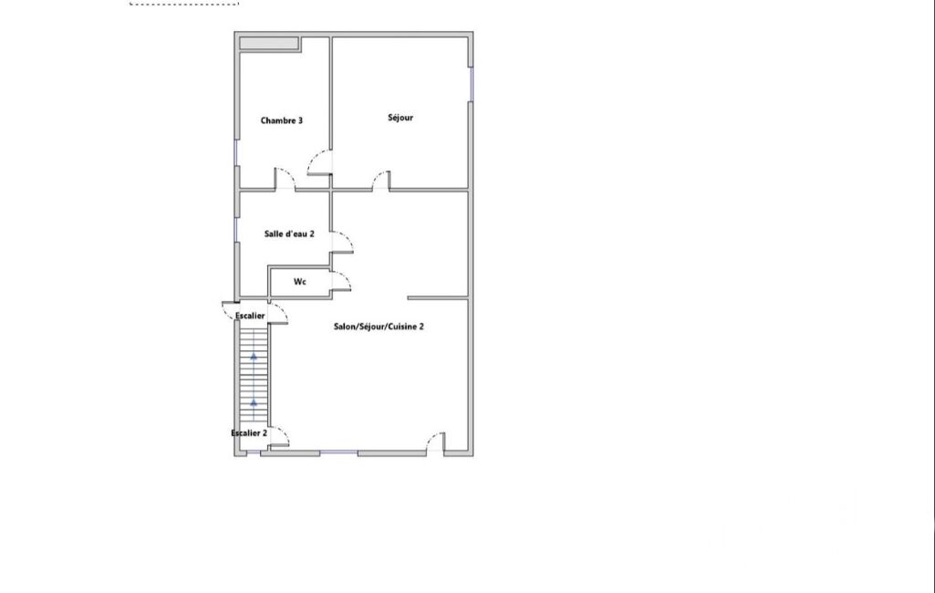
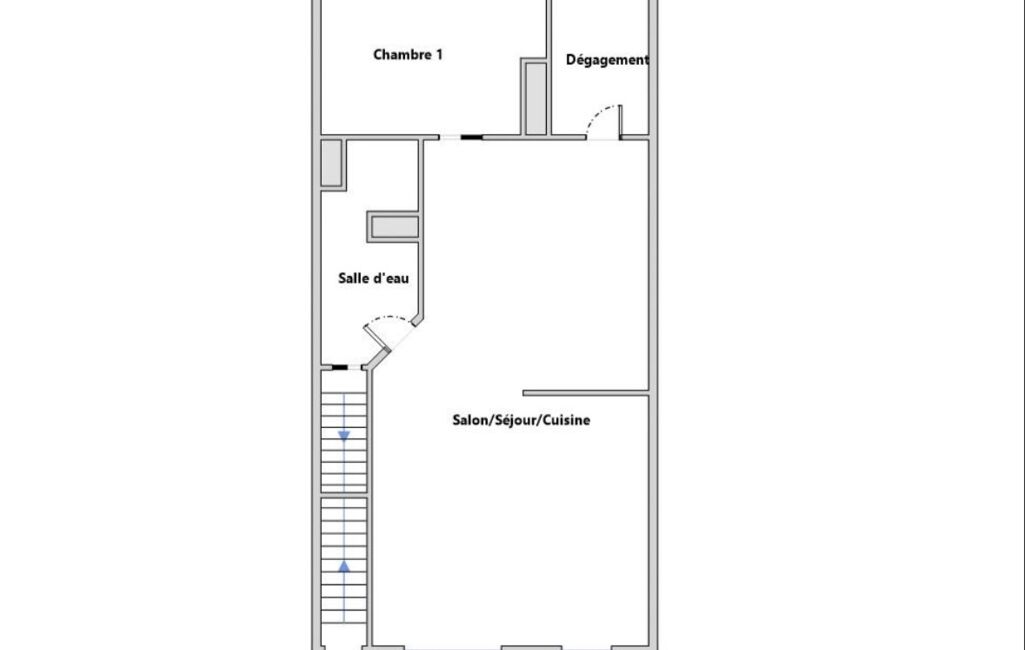
Spacieuse et lumineuse, cette demeure est parfaitement adaptée à une grande famille ou à un projet de vie mêlant résidence principale et investissement. Elle se compose de six chambres, deux salles de bain, trois toilettes, deux cuisines entièrement équipées, ainsi qu’une grande cave, idéale pour le stockage ou l’aménagement d’un espace supplémentaire.
L’ensemble est en bon état général, avec des pièces généreuses, où le charme de l’ancien est préservé : volumes, matériaux et atmosphère unique.
Un véritable atout : tout le rez-de-chaussée est vendu meublé, totalement indépendant (notamment au niveau de l’électricité, double évacuation). Cet espace peut aisément être loué en courte durée type Airbnb, utilisé comme logement indépendant ou même revendu séparément, offrant ainsi un fort potentiel de rentabilité.
Une propriété rare, pleine d’histoire, alliant authenticité, tranquillité et potentiel, dans un environnement privilégié.
Située à proximité des commodités, des écoles et des transports en commun, cette maison bénéficie d'un emplacement idéal pour une vie quotidienne facile et pratique.
Une visite s'impose pour découvrir tous les atouts et le potentiel de cette maison de caractère à Beaucaire. N'hésitez pas à nous contacter pour plus d'informations ou pour organiser une visite.
Honoraires d'agence à la charge du vendeur.
Information d'affichage énergétique sur ce bien : classe ENERGIE C indice 117 et classe CLIMAT A indice 4. Les informations sur les risques auxquels ce bien est exposé, y compris l'obligation légale de débroussaillement, sont disponibles sur le site Géorisques : http://www.georisques.gouv.fr.
La présente annonce immobilière a été rédigée sous la responsabilité éditoriale de Mme Julie Arnaud mandataire indépendant en immobilier (sans détention de fonds), agent commercial de la SAS I@D France immatriculé au RSAC de NIMES sous le numéro 514263227, titulaire de la carte de démarchage immobilier pour le compte de la société I@D France SAS.
Mandat : 1947112
Diagnostic de Performance Énergétique (DPE)
Plus d'informations
-
Descriptif
- Cave
- Nbre. de chambres : 6
- Nb. de pièces : 5
-
Equipement
- Chauffage : individuel electrique
-
Etat
- Année de construction : 1800
-
Conditions
- Honoraires à charge de : vendeur
-
Superficies
- Surface habitable : 180 m²
Localisation
Contactez nous
Pour plus d'informations sur cette annonce, n'hésitez pas à nous contacter