Vente
Appartement
à
Paris
1 100 000 €
Paris (75016)
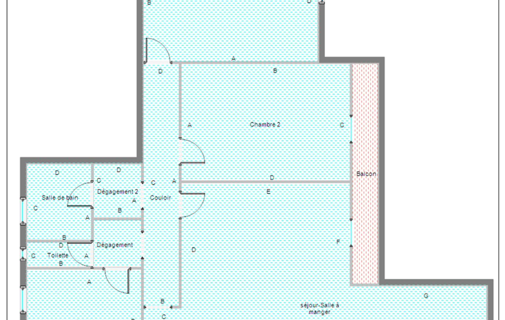
iad France - Pierre D'estève vous propose: Porte d'Auteuil près du Village d'Auteuil, découvrez un grand appartement baigné de soleil d'une surface de 92m² composé de 4 pièces avec un grand séjour avec balcon, au coeur du 16ème arrondissement de Paris, proche des commerces de proximité, des restaurants, pharmacies, boulangeries, des transports en commun (voir photo), du Bois de Boulogne, de l'Hippodrome d'Auteuil et du Stade Roland Garros.
Situé au 2ème étage d'un immeuble de 1930, sans vis à vis orienté sud-ouest et avec une hauteur de plafond de 3 mètres, cet appartement est en excellent état. Il se compose de 2 chambres spacieuses avec la possibilité d'en créer une 3ème. Une salle de bain à double vasque, un WC séparé avec 1 vasque, une cuisine équipée et un salon lumineux donnant accès à un balcon offrant une vue dégagée sur l'environnement parisien. Les pièces sont équipées de doubles vitrage et fenêtre en PVC et de nombreux placards.
L' exposition Sud-Ouest de l'appartement vous garantit une luminosité optimale tout au long de la journée.
Des équipements modernes tels que la fibre optique, l'ascenseur, le digicode, l'interphone et la présence d'un gardien assurant la sécurité des lieux.
Pour votre confort, l'appartement bénéficie d'un chauffage collectif au gaz et est aussi équipé de 2 Pompes à chaleur distribuant l'air réversible (chaud/froid) dans le séjour et les chambres.
Une cave et une place de parking font partie de cette offre.
Contactez-moi pour organiser une visite.
La presente annonce immobiliere vise 2 lots situés dans une copropriété de 2 lots au total et ne faisant l'objet d'aucune procédure en cours citée à l'article L. 721-1 du code de la construction et de l'habitation. Montant moyen mensuel de charges déclaré par le vendeur : 489.08€ par mois (soit 5869 € annuel). Honoraires d'agence à la charge du vendeur.
Information d'affichage énergétique sur ce bien : classe ENERGIE E indice 277 et classe CLIMAT E indice 60. Les informations sur les risques auxquels ce bien est exposé, y compris l'obligation légale de débroussaillement, sont disponibles sur le site Géorisques : http://www.georisques.gouv.fr.
La présente annonce immobilière a été rédigée sous la responsabilité éditoriale de M Pierre D'estève mandataire indépendant en immobilier (sans détention de fonds), agent commercial de la SAS I@D France immatriculé au RSAC de Boulogne-sur-Mer sous le numéro 799245196, titulaire de la carte de démarchage immobilier pour le compte de la société I@D France SAS.
Mandat : 1885848
Diagnostic de Performance Énergétique (DPE)
Plus d'informations
-
Descriptif
- Cave
- Étage du bien : 2eme
- Gardien
- Ascenseur
- Nbre. d'étages : 6
- Nbre. de chambres : 3
- Nb. Parking : 1
- Nb. de pièces : 4
-
Equipement
- Câble TV
- Digicode
- Chauffage : collectif gaz radiateur
- Interphone
-
Loi ALUR
- Copropriété
- Nombre de lots de la copropriété : 2
- Moyenne de la quote part(an) : 5 869 €
-
Etat
- Année de construction : 1930
-
Conditions
- Honoraires à charge de : vendeur
-
Superficies
- Surface habitable : 92 m²
Localisation
Contactez nous
Pour plus d'informations sur cette annonce, n'hésitez pas à nous contacter