Vente
Appartement
à
Drancy
229 000 €
Drancy (93700)
iad France - Aurélie Anferte vous propose: **Appartement Lumineux avec Balcon - 4 Pièces - Cave - Parking - Quartier Petit Drancy**
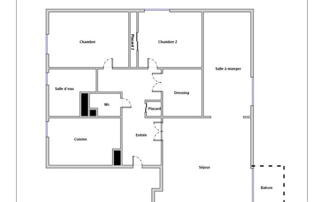
Bienvenue dans cet appartement CHALEUREUX de 4 pièces situé à Drancy, offrant un cadre de vie agréable et lumineux.
Avec une surface totale de 67m², cet appartement situé au rez-de-chaussée surélevé d'une résidence de 3 niveaux construite dans les années 1970, est idéal pour une famille ou des colocataires.
**Description de l’appartement**:
- 2 Chambres
- 1 Salle d'eau
- 1 WC séparé
- 1 Cuisine séparée, équipée
- 1 Séjour de 16 m2 donnant accès à un Balcon de 2.6m²
- 1 Salle à manger
- 1 Cave de 5m2
- 1 place de parking
Cet appartement offre également un dressing, une entrée bien aménagée et un équipement en fibre optique pour un confort optimal.
**Avantages**:
- Exposition plein Sud, offrant une luminosité naturelle
- Proche des commerces de proximité et écoles (École maternelle Lucien Perriot, École Privée Saint Germain, Collège Paul Bert, École primaire Dulcie September)
- Stationnement facilité grâce à une place de parking dans la résidence
- Résidence sécurisée avec digicode, interphone, et résidence fermée
- Chauffage au gaz naturel avec distribution par plancher chauffant
- Aucuns travaux à prévoir, l'ensemble est en EXCELLENT état général
**Points d'Intérêt à Proximité**:
- Hôpital Avicenne à 1.5km
- Carrefour Market à 1.1km
- Gare RER B Le Bourget à 1.8km
- Lycée Eugène Delacroix et Paul Le Rolland à 2.5km
- Arrêts de bus 146, 148, 248 à 500m
Cet appartement allie confort, luminosité et praticité, faisant de lui un bien idéal pour un premier achat ou un investissement locatif. N'attendez plus, contactez-moi pour programmer une visite dès maintenant.
La presente annonce immobiliere vise 2 lots situés dans une copropriété de 124 lots au total et ne faisant l'objet d'aucune procédure en cours citée à l'article L. 721-1 du code de la construction et de l'habitation. Montant moyen mensuel de charges déclaré par le vendeur : 100€ par mois (soit 1200 € annuel). Honoraires d'agence à la charge du vendeur.
Information d'affichage énergétique sur ce bien : classe ENERGIE E indice 302 et classe CLIMAT E indice 57. Les informations sur les risques auxquels ce bien est exposé, y compris l'obligation légale de débroussaillement, sont disponibles sur le site Géorisques : http://www.georisques.gouv.fr.
La présente annonce immobilière a été rédigée sous la responsabilité éditoriale de Mme Aurélie Anferte mandataire indépendant en immobilier (sans détention de fonds), agent commercial de la SAS I@D France immatriculé au RSAC de PONTOISE sous le numéro 911134021, titulaire de la carte de démarchage immobilier pour le compte de la société I@D France SAS.
Mandat : 1982230
Diagnostic de Performance Énergétique (DPE)
Plus d'informations
-
Descriptif
- Cave
- Nbre. d'étages : 3
- Nbre. de chambres : 2
- Nb. Parking : 1
- Nb. de pièces : 4
-
Equipement
- Digicode
- Placards
- Chauffage : collectif gaz
- Interphone
-
Loi ALUR
- Copropriété
- Nombre de lots de la copropriété : 124
- Moyenne de la quote part(an) : 1 200 €
-
Superficies
- Surface du balcon : 2.6 m²
- Surface habitable : 67 m²
-
Etat
- Année de construction : 1970
-
Conditions
- Honoraires à charge de : vendeur
Localisation
Contactez nous
Pour plus d'informations sur cette annonce, n'hésitez pas à nous contacter