Vente
Immeuble
à
La Roche-sur-Yon
230 000 €
La Roche-sur-Yon (85000)
iad France - Mickaël SORIN vous propose: Immeuble de rapport – 5 T1 bis – Fort potentiel
Idéal investisseur.
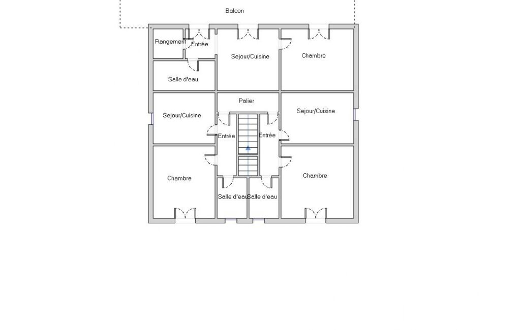
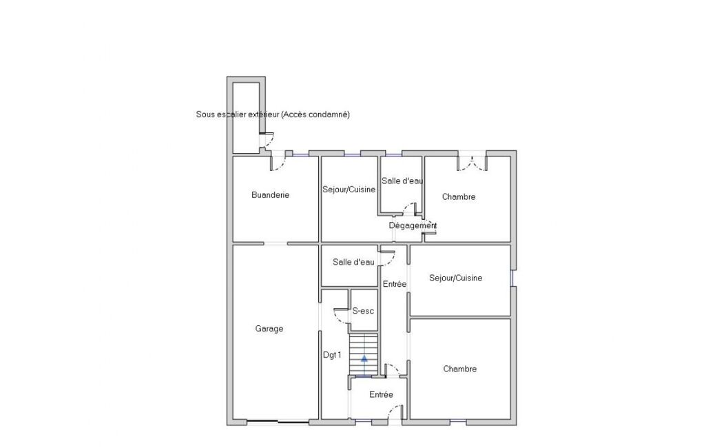
Ensemble immobilier composé de 5 logements de type T1 bis meublé allant de 23 à 28 m2, comprenant chacun une pièce de vie avec kitchenette, une chambre, une salle d’eau et un WC.
L’ensemble est implanté sur une parcelle close d’environ 400 m² et dispose de plusieurs places de stationnement, d’un garage ainsi que d’un abri en dur.
Les logements bénéficient de menuiseries en double vitrage et sont situés à proximité des transports et des commerces.
Le bien est actuellement divisé en 5 logements alimentés par un seul compteur électrique avec sous-compteurs et idem pour l'eau.
Lorsqu’il était exploité en location meublée, l’ensemble générait environ 2 750 € de loyers mensuels charges incluses, soit 33 000 € de revenus locatifs annuels.
Le bien nécessite un budget travaux , notamment pour l’amélioration énergétique et l’optimisation de l’exploitation locative.
Une mise en copropriété avec revente en lots séparés peut également être envisagée.
Un bien offrant un fort potentiel de valorisation et différentes stratégies d’investissement : rénovation, remise en location ou revente à la découpe.
Pour plus d’informations ou organiser une visite, contactez-moi.
Honoraires d'agence à la charge du vendeur.
Information d'affichage énergétique sur ce bien : classe ENERGIE F indice 410 et classe CLIMAT C indice 16. Les informations sur les risques auxquels ce bien est exposé, y compris l'obligation légale de débroussaillement, sont disponibles sur le site Géorisques : http://www.georisques.gouv.fr.
La présente annonce immobilière a été rédigée sous la responsabilité éditoriale de M Mickaël SORIN mandataire indépendant en immobilier (sans détention de fonds), agent commercial de la SAS I@D France immatriculé au RSAC de la roche sur yon sous le numéro 891499949, titulaire de la carte de démarchage immobilier pour le compte de la société I@D France SAS.
Mandat : 1980707
Diagnostic de Performance Énergétique (DPE)
Plus d'informations
-
Descriptif
- Nbre. d'étages : 1
- Nb. Parking : 1
-
Equipement
- Chauffage : individuel electrique radiateur
-
Etat
- Année de construction : 1970
-
Conditions
- Honoraires à charge de : vendeur
-
Superficies
- Surface habitable : 132 m²
Localisation
Contactez nous
Pour plus d'informations sur cette annonce, n'hésitez pas à nous contacter