Vente
Maison
à
Planguenoual
275 000 €
Planguenoual (22400)
iad France - Julien Feuillet vous propose: Maison située dans le bourg de Planguenoual, à proximité immédiate des commerces et à cinq minutes de la plage.
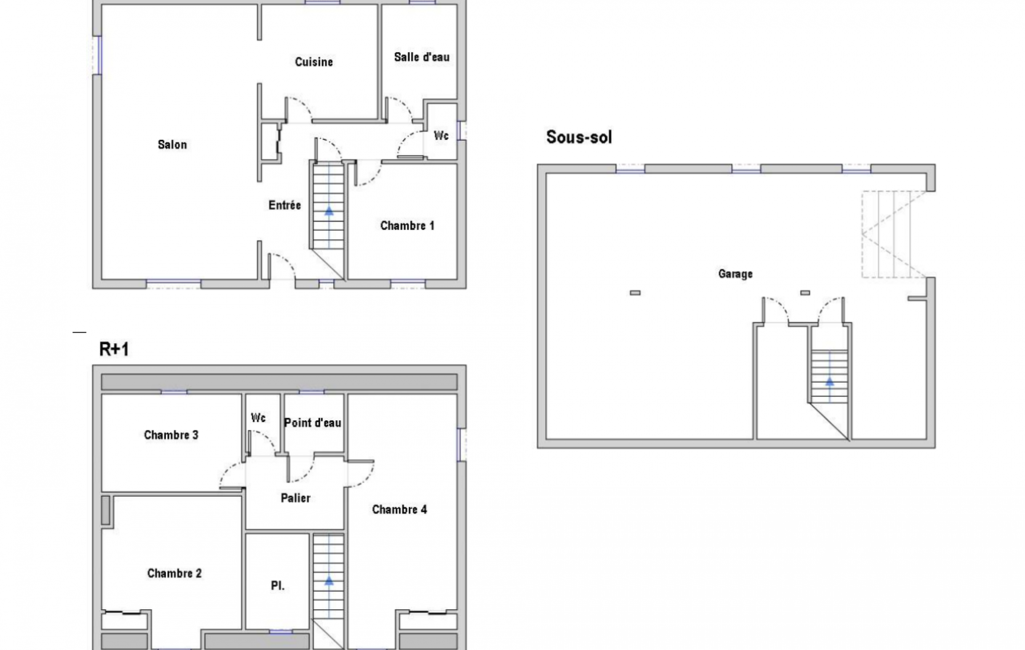
Ce bien se compose, au rez-de-chaussée, d’une entrée, d’un salon-séjour avec poêle à pellets, d’une cuisine aménagée, d’une chambre, d’une salle d’eau et d’un WC.
À l’étage, un palier dessert trois chambres, un dressing ainsi qu’un WC.
Le logement dispose également d’un sous-sol complet, idéal pour le bricolage, le stockage ou un espace atelier.
L’ensemble est édifié sur un terrain d’environ 750 m², avec une grande terrasse exposée sud-ouest, agréable pour profiter de l’extérieur et d'une cour bitumée pour stationner plusieurs véhicules.
Des travaux sont à prévoir, notamment la réfection de l’électricité ainsi que quelques rafraîchissements, permettant de remettre la maison au goût du jour.
Pour plus d’informations ou organiser une visite, contactez-moi.
Honoraires d'agence à la charge du vendeur.
Information d'affichage énergétique sur ce bien : classe ENERGIE D indice 190 et classe CLIMAT B indice 7. Les informations sur les risques auxquels ce bien est exposé, y compris l'obligation légale de débroussaillement, sont disponibles sur le site Géorisques : http://www.georisques.gouv.fr.
La présente annonce immobilière a été rédigée sous la responsabilité éditoriale de M Julien Feuillet mandataire indépendant en immobilier (sans détention de fonds), agent commercial de la SAS I@D France immatriculé au RSAC de SAINT-MALO sous le numéro 881929913, titulaire de la carte de démarchage immobilier pour le compte de la société I@D France SAS.
Mandat : 1955828
Diagnostic de Performance Énergétique (DPE)
Plus d'informations
-
Descriptif
- Terrasse
- Nbre. d'étages : 3
- Nb. de pièces : 5
-
Superficies
- Superficie terrain : 750 m²
- Surface habitable : 114 m²
-
Equipement
- Chauffage : electrique radiateur
-
Etat
- Année de construction : 1978
-
Conditions
- Honoraires à charge de : vendeur
Localisation
Contactez nous
Pour plus d'informations sur cette annonce, n'hésitez pas à nous contacter